Exposé
Objektart:
Zinshaus Renditeobjekt
» Wohn & Geschaeftshaus
» Kauf
Standort: Zinshaus Renditeobjekt »
Deutschland » Berlin » Berlin, Stadt (Kreis) » Berlin
REPRÄSENTATIVER GRÜNDERZEITBAU - STILVOLLES WOHNEN + GEWERBE - BEGEHRTE FRIEDENAUER LAGE!
Fassade
Das Wichtigste auf einen Blick:
| Objektnummer: | 9227867 |
Preise
| Kaufpreis | 5.250.000 € |
| Nebenkosten | keine Angabe |
| Kaufpreis pro m² | 3652 € |
Flächen
| Wohnfläche | 876,7 m² |
| Gesamtfläche | 1.437,7 m² |
| Grundstücksfläche | 568 m² |
| Maklerprovision | 7,14 % |
Objekt Adresse
12161 Berlin
- Berlin
Sonstige Angaben
| Baujahr | 1905 |
| Zimmer | 37 |
| Verfügbar ab | nach Absprache |
| Anzahl der Etagen im Haus | 5 |
| Fahrstuhl | Ja |
| Keller | Ja |
| Energieausweistyp | Verbrauch |
| Gültig bis | 2029-03-08 |
| Energieeffizienzklasse | D |
| Energieverbrauchkennwert | 121.90 kWh/(m²*a) |
| Heizungsart | Zentralheizung |
| Wesentlicher Energieträger | Gas |
| Energieträger/Befeuerung | Gas |
Objektbeschreibung
- stilvoller Altbau in sehr gepflegtem Zustand
- maßgebliche Sanierung Ende der 90er Jahre (Aufzug, DG-Ausbau und Gaszentralheizung)
- vollvermietet
- schöner, begrünter Innenhof
- 10 Wohneinheiten + 4 Gewerbeeinheiten (2 Läden im EG, je 1 Gewerbe im 1. + 2. OG rechts)
- Dachgeschoss zu 5 Wohnungen ausgebaut
- maßgebliche Sanierung Ende der 90er Jahre (Aufzug, DG-Ausbau und Gaszentralheizung)
- vollvermietet
- schöner, begrünter Innenhof
- 10 Wohneinheiten + 4 Gewerbeeinheiten (2 Läden im EG, je 1 Gewerbe im 1. + 2. OG rechts)
- Dachgeschoss zu 5 Wohnungen ausgebaut
Ausstattung
- gläserner Aufzug
- Balkone, Dachterrassen
- altbautypische Deckenhöhen und schöne Stilelemente
- Parkett oder Holzdielen
- modernisierte Bäder
- Kellerabteile
- Balkone, Dachterrassen
- altbautypische Deckenhöhen und schöne Stilelemente
- Parkett oder Holzdielen
- modernisierte Bäder
- Kellerabteile
Lage des Objektes
- begehrte Wohnlage mit herrlichen Gründerzeitbauten
- hohe Baudenkmaldichte, Erhaltungsgebiet
- im verkehrsberuhigten Teil der Bundesallee
- nahe Friedrich-Wilhelm-Platz
- hervorragende Verkehrsanbindung durch U-, S-Bahn und Bus in direkter Nähe
- Einkaufsmeile "Schlossstrasse" zu Fuss erreichbar
- Gymnasien und Grundschulen in unmittelbarer Nachbarschaft
- hohe Baudenkmaldichte, Erhaltungsgebiet
- im verkehrsberuhigten Teil der Bundesallee
- nahe Friedrich-Wilhelm-Platz
- hervorragende Verkehrsanbindung durch U-, S-Bahn und Bus in direkter Nähe
- Einkaufsmeile "Schlossstrasse" zu Fuss erreichbar
- Gymnasien und Grundschulen in unmittelbarer Nachbarschaft
Sonstige Informationen
Die Provision in Höhe von 7,14 % (inkl. 19 % USt.) des beurkundeten Kaufpreises ist mit notarieller Beurkundung vom Käufer an BBI Immobilien GmbH zu zahlen.
Alle Angaben ohne Gewähr und nach Auskunft des Eigentümers. Irrtum vorbehalten! Das Angebot ist nur für den Empfänger bestimmt.
Bei einer Weitergabe an Dritte haftet der Angebotsempfänger für die Provision.
WAS IST IHRE IMMOBILE WIRKLICH WERT?
Wir bieten eine kostenlose Einschätzung Ihrer eigenen Immobilie durch unsere Experten.
Auf Wunsch sorgen wir für einen seriösen und zeitnahen Verkauf.
Weitere interessante, sowohl provisionspflichtige als auch provisionsfreie Angebote von Bauträgern, von Eigentumswohnungen über Einfamilienhäuser und Villen (Nutzung privat und gewerblich) bis hin zu renditeträchtigen Miethäusern für Investoren finden Sie unter www.bbi-immobilien.de
Ansicht
Dachgeschoss V (1)
Dachgeschoss V (4)
Entrée
Wohnungstüren
Treppendetail
Beispiel Wohnen (3)
Beispiel Wohnen (6)
Beispiel Küche
Badbeispiel
Hofblick
Rückansicht
Pfarr-+Gemeindehaus Friedenau
U-Bhf Friedrich-Wilhelm-Platz
KELLERGESCHOSS
ERDGESCHOSS
1. - 3. OBERGESCHOSS
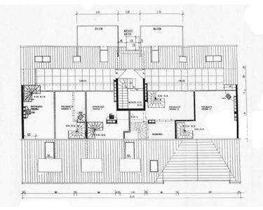
DACHGESCHOSS
DACHAUFSICHT