Exposé
Objektart:
Haus
» Villa
» Kauf
Standort: Haus »
Deutschland » Berlin » Berlin, Stadt (Kreis) » Berlin
BAUDENKMAL "HAUS AUERBACH" IM ROHBAUSTADIUM FÜR VIELFÄLTIGE NUTZUNGEN
Ansicht1
Das Wichtigste auf einen Blick:
| Objektnummer: | 9199414 |
Preise
| Kaufpreis | Auf Anfrage |
| Nebenkosten | keine Angabe |
Flächen
| Wohnfläche | 743 m² |
| Gesamtfläche | 743 m² |
| Grundstücksfläche | 1.530 m² |
| Maklerprovision | 3,57 % |
Objekt Adresse
14195 Berlin
Sonstige Angaben
| Zimmer | 16 |
| Verfügbar ab | nach Absprache |
| Garage/Stellplätze | 3 |
| Anzahl der Etagen im Haus | 2 |
| Terrassen | 2 |
| Garage/Stellplätze | 3 |
| Keller | Ja |
| Heizungsart | Zentralheizung |
| Energieträger/Befeuerung | Luft-Wärme-Pumpe |
Objektbeschreibung
- ca. 1.530 m² Grundstück, zzgl. ca. 720 m² Sondernutzungsrecht an direkt angrenzendem Grundstück
- eingetragenes Baudenkmal Villa "Haus Auerbach", entworfen vom bekannten Architekten Bruno Paul
- 3 Garagen + 2 Aussenstellplätze sowie weitere Freiflächen
- Gebäude vollunterkellert, 2 Vollgeschosse + ausbaufähiges Dachgeschoss
- Erwerb im Rohbaustadium, Ausbau nach individuellen Anforderungen möglich
- Planungsrecht: B-PLan-Entwurf X-B15 (Villenerhaltungsplan), allgemeines Wohngebiet (WA), max. 2 Vollgeschosse, offene Bauweise, GRZ 0,2
- vielfältige Nutzungsmöglichkeiten: zulässig z. B. auch als Residenz/Botschaft, Privatklinik/Tages OP, Stiftung, Kanzlei o. ä.
- eingetragenes Baudenkmal Villa "Haus Auerbach", entworfen vom bekannten Architekten Bruno Paul
- 3 Garagen + 2 Aussenstellplätze sowie weitere Freiflächen
- Gebäude vollunterkellert, 2 Vollgeschosse + ausbaufähiges Dachgeschoss
- Erwerb im Rohbaustadium, Ausbau nach individuellen Anforderungen möglich
- Planungsrecht: B-PLan-Entwurf X-B15 (Villenerhaltungsplan), allgemeines Wohngebiet (WA), max. 2 Vollgeschosse, offene Bauweise, GRZ 0,2
- vielfältige Nutzungsmöglichkeiten: zulässig z. B. auch als Residenz/Botschaft, Privatklinik/Tages OP, Stiftung, Kanzlei o. ä.
Ausstattung
- alle Geschosse sind zurückgebaut worden (Erwerb im Rohbaustadium), nichttragende Wände lt. aktueller Grundrissplanung wurden bereits gesetzt, teilweise gesicherte originale Fenster und Parkett
- derzeit keinerlei Heizung, Lüftung, Sanitäranlagen, Elektro- und IT-Installationen vorhanden
- Restaurierungsbudget ca. 1,3 - 1,7 Mio € für Innenausbau und Technik
- Raumaufteilung und Ausbauqualität können der gewünschten Nutzung noch angepasst werden
- Steuervorteil Denkmalschutz: bis zu 90 % Sonder-AfA der Sanierungskosten für Eigennutzer, alternativ 8 % p.a. über 12 Jahre bei Vermietung
- derzeit keinerlei Heizung, Lüftung, Sanitäranlagen, Elektro- und IT-Installationen vorhanden
- Restaurierungsbudget ca. 1,3 - 1,7 Mio € für Innenausbau und Technik
- Raumaufteilung und Ausbauqualität können der gewünschten Nutzung noch angepasst werden
- Steuervorteil Denkmalschutz: bis zu 90 % Sonder-AfA der Sanierungskosten für Eigennutzer, alternativ 8 % p.a. über 12 Jahre bei Vermietung
Lage des Objektes
- prestigeträchtige Lage am Forst Grunewald
- zahlreiche Botschaften und Institute in der direkten Nachbarschaft
- nahe Domäne Dahlem
- gute Verkehrsanbindung, u. a. durch die nahe AVUS (A115) und die B 1
- ca. 200 m zum U-Bahnhof Oskar-Helene-Heim und Bushaltestelle
- umgeben von vielfältigen Einkaufsmöglichkeiten und Gastronomie (z. B. Truman-PLaza, Roseneck etc.)
- Freie Universität Berlin, Humboldt Universität Standort Dahlem, Charité Benjamin Franklin und Allied Museum im nahen Umfeld
- zahlreiche Botschaften und Institute in der direkten Nachbarschaft
- nahe Domäne Dahlem
- gute Verkehrsanbindung, u. a. durch die nahe AVUS (A115) und die B 1
- ca. 200 m zum U-Bahnhof Oskar-Helene-Heim und Bushaltestelle
- umgeben von vielfältigen Einkaufsmöglichkeiten und Gastronomie (z. B. Truman-PLaza, Roseneck etc.)
- Freie Universität Berlin, Humboldt Universität Standort Dahlem, Charité Benjamin Franklin und Allied Museum im nahen Umfeld
Sonstige Informationen
Die Provision in Höhe von 3,57 % (inkl. 19 % USt.) des beurkundeten Kaufpreises ist mit notarieller Beurkundung vom Käufer an BBI Immobilien GmbH zu zahlen.
Wir haben einen entgeltpflichtigen Maklervertrag über den gleichen Provisionssatz mit dem Verkäufer abgeschlossen.
Alle Angaben ohne Gewähr und nach Auskunft des Eigentümers. Irrtum vorbehalten! Das Angebot ist nur für den Empfänger bestimmt.
Bei einer Weitergabe an Dritte haftet der Angebotsempfänger für die Provision.
WAS IST IHRE IMMOBILE WIRKLICH WERT?
Wir bieten eine kostenlose Einschätzung Ihrer eigenen Immobilie durch unsere Experten.
Auf Wunsch sorgen wir für einen seriösen und zeitnahen Verkauf.
Weitere interessante, sowohl provisionspflichtige als auch provisionsfreie Angebote von Bauträgern, von Eigentumswohnungen über Einfamilienhäuser und Villen (Nutzung privat und gewerblich) bis hin zu renditeträchtigen Miethäusern für Investoren finden Sie unter www.bbi-immobilien.de
Ansicht2
Ansicht3
Terrasse
akt Bautenstand
akt Bautenstand
Weinkeller (1)
akt Bautenstand
akt Bautenstand
akt Bautenstand
akt Bautenstand
Grundstück1
Grundstück2
Truman Plaza Clayallee
Alliierten Museum Clayallee
FU Dahlem
Domäne Dahlem
Hagenplatz
Roseneck
Grunewald
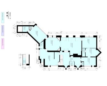
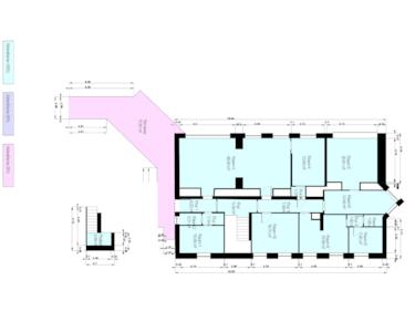
Beispielplanung UG
Beispielplanung EG+ZE1
Beispielplanung OG+ZE2
Beispielplanung DG