Exposé
Objektart:
Büro / Praxen
» Bueroflaeche
» Miete
Standort: Büro / Praxen »
Deutschland » Sachsen-Anhalt » Halle (Saale), Stadt » Halle
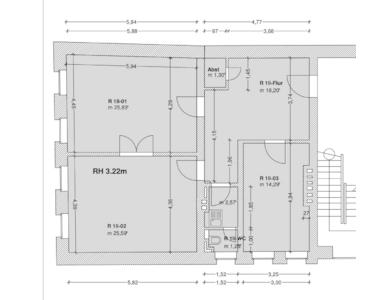
91m² Bürofläche in der Leipziger Straße
Hausansicht
Das Wichtigste auf einen Blick:
| Objektnummer: | 9166434 |
Preise
| Kaltmiete | 910 € |
| Warmmiete | 1.140 € |
| Kaltmiete (netto) | 910 € |
| Nebenkosten | 230 € |
| Heizkosten enthalten | Ja |
| Mietpreis pro m² | 10 € |
| Kaution | nach Vereinbarung |
Flächen
| Gesamtfläche | 91 m² |
| Bürofläche | 91 m² |
| Maklerprovision | keine zusätzliche Provision |
Objekt Adresse
Leipziger Straße 15
06108 Halle
Sonstige Angaben
| Baujahr | 1900 |
| Zimmer | 3 |
| Verfügbar ab | 01.08.2025 |
| Inserat befindet sich im Stockwerk | 1 |
| Bad | Fenster |
| Boden | Fliesen, Teppich, Parkett |
| Heizungsart | Zentralheizung |
| Energieträger/Befeuerung | Gas |
Objektbeschreibung
Sie arbeiten in einer der besten Adressen der Stadt, inmitten der Fussgängerzone von Halle.
Die Leipziger Strasse ist als repräsentative Geschäftsadresse sehr beliebt und begehrt.
Die Mietflächen werden ausdrücklich zzgl. Umsatzsteuer vermietet.
Die Leipziger Strasse ist als repräsentative Geschäftsadresse sehr beliebt und begehrt.
Die Mietflächen werden ausdrücklich zzgl. Umsatzsteuer vermietet.
Ausstattung
Die Büroeinheit bietet Ihnen:
- Moderner Bürostandard
- effiziente Grundrissgestaltung
- Parkettboden
- Moderner Bürostandard
- effiziente Grundrissgestaltung
- Parkettboden
Lage des Objektes
Mitten in der Fußgängerzone von Halle gelegen, ist Ihre neue Adresse auch für "alte" Kunden problemlos zu finden.
Neben der einfachen Beschreibbarkeit, wo Ihr Büro bzw. Ihre Praxis zu finden ist, profitieren Sie vor allem von der außergewöhnlichen Infrastruktur. Beinahe jede Bahn hält auf dem direkt anliegenden Marktplatz, viele Parkhäuser in nächster Umgebung bieten auch Besuchern, die mit dem Auto kommen genügend Parkmöglichkeiten. Eine absolute 1A-Lage
Neben der einfachen Beschreibbarkeit, wo Ihr Büro bzw. Ihre Praxis zu finden ist, profitieren Sie vor allem von der außergewöhnlichen Infrastruktur. Beinahe jede Bahn hält auf dem direkt anliegenden Marktplatz, viele Parkhäuser in nächster Umgebung bieten auch Besuchern, die mit dem Auto kommen genügend Parkmöglichkeiten. Eine absolute 1A-Lage
Sonstige Informationen
HINWEIS: Wir bitten Sie, unsere allgemeinen Geschäftsbedingungen und die gemäß neuen EU-Verbrauchrichtlinien seit 13.06.2014 geltende Widerrufsbelehrung zu beachten. Wünschen Sie weitere Unterlagen, Informationen oder einen Besichtigungstermin bereits innerhalb der 14 tägigen Widerrufsfrist, bitten wir Sie dies ausdrücklich zu erklären.
Gerne stehen wir Ihnen auch für unsere amtlich anerkannte, professionelle 3A Verkehrswerteinschätzung inkl. Marktwertanalyse zur Verfügung. Rufen Sie uns einfach an und vereinbaren kurzfristig einen Termin!
Raum 2
1.OG Leipziger Straße 15
Empfang - Eingangsbereich
Empfang
Flügeltür
Küche & Bad
Raum 1
Raum 3