Exposé
Objektart:
Wohnung
» Etage
» Kauf
Standort: Wohnung »
Deutschland » Berlin » Berlin, Stadt (Kreis) » Berlin
Perfekte Investition nahe Prenzlauer Berg: 2-Zimmer Neubau-Projekt mit Balkon
Das Wichtigste auf einen Blick:
| Objektnummer: | 9149235 |
Preise
| Kaufpreis | 490.000 € |
| Nebenkosten | keine Angabe |
| Kaufpreis pro m² | 9645,67 € |
Flächen
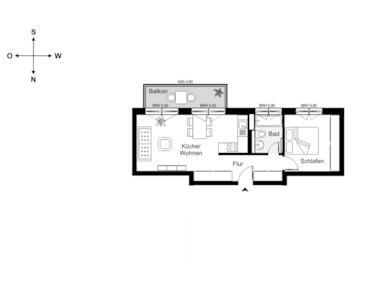
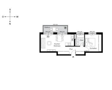
| Wohnfläche | 50,8 m² |
| Nutzfläche | 54,5 m² |
| Maklerprovision | Provisionsfrei für Käufer |
Objekt Adresse
13189 Berlin
- Berlin
Sonstige Angaben
| Baujahr | 2026 |
| Zimmer | 2 |
| Verfügbar ab | keine Angabe |
| Bad | 1 |
| Inserat befindet sich im Stockwerk | 4 |
| Bad | 1 |
| Balkone | 1 |
| Fahrstuhl | Ja |
| Keller | Ja |
| Energieausweistyp | Bedarfsausweis |
| Gültig bis | 2033-01-04 |
| Baujahr (laut Energieausweis) | 2022 |
| Energieeffizienzklasse | A+ |
| Endenergiebedarf | 22.00 kWh/(m²*a) |
| Heizungsart | Zentralheizung, Fußbodenheizung |
| Wesentlicher Energieträger | Erdwaerme |
Objektbeschreibung
Willkommen im neuen Wohnparadies in Berlin-Pankow Süd, nur wenige Gehminuten von den Hotspots in Prenzlauer Berg entfernt. Dieses exklusive Neubauprojekt umfasst 34 hochwertige Eigentumswohnungen, verteilt auf ein Vorder- und ein Gartenhaus. Das Gebiet ist bekannt für seine trendigen Straßen, familiären Parks und eine Vielzahl an Cafés, Restaurants, Boutiquen und Bars. In der Nähe befindet sich auch die Kultur Brauerei, ein umgebautes Kulturzentrum mit Kino, Bars und regelmäßigen Veranstaltungen.
Das Projekt setzt auf Nachhaltigkeit mit Erdwärme für die Warmwasseraufbereitung und einer Photovoltaikanlage auf dem Dach. Die Wohnungen bieten moderne Architektur mit großzügigen, lichtdurchfluteten Räumen und bodentiefen Fenstern. Balkone und Terrassen erweitern den Wohnraum, während der familienfreundliche Gemeinschaftsgarten einen Rückzugsort für Groß und Klein bietet. Für die individuelle Gestaltung stehen Ihnen hochwertige Materialien wie Eichenparkett, Natursteinfliesen und moderne Sanitäranlagen zur Auswahl.
Das Duett bietet 1- bis 4-Zimmer-Wohnungen mit Größen von 45m² bis 111m². Die Preise beginnen bei 350.000€ (ca. 8200€/m²). Besonders exklusiv sind die 4 Dachterrassenwohnungen mit Blick auf den Fernsehturm sowie 4 Gartenwohnungen. Das Projekt bietet nicht nur ein einzigartiges Wohnerlebnis, sondern auch exzellente Investitionsmöglichkeiten. Der Bezirk Pankow hat in den letzten Jahren einen jährlichen Immobilienpreisanstieg von ca. 11% verzeichnet, was The Duett zu einer sicheren Kapitalanlage mit hohen Renditepotenzialen macht.
Für weitere Informationen oder ein Beratungsgespräch steht Ihnen unser Team von First Citiz Berlin gerne zur Verfügung.
Das Projekt setzt auf Nachhaltigkeit mit Erdwärme für die Warmwasseraufbereitung und einer Photovoltaikanlage auf dem Dach. Die Wohnungen bieten moderne Architektur mit großzügigen, lichtdurchfluteten Räumen und bodentiefen Fenstern. Balkone und Terrassen erweitern den Wohnraum, während der familienfreundliche Gemeinschaftsgarten einen Rückzugsort für Groß und Klein bietet. Für die individuelle Gestaltung stehen Ihnen hochwertige Materialien wie Eichenparkett, Natursteinfliesen und moderne Sanitäranlagen zur Auswahl.
Das Duett bietet 1- bis 4-Zimmer-Wohnungen mit Größen von 45m² bis 111m². Die Preise beginnen bei 350.000€ (ca. 8200€/m²). Besonders exklusiv sind die 4 Dachterrassenwohnungen mit Blick auf den Fernsehturm sowie 4 Gartenwohnungen. Das Projekt bietet nicht nur ein einzigartiges Wohnerlebnis, sondern auch exzellente Investitionsmöglichkeiten. Der Bezirk Pankow hat in den letzten Jahren einen jährlichen Immobilienpreisanstieg von ca. 11% verzeichnet, was The Duett zu einer sicheren Kapitalanlage mit hohen Renditepotenzialen macht.
Für weitere Informationen oder ein Beratungsgespräch steht Ihnen unser Team von First Citiz Berlin gerne zur Verfügung.
Ausstattung
✅ Top Lage, fußläufig zu Prenzlauer Bergs Hotspots
✅ Provisionsfrei für Käufer
✅ Nahe Stargarderstr., Schönhauser Allee & Humannplatz
✅ Balkone, Terrassen, Lift und individuelle Kellerräume
✅ Panorama-Dachterrassen mit Fernsehturm-Blick
✅ Auswahl an Parkett- und Fliesenfarben
✅ Natur-Eichenparkett mit Fußbodenheizung
✅ Viele Ausstattungsoptionen (Bodenbeläge, Badfliesen, etc.)
✅ Helle Wohnungen mit bodentiefen, dreifach verglasten Fenstern
✅ Neue, familienfreundliche Wohnanlage mit 35 Einheiten
✅ Attraktive Preise ab ca. 7700€/m²
✅ Exzellente Energieeffizienz (Klasse A+)
✅ Hervorragende Hypothekenoptionen
✅ Private Innengärten mit Kinderspielplatz
✅ Bau durch renommierten deutschen Bauträger
✅ Keine Mietobergrenze – Ideal für Anleger
Video tour ==> https://www.youtube.com/watch?v=-DTse2K3vcw
✅ Provisionsfrei für Käufer
✅ Nahe Stargarderstr., Schönhauser Allee & Humannplatz
✅ Balkone, Terrassen, Lift und individuelle Kellerräume
✅ Panorama-Dachterrassen mit Fernsehturm-Blick
✅ Auswahl an Parkett- und Fliesenfarben
✅ Natur-Eichenparkett mit Fußbodenheizung
✅ Viele Ausstattungsoptionen (Bodenbeläge, Badfliesen, etc.)
✅ Helle Wohnungen mit bodentiefen, dreifach verglasten Fenstern
✅ Neue, familienfreundliche Wohnanlage mit 35 Einheiten
✅ Attraktive Preise ab ca. 7700€/m²
✅ Exzellente Energieeffizienz (Klasse A+)
✅ Hervorragende Hypothekenoptionen
✅ Private Innengärten mit Kinderspielplatz
✅ Bau durch renommierten deutschen Bauträger
✅ Keine Mietobergrenze – Ideal für Anleger
Video tour ==> https://www.youtube.com/watch?v=-DTse2K3vcw
Sonstige Informationen
Alle Angaben zu dieser Immobilie und diesem Immobilienprojekt beruhen auf Angaben der Verkäufer und / oder ihrer Vertreter. Wir übernehmen keine Haftung für die Richtigkeit oder Vollständigkeit. Irrtum und Zwischenverkauf sind zu erwarten. Alle Visualisierungen sind unverbindlich. Dieses Angebot ist vertraulich und ausschließlich für den Empfänger bestimmt. Jede Weitergabe muss von der First Citiz GmbH genehmigt werden. Dieses Angebot umfasst alle Einheiten desselben Immobilienprojekts, für die die First Citiz GmbH alle relevanten Informationen zur Verfügung stellt, einschließlich Preislisten, Grundrisse und Liste der zum Verkauf stehenden Einheiten. Der Empfänger dieses Angebots ist verpflichtet, die First Citiz GmbH über den Abschluss eines Kaufvertrags für diese Immobilie oder eine andere Immobilie im selben Immobilienprojekt zu informieren.