Exposé
Objektart:
Wohnung
» Etage
» Kauf
Standort: Wohnung »
Deutschland » Berlin » Berlin, Stadt (Kreis) » Berlin
Attraktive Eigentumswohnung im Altbau aus 1907 mit Balkon und Garten in Berlin-Pankow
Zimmer 1
Das Wichtigste auf einen Blick:
| Objektnummer: | 9147531 |
Preise
| Kaufpreis | 325.000 € |
| Nebenkosten | keine Angabe |
| Kaufpreis pro m² | 5284 € |
| Hausgeld | 243,18 € |
Flächen
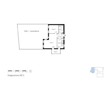
| Wohnfläche | 61,51 m² |
| Gesamtfläche | 61,51 m² |
| Maklerprovision | 3,57 % inkls. gesetzl. MwSt. |
Objekt Adresse
Pestalozzistraße 29
13187 Berlin
- Berlin
Sonstige Angaben
| Baujahr | 1907 |
| Letzte Modernisierung | 2002 |
| Zimmer | 2 |
| Verfügbar ab | sofort |
| Bad | 1 |
| Anzahl der Etagen im Haus | 4 |
| Inserat befindet sich im Stockwerk | 0 |
| Bad | 1 |
| Balkone | 1 |
| Garten | Ja |
| Keller | Ja |
| Energieausweistyp | Verbrauch |
| Ausstellungsdatum | 11. 10. 2018 |
| Gültig bis | 11.10.2028 |
| Energieeffizienzklasse | E |
| Energieverbrauchkennwert | 140 kWh/(m²*a) |
| Heizungsart | Etagenheizung |
| Wesentlicher Energieträger | Gas |
| Energieträger/Befeuerung | Gas |
Objektbeschreibung
Das charmante Gebäude aus dem Jahr 1907 vereint stilvolle Altbau-Architektur mit zeitgemäßem Wohnkomfort. In ruhiger und dennoch gut angebundener Lage gelegen, bietet es ein attraktives Wohnumfeld.
Zum Verkauf stehen 14 Eigentumswohnungen, die derzeit teils vermietet und teils bezugsfrei sind. Die Wohnungen überzeugen durch durchdachte Grundrisse mit zwei bis vier Zimmern und Wohnflächen zwischen ca. 61 m² und ca. 120 m². Großzügige Balkone und Loggien schaffen harmonische Übergänge zwischen Innen- und Außenbereich und laden zum Verweilen im Freien ein – ideal für entspannte Stunden zuhause.
Das Gemeinschaftseigentum befindet sich in einem gepflegten Zustand und unterstreicht gemeinsam mit dem geschmackvoll mit Sisalboden ausgestatteten Treppenhaus die Qualität und Wertbeständigkeit der Immobilie. Ein begrünter Innenhof mit ruhiger Atmosphäre bietet zusätzlich Raum zur Erholung.
Im Jahr 2002 wurde das Dachgeschoss ausgebaut und das gesamte Gebäude im Rahmen einer umfassenden Sanierung grundlegend modernisiert – ohne dabei den historischen Charakter des Altbaus zu verlieren.
Zum Verkauf stehen 14 Eigentumswohnungen, die derzeit teils vermietet und teils bezugsfrei sind. Die Wohnungen überzeugen durch durchdachte Grundrisse mit zwei bis vier Zimmern und Wohnflächen zwischen ca. 61 m² und ca. 120 m². Großzügige Balkone und Loggien schaffen harmonische Übergänge zwischen Innen- und Außenbereich und laden zum Verweilen im Freien ein – ideal für entspannte Stunden zuhause.
Das Gemeinschaftseigentum befindet sich in einem gepflegten Zustand und unterstreicht gemeinsam mit dem geschmackvoll mit Sisalboden ausgestatteten Treppenhaus die Qualität und Wertbeständigkeit der Immobilie. Ein begrünter Innenhof mit ruhiger Atmosphäre bietet zusätzlich Raum zur Erholung.
Im Jahr 2002 wurde das Dachgeschoss ausgebaut und das gesamte Gebäude im Rahmen einer umfassenden Sanierung grundlegend modernisiert – ohne dabei den historischen Charakter des Altbaus zu verlieren.
Ausstattung
Altbau aus dem Jahr 1907
letzte Renovierung 2002
gepflegtes Gemeinschaftseigentum
lichtdurchflutet
gepflegt
Balkon
Gartenanteil
gut geschnitten
hohe Decken
grüner Innenhof
Kellerabteil
Milieuschutz
letzte Renovierung 2002
gepflegtes Gemeinschaftseigentum
lichtdurchflutet
gepflegt
Balkon
Gartenanteil
gut geschnitten
hohe Decken
grüner Innenhof
Kellerabteil
Milieuschutz
Lage des Objektes
Im Herzen von Berlin-Pankow gelegen, befindet sich die Wohnadresse in einer familienfreundlichen, grünen Nachbarschaft, nur einen Katzensprung vom beliebten Schlosspark entfernt. Das prachtvolle Naherholungsgebiet rund um das imposante Schloss Schönhausen bietet die perfekte Kulisse für lange Spaziergänge und Erholung an der frischen Luft. Die durch das gesamte Wohnviertel laufende Panke, ein schmaler Nebenfluss der Spree, verleiht der Umgebung einen besonderen Charme. Das Sommerbad Pankow sowie diverse Spielplätze und Freizeitangebote für Kinder machen die Lage besonders familienfreundlich. Auch eine Vielzahl an Kitas und Schulen sind fußläufig zu erreichen. Mit zahlreichen Restaurants, Cafés und kleinen Bars ist die Wohngegend gastronomisch sehr gut erschlossen. Neben mehreren Einkaufsmöglichkeiten des täglichen Bedarfs sowie verschiedenen Drogerien, lädt das unweit entfernte Rathaus Center – ein Einkaufszentrum mit über 80 Fachgeschäften – zum Shoppen ein. Darüber hinaus erfreut sich die Wohngegend einer hervorragenden Anbindung an den öffentlichen Nachverkehr: So befindet sich die Straßenbahn- und Bushaltestelle Pankow Kirche nur 6 Gehminuten von der Wohnadresse entfernt. Auch der S + U-Bahnhof Pankow ist in wenigen Minuten erreicht und bietet einen hervorragenden Anschluss an das Berliner Stadtzentrum.
Zimmer 2
Küche
Badezimmer
Balkon
Gebäudeansicht Front
Treppenhaus
Innenhof
Wochenmarkt
Station Rathaus Pankow
Bürgerpark Pankow
Rathaus-Center Pankow
Schlosspark Pankow
Alte Pfarrkirche
Gebäude
Treppenhaus
Innenhof
Treppenhaus
Schlosspark Pankow
Alte Pfarrkirche „Zu den Vier Evangelisten
Rathaus-Center Pankow
Bus- und Tramstation Rathaus Pankow
BRW
Lageplan
Kataserplan
Gebäude
WE03