Exposé
Objektart:
Haus
» Einfamilienhaus
» Kauf
Standort: Haus »
Deutschland » Bayern » Roth (Kreis) » Hilpoltstein
SOFORT EINZIEHEN! Viel Platz für große Träume und Familienglück - EE-Klasse "B"
Sofort einziehen
Das Wichtigste auf einen Blick:
| Objektnummer: | 9021712 |
Preise
| Kaufpreis | 745.000 € |
| Nebenkosten | keine Angabe |
Flächen
| Wohnfläche | 237 m² |
| Grundstücksfläche | 785 m² |
| Maklerprovision | 2,38 % (inkl. MwSt.) |
Objekt Adresse
91161 Hilpoltstein
Sonstige Angaben
| Baujahr | 2017 |
| Zimmer | 8 |
| Verfügbar ab | 01.12.2025 |
| Bad | 2 |
| Anzahl der Etagen im Haus | 2 |
| Küche | Einbauküche |
| Bad | 2 |
| Boden | Fliesen, Laminat |
| Energieausweistyp | Bedarfsausweis |
| Ausstellungsdatum | 09. 11. 2023 |
| Baujahr (laut Energieausweis) | 2017 |
| Energieeffizienzklasse | B |
| Endenergiebedarf | 65.6 kWh/(m²*a) |
| Heizungsart | Fußbodenheizung |
| Wesentlicher Energieträger | Flüssiggas |
| Energieträger/Befeuerung | Flüssiggas |
Objektbeschreibung
Stellen Sie sich ein Haus vor, das nicht nur Wohnraum bietet, sondern ein echtes Zuhause ist - ein Ort zum Ankommen, zum Wohlfühlen, zum Leben. Dieses einzigartige Anwesen vereint stilvollen Komfort mit durchdachter Funktionalität und schafft Raum für all das, was das Leben besonders macht.
Bereits beim Betreten empfängt Sie ein großzügiger Eingangsbereich, der mit Gäste-WC und Technikraum den Ton für die Qualität und Großzügigkeit des gesamten Hauses vorgibt. Der offene Wohn- und Essbereich ist das Herzstück - lichtdurchflutet, warm, einladend. Die moderne Einbauküche lädt zu gemeinsamen Kochmomenten ein, während die bodentiefen Fenster den Blick auf den traumhaften Garten freigeben. Hier verschmelzen Innen- und Außenleben auf harmonische Weise - besonders an sonnigen Nachmittagen oder lauen Sommerabenden. Eine Fußbodenheizung sorgt dabei im gesamten Haus für wohlige Wärme.
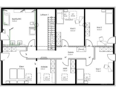
Im Obergeschoss erwarten Sie Rückzugsorte mit Charakter; ein Schlafzimmer mit begehbarem Kleiderschrank - Ihre persönliche Wohlfühloase, drei weitere Zimmer, flexibel nutzbar je nach Lebensphase, sowie ein luxuriös ausgestattetes Bad mit Walk-In-Dusche und XXL-Badewanne - ein kleines Wellnessparadies für jeden Tag. Und auch an Stauraum wurde gedacht: Der Dachboden bietet auf rund 37 qm viel Platz für alles, was nicht täglich gebraucht wird, aber dennoch Teil des Lebens ist.
Ein weiteres Highlight ist die ca. 68 qm große 3 Zimmer-Einlieger-Wohnung mit offenem
Wohn-/Küchenbereich, zwei Schlafzimmern und Tageslichtbad. Ob für heranwachsende Kinder, Großeltern, Gäste oder als Kapitalanlage zur Vermietung? Ihrer Lebensplanung sind keine Grenzen gesetzt.
Das ca. 785 qm große Grundstück ist ein Paradies für Gartenliebhaber und Freiluftgenießer: Zwei sonnige Terrassen, ein Süd-/West-Garten, ein Gartenhaus, ein Gewächshaus und ein Mini-Carport für Fahrräder oder Mülltonnen schaffen Raum für Ihre persönliche grüne Oase.
Und das Beste: Sie können MORGEN bereits einziehen!
Weitere Angebote unter www.GARANT-IMMO.de
Bereits beim Betreten empfängt Sie ein großzügiger Eingangsbereich, der mit Gäste-WC und Technikraum den Ton für die Qualität und Großzügigkeit des gesamten Hauses vorgibt. Der offene Wohn- und Essbereich ist das Herzstück - lichtdurchflutet, warm, einladend. Die moderne Einbauküche lädt zu gemeinsamen Kochmomenten ein, während die bodentiefen Fenster den Blick auf den traumhaften Garten freigeben. Hier verschmelzen Innen- und Außenleben auf harmonische Weise - besonders an sonnigen Nachmittagen oder lauen Sommerabenden. Eine Fußbodenheizung sorgt dabei im gesamten Haus für wohlige Wärme.
Im Obergeschoss erwarten Sie Rückzugsorte mit Charakter; ein Schlafzimmer mit begehbarem Kleiderschrank - Ihre persönliche Wohlfühloase, drei weitere Zimmer, flexibel nutzbar je nach Lebensphase, sowie ein luxuriös ausgestattetes Bad mit Walk-In-Dusche und XXL-Badewanne - ein kleines Wellnessparadies für jeden Tag. Und auch an Stauraum wurde gedacht: Der Dachboden bietet auf rund 37 qm viel Platz für alles, was nicht täglich gebraucht wird, aber dennoch Teil des Lebens ist.
Ein weiteres Highlight ist die ca. 68 qm große 3 Zimmer-Einlieger-Wohnung mit offenem
Wohn-/Küchenbereich, zwei Schlafzimmern und Tageslichtbad. Ob für heranwachsende Kinder, Großeltern, Gäste oder als Kapitalanlage zur Vermietung? Ihrer Lebensplanung sind keine Grenzen gesetzt.
Das ca. 785 qm große Grundstück ist ein Paradies für Gartenliebhaber und Freiluftgenießer: Zwei sonnige Terrassen, ein Süd-/West-Garten, ein Gartenhaus, ein Gewächshaus und ein Mini-Carport für Fahrräder oder Mülltonnen schaffen Raum für Ihre persönliche grüne Oase.
Und das Beste: Sie können MORGEN bereits einziehen!
Weitere Angebote unter www.GARANT-IMMO.de
Ausstattung
Technik, die begeistert - Smart Living auf höchstem Niveau:
- Smart Home KNX-System: Steuerung von Licht,
Heizung, Rollläden, Gartenbewässerung u.v.m.;
komfortabel per App oder automatisiert
- Internet & Medien: Zwei unabhängige Internetanschlüsse,
16 SAT-Anschlüsse und Netzwerkverkabelung im gesamten Haus
für maximale Konnektivität
- Videoüberwachung & Zugangskontrolle: Modernste Sicherheit
durch Außenkameras, Türklingel mit Handyüberwachung,
Pin- und RFID-Zugang
- Belüftungssystem je Wohneinheit: Für ein stets frisches
und gesundes Raumklima
- Photovoltaikanlage mit 8,4kWP: Nachhaltig Energie erzeugen,
speichern und Kosten sparen
- Zwei Wallbox-Säulen: Für Ihre Elektromobilität - heute und morgen
- 9000L Zisterne mit WILO Hauswasserwerk: Regenwassernutzung
clever umgesetzt
- Smart bewässerter Garten: Eine vollautomatische, per App
steuerbare Bewässerungsanlage hält Ihre grüne Oase in Topform
- Thermosolar-Anlage
Weitere Angaben zum Objekt:
- Wesentlicher Energieträger: Gas
- Heizungsart: Fußbodenheizung
- Endenergieverbrauch: 65,60 kWh/(m²*a)
- Energieeffizienzklasse: B
- Wohnfläche EFH: ca. 169 qm
- Wohnfläche Einliegerwohnung: ca. 68 qm
- Smart Home KNX-System: Steuerung von Licht,
Heizung, Rollläden, Gartenbewässerung u.v.m.;
komfortabel per App oder automatisiert
- Internet & Medien: Zwei unabhängige Internetanschlüsse,
16 SAT-Anschlüsse und Netzwerkverkabelung im gesamten Haus
für maximale Konnektivität
- Videoüberwachung & Zugangskontrolle: Modernste Sicherheit
durch Außenkameras, Türklingel mit Handyüberwachung,
Pin- und RFID-Zugang
- Belüftungssystem je Wohneinheit: Für ein stets frisches
und gesundes Raumklima
- Photovoltaikanlage mit 8,4kWP: Nachhaltig Energie erzeugen,
speichern und Kosten sparen
- Zwei Wallbox-Säulen: Für Ihre Elektromobilität - heute und morgen
- 9000L Zisterne mit WILO Hauswasserwerk: Regenwassernutzung
clever umgesetzt
- Smart bewässerter Garten: Eine vollautomatische, per App
steuerbare Bewässerungsanlage hält Ihre grüne Oase in Topform
- Thermosolar-Anlage
Weitere Angaben zum Objekt:
- Wesentlicher Energieträger: Gas
- Heizungsart: Fußbodenheizung
- Endenergieverbrauch: 65,60 kWh/(m²*a)
- Energieeffizienzklasse: B
- Wohnfläche EFH: ca. 169 qm
- Wohnfläche Einliegerwohnung: ca. 68 qm
Lage des Objektes
Willkommen in Zell, einem charmanten Ortsteil der Stadt Hilpoltstein im idyllischen Mittelfranken. Die kleine Ortschaft liegt eingebettet in die sanfte Hügellandschaft des Naturparks Altmühltal und bietet eine perfekte Kombination aus naturnahem Wohnen und guter Erreichbarkeit.
Zell gehört zur beliebten Stadt Hilpoltstein im Landkreis Roth und befindet sich nur rund 4 Kilometer vom Stadtzentrum entfernt. Die Umgebung ist geprägt von weitläufigen Feldern, Wäldern und kleinen Seen, ideal für alle, die Ruhe und Natur lieben, aber dennoch schnell in der Stadt sein möchten.
Besonders attraktiv ist die Nähe zum Rothsee, einem beliebten Naherholungsgebiet mit zahlreichen Freizeitmöglichkeiten wie Radfahren, Wandern, Schwimmen und Segeln. Einkaufsmöglichkeiten, Schulen, Kindergärten sowie ärztliche Versorgung befinden sich im nahegelegenen Hilpoltstein.
Die Verkehrsanbindung ist hervorragend: Über die Bundesstraße B2 sowie die Autobahn A9 erreichen Sie Nürnberg in ca. 30 Minuten und Ingolstadt in etwa 45 Minuten. Auch eine Anbindung an den öffentlichen Nahverkehr ist über den Bahnhof Hilpoltstein gegeben.
Zell überzeugt durch seinen dörflichen Charme, eine ruhige Nachbarschaft und die naturnahe Lage - perfekt für Familien, Paare oder alle, die ein entspanntes Leben im Grünen mit urbaner Nähe verbinden möchten.
Zell gehört zur beliebten Stadt Hilpoltstein im Landkreis Roth und befindet sich nur rund 4 Kilometer vom Stadtzentrum entfernt. Die Umgebung ist geprägt von weitläufigen Feldern, Wäldern und kleinen Seen, ideal für alle, die Ruhe und Natur lieben, aber dennoch schnell in der Stadt sein möchten.
Besonders attraktiv ist die Nähe zum Rothsee, einem beliebten Naherholungsgebiet mit zahlreichen Freizeitmöglichkeiten wie Radfahren, Wandern, Schwimmen und Segeln. Einkaufsmöglichkeiten, Schulen, Kindergärten sowie ärztliche Versorgung befinden sich im nahegelegenen Hilpoltstein.
Die Verkehrsanbindung ist hervorragend: Über die Bundesstraße B2 sowie die Autobahn A9 erreichen Sie Nürnberg in ca. 30 Minuten und Ingolstadt in etwa 45 Minuten. Auch eine Anbindung an den öffentlichen Nahverkehr ist über den Bahnhof Hilpoltstein gegeben.
Zell überzeugt durch seinen dörflichen Charme, eine ruhige Nachbarschaft und die naturnahe Lage - perfekt für Familien, Paare oder alle, die ein entspanntes Leben im Grünen mit urbaner Nähe verbinden möchten.
Sonstige Informationen
Dieses Haus ist mehr als nur ein Ort zum Wohnen - es ist ein Lebensgefühl. Perfekt für Menschen, die hohe Ansprüche an Technik, Komfort und Nachhaltigkeit stellen, aber auch das Gefühl von Zuhause, Ruhe und Geborgenheit schätzen. Eine außergewöhnliche Immobilie mit Charakter - bereit, Ihr neues Zuhause zu werden.
Haus und Terrasse
Wohnküche
Essen
Chillen
Eingangsbereich
vom OG ins EG geblickt
Treppenaufgang
Bad - Dusche und Wanne
Bad - Waschplätze
Schlafen mit Ankleide
Eines der drei "Kinder"Zimmer
Gäste-WC
Spitzboden - zum Ausbau vorbereitet
Eingangsbereich und Parken
Südwest-Terrasse mit Pergola
Traumhaus von oben
Erdgeschoss
Obergeschoss