Exposé
Objektart:
Wohnung
» Erdgeschoss
» Kauf
Standort: Wohnung »
Deutschland » Bayern » Neustadt a.d.Waldnaab (Kreis) » Waidhaus
ERSTBEZUG - Es fällt keine zusätzliche Käuferprovision an! Barrierearme, Sonnige Erdgeschosswohnung
Titelbild
Das Wichtigste auf einen Blick:
| Objektnummer: | 8559226 |
Preise
| Kaufpreis | 269.000 € |
| Nebenkosten | keine Angabe |
Flächen
| Wohnfläche | 82 m² |
| Nutzfläche | 7 m² |
| Maklerprovision | Es fällt keine zusätzliche Käuferprovision an |
Objekt Adresse
92726 Waidhaus
Sonstige Angaben
| Baujahr | 2023 |
| Zimmer | 2 |
| Verfügbar ab | keine Angabe |
| Inserat befindet sich im Stockwerk | 0 |
| Keller | Ja |
| Energieausweistyp | Bedarfsausweis |
| Gültig bis | 2034-03-02 |
| Baujahr (laut Energieausweis) | 2024 |
| Energieeffizienzklasse | A+ |
| Endenergiebedarf | 16.70 kWh/(m²*a) |
| Heizungsart | Fußbodenheizung |
| Wesentlicher Energieträger | Luftwp |
| Energieträger/Befeuerung | Luft-Wärme-Pumpe |
Objektbeschreibung
Verwirklichen Sie sich Ihren Wohntraum im sonnigen Mehrfamilienhaus in Waidhaus!
Hier bietet sich Ihnen die Möglichkeit, eine wunderschöne 2-Zimmer Wohnung im Erdgeschoss zu erwerben!
Bei allen Wohnungen werden durchwegs hochwertige Materialien verwendet. Auch der energetische Aspekt spielt bei diesem Neubauprojekt eine große Rolle. Durch das KfW Energieeffizienzhaus 40 können Sie Ihren Wohnkomfort hoch und Ihre Nebenkosten niedrig halten. Zusätzlich ist es möglich, ein gefördertes Darlehen über die KfW zu beantragen!
Insgesamt stehen acht Wohnungen zur Verfügung mit Wohnflächen zwischen 58 - 109 m². Davon sieben 2-Zimmer Wohnungen und im Erdgeschoss eine 4-Zimmer Wohnung.
Die beiden Wohnungen im Erdgeschoss verfügen über einen schönen Gartenanteil zum Seele baumeln lassen.
Im Erdgeschoss wurde zudem ein besonderes Augenmerk auf Barrierefreiheit gelegt.
Zugehörige Kellerabteile können als weitere Platzreserve genutzt werden. Zwei Carportstellplätze für je 15.000 EUR sowie 13 Stellplätze für je 8.000 EUR runden dieses hervorragende und in Waidhaus sehr seltene Angebot ab.
Die Gestaltung der Grundrisse spricht ein breites Mieterklientel an und sichert Ihnen so einen langfristigen Mietertrag. Durch die hochwertige Bauausführung bietet Ihnen das Objekt eine solide und langfristige Investition.
Aber auch Selbstnutzer werden sich hier rundum wohl fühlen.
Bei Bedarf kann man die angezeigte Küche mit erwerben.
Hier bietet sich Ihnen die Möglichkeit, eine wunderschöne 2-Zimmer Wohnung im Erdgeschoss zu erwerben!
Bei allen Wohnungen werden durchwegs hochwertige Materialien verwendet. Auch der energetische Aspekt spielt bei diesem Neubauprojekt eine große Rolle. Durch das KfW Energieeffizienzhaus 40 können Sie Ihren Wohnkomfort hoch und Ihre Nebenkosten niedrig halten. Zusätzlich ist es möglich, ein gefördertes Darlehen über die KfW zu beantragen!
Insgesamt stehen acht Wohnungen zur Verfügung mit Wohnflächen zwischen 58 - 109 m². Davon sieben 2-Zimmer Wohnungen und im Erdgeschoss eine 4-Zimmer Wohnung.
Die beiden Wohnungen im Erdgeschoss verfügen über einen schönen Gartenanteil zum Seele baumeln lassen.
Im Erdgeschoss wurde zudem ein besonderes Augenmerk auf Barrierefreiheit gelegt.
Zugehörige Kellerabteile können als weitere Platzreserve genutzt werden. Zwei Carportstellplätze für je 15.000 EUR sowie 13 Stellplätze für je 8.000 EUR runden dieses hervorragende und in Waidhaus sehr seltene Angebot ab.
Die Gestaltung der Grundrisse spricht ein breites Mieterklientel an und sichert Ihnen so einen langfristigen Mietertrag. Durch die hochwertige Bauausführung bietet Ihnen das Objekt eine solide und langfristige Investition.
Aber auch Selbstnutzer werden sich hier rundum wohl fühlen.
Bei Bedarf kann man die angezeigte Küche mit erwerben.
Lage des Objektes
Die Wohnanlage befindet sich in Waidhaus, nahe des größten tschechischen Grenzübergangs.
In nur wenigen Minuten Fußmarsch erreicht man den Ortskern. Dort befindet sich die Grundschule, der Kindergarten, eine regionale Bäckerei, lokale Banken, ein Arzt und eine Apotheke.
Auch eine Einkaufsmöglichkeit für Güter des täglichen Bedarfs ist vor Ort. Die ortsansässigen Vereine beleben den Alltag und tragen das ganze Jahr über zum geselligen und kulturellen Leben in Waidhaus bei.
Ob Sportvereine, Faschingsverein, Musikverein, Imkerverein, Motorradfreunde und vieles mehr. Hier kann jeder für sich die richtige Gemeinschaft finden.
Für Naturliebhaber ist ein Ausflug zum nahegelegenen Sulzberg (755 m ) mit seinem urwaldähnlichen Naturwaldreservat oder ein Besuch im Naturbad ”Bäckeröd” ideal.
In nur wenigen Minuten Fußmarsch erreicht man den Ortskern. Dort befindet sich die Grundschule, der Kindergarten, eine regionale Bäckerei, lokale Banken, ein Arzt und eine Apotheke.
Auch eine Einkaufsmöglichkeit für Güter des täglichen Bedarfs ist vor Ort. Die ortsansässigen Vereine beleben den Alltag und tragen das ganze Jahr über zum geselligen und kulturellen Leben in Waidhaus bei.
Ob Sportvereine, Faschingsverein, Musikverein, Imkerverein, Motorradfreunde und vieles mehr. Hier kann jeder für sich die richtige Gemeinschaft finden.
Für Naturliebhaber ist ein Ausflug zum nahegelegenen Sulzberg (755 m ) mit seinem urwaldähnlichen Naturwaldreservat oder ein Besuch im Naturbad ”Bäckeröd” ideal.
Terrasse
Wohnbereich
optionale Küche
Schlafzimmer
Badezimmer
Eingangsbereich
Grundriss 1. Obergeschoß
Grundriss 2. Obergeschoß
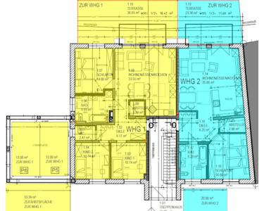
Grundriss Erdgeschoß
Grundriss Keller