Exposé
Objektart:
Wohnung
» Etage
» Kauf
Standort: Wohnung »
Deutschland » Berlin » Berlin, Stadt (Kreis) » Berlin
Als Kapitalanlage - Kompaktes Altbau-Apartment in bester City-Lage
Hausansicht - Visualisierung
Das Wichtigste auf einen Blick:
| Objektnummer: | 8403542 |
Preise
| Kaufpreis | 268.177 € |
| Nebenkosten | keine Angabe |
| Heizkosten enthalten | Ja |
| Hausgeld | 90,73 € |
Flächen
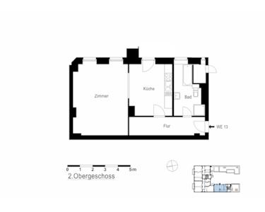
| Wohnfläche | 54,73 m² |
| Gesamtfläche | 54,73 m² |
| Fläche teilbar ab | 54,73 m² |
| Maklerprovision | 3,57 % inkl. gesetzliche MwSt |
Objekt Adresse
Pestalozzistraße 98
10625 Berlin
- Berlin
Sonstige Angaben
| Baujahr | 1896 |
| Zimmer | 1 |
| Verfügbar ab | vermietet seit 01.07.2019 |
| Inserat befindet sich im Stockwerk | 2 |
| Energieausweistyp | Verbrauch |
| Ausstellungsdatum | 21. 03. 2018 |
| Gültig bis | 20.03.2028 |
| Energieeffizienzklasse | E |
| Energieverbrauchkennwert | 138.6 kWh/(m²*a) |
| Wesentlicher Energieträger | Gas |
| Energieträger/Befeuerung | Gas |
Objektbeschreibung
Das 5-geschossige Wohn- und Geschäftshaus aus dem Jahr 1900 präsentiert sich in einem renovierten Zustand. Ein neuer Anstrich der Fassade und des Treppenhauses sorgen für eine weitere Aufwertung des Altbaus. Auch die 15 zum Verkauf stehenden 2- bis 4 Zimmer-Wohnungen mit Wohnflächen zwischen ca. 55 m² und ca. 140 m² befinden sich in einem gepflegten bis unrenovierten Zustand und sind mit altbautypischen Elementen wie stuckverzierten Decken und teilweise hochwertigem Dielenboden ausgestattet. Die meisten der sowohl für Eigennutzer als auch Kapitalanleger attraktiven Wohnungen verfügen zudem über Balkone im Vorderhaus. Zwei Gewerbeeinheiten im Erdgeschoss mit bis zu 110 m² Fläche komplettieren das Angebot.
Bei diesem Angebot handelt es sich um eine gepflegte Altbauwohnung mit ca. 55 m² Wohnfläche, die sich auf einen geräumigen Wohn-/ Schlafbereich mit angrenzender Küche sowie ein Tageslichtbad verteilen. Neben Stilelementen profitiert das Apartment von der ruhigen Lage im Seitenflügel und Ausrichtung zum Innenhof.
Die Wohnung ist seit dem 01.07.2019 vermietet. Die monatliche Nettokaltmiete beträgt 638,00 EUR. Für den Mieter besteht ein gesetzliches Vorkaufsrecht. Für den Käufer gibt es eine Sperrfrist von 10 Jahren. Für diesen Zeitraum ist die Kündigung wegen Eigenbedarf ausgeschlossen.
Bei diesem Angebot handelt es sich um eine gepflegte Altbauwohnung mit ca. 55 m² Wohnfläche, die sich auf einen geräumigen Wohn-/ Schlafbereich mit angrenzender Küche sowie ein Tageslichtbad verteilen. Neben Stilelementen profitiert das Apartment von der ruhigen Lage im Seitenflügel und Ausrichtung zum Innenhof.
Die Wohnung ist seit dem 01.07.2019 vermietet. Die monatliche Nettokaltmiete beträgt 638,00 EUR. Für den Mieter besteht ein gesetzliches Vorkaufsrecht. Für den Käufer gibt es eine Sperrfrist von 10 Jahren. Für diesen Zeitraum ist die Kündigung wegen Eigenbedarf ausgeschlossen.
Lage des Objektes
Umgeben von prachtvollen Altbauten und in direkter Nachbarschaft zum Savignyplatz reiht sich der repräsentative Altbau in der Pestalozzistraße hervorragend in seine hochherrschaftliche Umgebung ein. Die Wohngegend im Ortsteil Berlin-Charlottenburg gehört zu den begehrtesten Wohnlagen des Berliner Westens, denn hier findet der anspruchsvolle Großstädter alle Annehmlichkeiten einer exklusiven Lage. Die Pestalozzistraße verläuft als Parallelstraße zur lebendigen und hippen Kantstraße und Berlins beliebtesten Boulevard – dem Kurfürstendamm. Dieser bietet renommierte Boutiquen, bekannte Luxus-Designer-Marken sowie hochkarätige Gastronomie- und Kulturangebot welche für eine internationale Atmosphäre im pulsierenden Hotspot der City-West sorgen. Aber auch die Nachbarschaft rund um den Savignyplatz überzeugt mit großer kulinarischer Vielfalt und zahlreichen Ausgehmöglichkeiten. Wahre Ruhepole bilden hingegen die Naherholungsgebiete Grunewald und Tiergarten, die nur 10 PKW-Minuten entfernt liegen. Mit mehreren umliegenden U- und S-Bahn-Stationen und der unweit gelegenen A100 ist eine sehr gute Verkehrsanbindung gewährleistet.
Innenhof - Visualisierung
Hausflur - Visualisierung
Umgebung
Umgebung
Umgebung
Umgebung
Umgebung
Grundriss