Neubau Westersander-Ihlow provisionsfrei
349.000 €
Kaufpreis
100 m²
Wohnfläche
3
Zimmer
immobilien.de Nr.: 9509922
Objektnummer: 426240
Kaufpreis
| Kaufpreis | 349.000 € |
| Maklerprovision | keine Provision, courtagefrei |
Wohnfläche, Grundstück & Bausubstanz
| Wohnfläche | 100 m² |
| Grundstücksfläche | 520 m² |
| Zimmer | 3 |
| Baujahr | 2026 |
| Verfügbar ab | nach Absprache |
| Zustand | Erstbezug |
Energie
| Heizungsart | Fußbodenheizung |
| Energieträger/Befeuerung | Luft-Wärme-Pumpe |
Beschreibung der Immobilie
Hier könnte Ihr Einfamilienhaus von 100m²-145 m² Wohnfläche entstehen. Die Grundstücke sind jeweils 520m² groß.
Die Preise von ca. 350.000€ bis 448.000€ beziehen sich auf schlüsselfertiger Bauweise ohne Einbauküche, inklusive Grundstück.
Die Häuser können altersgerecht nur im Erdgeschoss ausgebaut werden oder ganz typisch Erdgeschoss und Obergeschoss. Falls nur Erdgeschoss gewählt wird, hat man für die Zukunft oder für eine Veränderung im Obergeschoss eine Ausbaureserve.Die klassische norddeutsche Architektur mit moderner, absolut energiesparender Bauweise. Die harmonische Klinkerfassade, das Satteldach mit weißen Windfedern und die grünen Klappläden verleihen dem Haus einen zeitlosen Charakter mit ruhiger Ausstrahlung.
Bereits beim Betreten empfängt Sie ein freundlicher Eingangsbereich mit Treppenaufgang falls Ausbau Obergeschoss geplant ist. Das Erdgeschoss überzeugt durch eine klare, funktionale Raumstruktur und großzügige Lichtverhältnisse. Herzstück des Hauses ist die offene Küche mit Essbereich und mit Übergang zum Wohnzimmer. Vom Essbereich hat man direkten Zugang zur Terrasse und in den Garten. Das bodentiefe Element und die anderen Fenster schaffen eine helle, einladende Atmosphäre und verbinden Innen- und Außenbereich auf angenehme Weise.
Die Küche ist harmonisch in den Wohnbereich integriert und bietet ausreichend Platz für gemeinsames Kochen und gesellige Abende. Ein separates Büro im Erdgeschoss ermöglicht konzentriertes Arbeiten im Homeoffice oder dient alternativ als Gästezimmer. Ergänzt wird diese Ebene durch einen praktischen Hauswirtschaftsraum sowie einem Gäste-WC.
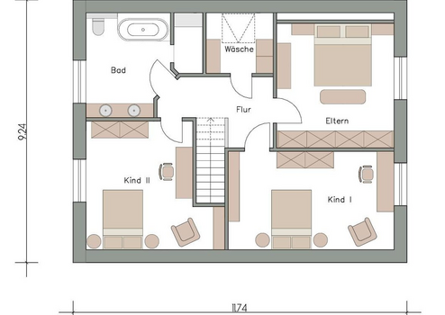
Im Obergeschoss erwarten Sie ein großzügiges Schlafzimmer, zwei weitere flexibel nutzbare Zimmer – ideal als Kinder-, Gäste- oder Arbeitszimmer – sowie ein modernes Badezimmer. Die durchdachte Grundrissgestaltung sorgt für optimale Nutzung der Wohnfläche und eine angenehme Privatsphäre für alle Bewohner.
Besonders hervorzuheben ist das zukunftssichere Energiekonzept: Eine moderne Luft-Wärmepumpe in Kombination mit einer Photovoltaikanlage gewährleistet dauerhaft niedrige Energiekosten und eine hohe Unabhängigkeit von steigenden Energiepreisen. Fußbodenheizung im gesamten Haus sorgt für gleichmäßige, behagliche Wärme. Die hochwertige Dämmung und energieeffiziente Fenster unterstreichen den nachhaltigen Anspruch dieser Immobilie.
Helle Materialien, eine klare Linienführung und die klassische Fassadengestaltung schaffen ein Zuhause mit Charakter – ideal für Familien, Paare oder Menschen, die großzügig und gleichzeitig bewusst wohnen möchten.
Ein Haus mit Substanz.
Ein Haus mit Weitblick.
Ein Haus für die Zukunft.
Die Preise von ca. 350.000€ bis 448.000€ beziehen sich auf schlüsselfertiger Bauweise ohne Einbauküche, inklusive Grundstück.
Die Häuser können altersgerecht nur im Erdgeschoss ausgebaut werden oder ganz typisch Erdgeschoss und Obergeschoss. Falls nur Erdgeschoss gewählt wird, hat man für die Zukunft oder für eine Veränderung im Obergeschoss eine Ausbaureserve.Die klassische norddeutsche Architektur mit moderner, absolut energiesparender Bauweise. Die harmonische Klinkerfassade, das Satteldach mit weißen Windfedern und die grünen Klappläden verleihen dem Haus einen zeitlosen Charakter mit ruhiger Ausstrahlung.
Bereits beim Betreten empfängt Sie ein freundlicher Eingangsbereich mit Treppenaufgang falls Ausbau Obergeschoss geplant ist. Das Erdgeschoss überzeugt durch eine klare, funktionale Raumstruktur und großzügige Lichtverhältnisse. Herzstück des Hauses ist die offene Küche mit Essbereich und mit Übergang zum Wohnzimmer. Vom Essbereich hat man direkten Zugang zur Terrasse und in den Garten. Das bodentiefe Element und die anderen Fenster schaffen eine helle, einladende Atmosphäre und verbinden Innen- und Außenbereich auf angenehme Weise.
Die Küche ist harmonisch in den Wohnbereich integriert und bietet ausreichend Platz für gemeinsames Kochen und gesellige Abende. Ein separates Büro im Erdgeschoss ermöglicht konzentriertes Arbeiten im Homeoffice oder dient alternativ als Gästezimmer. Ergänzt wird diese Ebene durch einen praktischen Hauswirtschaftsraum sowie einem Gäste-WC.
Im Obergeschoss erwarten Sie ein großzügiges Schlafzimmer, zwei weitere flexibel nutzbare Zimmer – ideal als Kinder-, Gäste- oder Arbeitszimmer – sowie ein modernes Badezimmer. Die durchdachte Grundrissgestaltung sorgt für optimale Nutzung der Wohnfläche und eine angenehme Privatsphäre für alle Bewohner.
Besonders hervorzuheben ist das zukunftssichere Energiekonzept: Eine moderne Luft-Wärmepumpe in Kombination mit einer Photovoltaikanlage gewährleistet dauerhaft niedrige Energiekosten und eine hohe Unabhängigkeit von steigenden Energiepreisen. Fußbodenheizung im gesamten Haus sorgt für gleichmäßige, behagliche Wärme. Die hochwertige Dämmung und energieeffiziente Fenster unterstreichen den nachhaltigen Anspruch dieser Immobilie.
Helle Materialien, eine klare Linienführung und die klassische Fassadengestaltung schaffen ein Zuhause mit Charakter – ideal für Familien, Paare oder Menschen, die großzügig und gleichzeitig bewusst wohnen möchten.
Ein Haus mit Substanz.
Ein Haus mit Weitblick.
Ein Haus für die Zukunft.
Ausstattungsmerkmale
| Anzahl der Etagen im Haus | 1 |
| Bad | 1 |
| Bad | Dusche |
| Boden | Fliesen, Parkett, Kunststoff |
| Balkone | 0 |
| Garten | |
| Terrassen | 1 |
| Carport | 1 |
Terrasse, Garten, Duschbad, Kamin, Parkett, Fliesen
Bemerkungen:
Bei dem dargestellten Objekt handelt es sich um eine geplante Neubauimmobilie. Die in diesem Exposé gezeigten Grundrisse, Ansichten und Visualisierungen dienen der Veranschaulichung eines möglichen Baukonzeptes und stellen eine beispielhafte Ausführung des Hauses dar.
Geplant ist der Bau eines stilvollen Einfamilienhauses im norddeutschen bzw. ostfriesischen Stil mit klassischem Satteldach. Da sich das Projekt noch in der Planungsphase befindet, haben zukünftige Erwerber die Möglichkeit, individuelle Wünsche und Vorstellungen in die Planung einfließen zu lassen. Sowohl der Grundriss als auch Ausstattungsdetails, Materialien und Raumaufteilungen können – im Rahmen der baulichen Möglichkeiten – gemeinsam angepasst werden.
Somit entsteht für die Käufer die Chance, ein Haus zu realisieren, das optimal auf die eigenen Bedürfnisse zugeschnitten ist. Das Exposé dient daher als Beispiel dafür, wie das Haus auf einem der beiden Grundstücke umgesetzt werden könnte.
Es können auch verschiedene Ausbaustufen verabredet werden.
Der genannte Preis bezieht sich auf ein schlüsselfertiges Einfamilienhaus mit einer Größe von ca. 145qm und einem Grundstück mit einer Größe von 520qm.
In der Ausbaustufe "Rohbau-Plus" sind die Malerarbeiten und Bodenbelagsarbeiten dann noch auszuführen und die Zimmertüren und Badmöbel müssten noch eingebaut werden. Diese Dinge würden in der Baubeschreibung genau besprochen werden und würden den Kaufpreis je nach Ausbaustufe senken.
Bemerkungen:
Bei dem dargestellten Objekt handelt es sich um eine geplante Neubauimmobilie. Die in diesem Exposé gezeigten Grundrisse, Ansichten und Visualisierungen dienen der Veranschaulichung eines möglichen Baukonzeptes und stellen eine beispielhafte Ausführung des Hauses dar.
Geplant ist der Bau eines stilvollen Einfamilienhauses im norddeutschen bzw. ostfriesischen Stil mit klassischem Satteldach. Da sich das Projekt noch in der Planungsphase befindet, haben zukünftige Erwerber die Möglichkeit, individuelle Wünsche und Vorstellungen in die Planung einfließen zu lassen. Sowohl der Grundriss als auch Ausstattungsdetails, Materialien und Raumaufteilungen können – im Rahmen der baulichen Möglichkeiten – gemeinsam angepasst werden.
Somit entsteht für die Käufer die Chance, ein Haus zu realisieren, das optimal auf die eigenen Bedürfnisse zugeschnitten ist. Das Exposé dient daher als Beispiel dafür, wie das Haus auf einem der beiden Grundstücke umgesetzt werden könnte.
Es können auch verschiedene Ausbaustufen verabredet werden.
Der genannte Preis bezieht sich auf ein schlüsselfertiges Einfamilienhaus mit einer Größe von ca. 145qm und einem Grundstück mit einer Größe von 520qm.
In der Ausbaustufe "Rohbau-Plus" sind die Malerarbeiten und Bodenbelagsarbeiten dann noch auszuführen und die Zimmertüren und Badmöbel müssten noch eingebaut werden. Diese Dinge würden in der Baubeschreibung genau besprochen werden und würden den Kaufpreis je nach Ausbaustufe senken.
Sonstige Informationen
Heizungsart: Fußbodenheizung
Energieträger: Luft-/Wasserwärme
Energieausweis nicht vorhanden
Bei dem dargestellten Objekt handelt es sich um eine geplante Neubauimmobilie. Die in diesem Exposé gezeigten Grundrisse, Ansichten und Visualisierungen dienen der Veranschaulichung eines möglichen Baukonzeptes und stellen eine beispielhafte Ausführung des Hauses dar.
Geplant ist der Bau eines stilvollen Einfamilienhauses im norddeutschen bzw. ostfriesischen Stil mit klassischem Satteldach. Da sich das Projekt noch in der Planungsphase befindet, haben zukünftige Erwerber die Möglichkeit, individuelle Wünsche und Vorstellungen in die Planung einfließen zu lassen. Sowohl der Grundriss als auch Ausstattungsdetails, Materialien und Raumaufteilungen können – im Rahmen der baulichen Möglichkeiten – gemeinsam angepasst werden.
Somit entsteht für die Käufer die Chance, ein Haus zu realisieren, das optimal auf die eigenen Bedürfnisse zugeschnitten ist. Das Exposé dient daher als Beispiel dafür, wie das Haus auf diesem Grundstück umgesetzt werden könnte.
Makleranfragen nicht erwünscht. Nach § 7 UWG sind unaufgeforderte Kontaktaufnahmen durch Makler ohne ausdrückliche Einwilligung des Empfängers verboten!
ohne-makler (OM) ist weder Anbieter noch Vermittler der Immobilie. OM betreibt eine Plattform für Immobilieneigentümer, die unter anderem die gleichzeitige Veröffentlichung einzelner Inserate auf mehreren Immobilienportalen ermöglicht. Die Inhalte dieser Inserate werden ausschließlich von Dritten verantwortet. Für die Richtigkeit, Vollständigkeit oder Rechtmäßigkeit der Angaben übernimmt OM keine Haftung. Hinweise auf mögliche Rechtsverstöße können jederzeit gemeldet werden und werden nach Prüfung umgehend bearbeitet.
Energieträger: Luft-/Wasserwärme
Energieausweis nicht vorhanden
Bei dem dargestellten Objekt handelt es sich um eine geplante Neubauimmobilie. Die in diesem Exposé gezeigten Grundrisse, Ansichten und Visualisierungen dienen der Veranschaulichung eines möglichen Baukonzeptes und stellen eine beispielhafte Ausführung des Hauses dar.
Geplant ist der Bau eines stilvollen Einfamilienhauses im norddeutschen bzw. ostfriesischen Stil mit klassischem Satteldach. Da sich das Projekt noch in der Planungsphase befindet, haben zukünftige Erwerber die Möglichkeit, individuelle Wünsche und Vorstellungen in die Planung einfließen zu lassen. Sowohl der Grundriss als auch Ausstattungsdetails, Materialien und Raumaufteilungen können – im Rahmen der baulichen Möglichkeiten – gemeinsam angepasst werden.
Somit entsteht für die Käufer die Chance, ein Haus zu realisieren, das optimal auf die eigenen Bedürfnisse zugeschnitten ist. Das Exposé dient daher als Beispiel dafür, wie das Haus auf diesem Grundstück umgesetzt werden könnte.
Makleranfragen nicht erwünscht. Nach § 7 UWG sind unaufgeforderte Kontaktaufnahmen durch Makler ohne ausdrückliche Einwilligung des Empfängers verboten!
ohne-makler (OM) ist weder Anbieter noch Vermittler der Immobilie. OM betreibt eine Plattform für Immobilieneigentümer, die unter anderem die gleichzeitige Veröffentlichung einzelner Inserate auf mehreren Immobilienportalen ermöglicht. Die Inhalte dieser Inserate werden ausschließlich von Dritten verantwortet. Für die Richtigkeit, Vollständigkeit oder Rechtmäßigkeit der Angaben übernimmt OM keine Haftung. Hinweise auf mögliche Rechtsverstöße können jederzeit gemeldet werden und werden nach Prüfung umgehend bearbeitet.
Karte wird geladen...
Objektstandort
26632 Westersander
- Niedersachsen
Lage & Infrastruktur
Objektstandort
26632 Westersander
- Niedersachsen
Das angebotene Einfamilienhaus befindet sich in Westersander, einem idyllischen Ortsteil der Gemeinde Ihlow im Landkreis Aurich. Die Umgebung ist geprägt von weitläufigen Grünflächen, typischen Wallheckenlandschaften und einer ruhigen, ländlichen Atmosphäre.
Trotz der naturnahen Lage ist die Infrastruktur gut ausgebaut. Die Städte Aurich, Leer und Emden sind in kurzer Zeit erreichbar und bieten vielfältige Einkaufsmöglichkeiten, Schulen, ärztliche Versorgung sowie kulturelle Angebote. Einrichtungen des täglichen Bedarfs befinden sich in der näheren Umgebung.
Die Region bietet zahlreiche Freizeitmöglichkeiten: Rad- und Wanderwege führen durch die ostfriesische Landschaft, und die umliegenden Kanäle bieten ideale Bedingungen für Wassersport und Erholung.
Dank der guten Verkehrsanbindung eignet sich die Lage sowohl für Ruhesuchende als auch für Berufspendler, die das Wohnen im Grünen mit der Nähe zur Stadt verbinden möchten.
Es stehen zwei Grundstücke mit jeweils 520qm zur Verfügung um dort Einfamilienhäuser zu realisieren. Schöne Nord-Süd Ausrichtung ist gegeben.
Infrastruktur (im Umkreis von 5 km):
Kindergarten, Grundschule, Öffentliche Verkehrsmittel
Trotz der naturnahen Lage ist die Infrastruktur gut ausgebaut. Die Städte Aurich, Leer und Emden sind in kurzer Zeit erreichbar und bieten vielfältige Einkaufsmöglichkeiten, Schulen, ärztliche Versorgung sowie kulturelle Angebote. Einrichtungen des täglichen Bedarfs befinden sich in der näheren Umgebung.
Die Region bietet zahlreiche Freizeitmöglichkeiten: Rad- und Wanderwege führen durch die ostfriesische Landschaft, und die umliegenden Kanäle bieten ideale Bedingungen für Wassersport und Erholung.
Dank der guten Verkehrsanbindung eignet sich die Lage sowohl für Ruhesuchende als auch für Berufspendler, die das Wohnen im Grünen mit der Nähe zur Stadt verbinden möchten.
Es stehen zwei Grundstücke mit jeweils 520qm zur Verfügung um dort Einfamilienhäuser zu realisieren. Schöne Nord-Süd Ausrichtung ist gegeben.
Infrastruktur (im Umkreis von 5 km):
Kindergarten, Grundschule, Öffentliche Verkehrsmittel
Kontaktanfrage senden
Über den Anbieter
OM PropTech GmbH
Humboldtstraße 25a
21509 Glinde
Kontakt
| Telefon | - |
| Fax | - |
| Website | www.ohne-makler.net |
Ansprechpartner/in
Angebot von Lars Raters
Weitere Angebote des Anbieters
22
6 Blockhäuser/Ferienhäuser mit sehr guter Rendite, in ...
Zinshaus Renditeobjekt
38644 Goslar OT Hahnenklee
360°-Rundgang: https://www.ohne-makler.net/panorama/313064/ Wir verkaufen hier unsere 6 Block-Bohlen-Häuser in bester Lage mit je ca. 75 qm für 1.800.000,- €. Die Objekte wurden von uns bisher als reine Renditeobjekte ...
1.800.000 €
Kaufpreis
450 m²
Wohnfläche
keine Angabe
Zimmer
14
Bezugsfrei im denkmalgeschützten Ensemble - ...
Wohnung
12489 Berlin
Das denkmalgeschützte Objekt wurde 1930 errichtet. 2003 fand eine Komplettsanierung statt. Dach, Stränge, Elektrik, Heizung, Fassade etc
199.000 €
Kaufpreis
51,49 m²
Wohnfläche
2
Zimmer
10
Wohnen mit Wohlfühlfaktor: Moderne 2-Zimmer-Wohnung in ...
Wohnung
71729 Erdmannhausen
Diese modernisierte Wohnung überzeugt durch ihre hochwertige Ausstattung und eine umfassende energetische Sanierung. Die Immobilie wurde ursprünglich im Jahr 1965 erbaut und wird aktuell seriell in den Jahren 2025/2026 ...
1.000 €
Kaltmiete (netto)
63,5 m²
Wohnfläche
2
Zimmer
4
Böblingen-Mitte 125 qm Großraum-Büro
Büro / Praxen
71032 Böblingen
In einem Wohn- und Geschäftshaus in BB-Mitte sind 125 qm zu verpachten. Bodentiefe Fenster auf einer Seite. Geeignet auch für Startup oder als Atelier. Bodenrenovierung und Entfernung der Zwischenwände erfolgt ...
1.050 €
Kaltmiete (netto)
1050 m²
Gesamtfläche
8
1-Zimmer-Appartement im Zentrum von Charlottenburg
Wohnung
10627 Berlin
Ein-Zimmer-Appartement hat einen kleinen Balkon in Südausrichtung und ist mit neuer Küchenzeile und hochwertigen Markengeräten ausgestattet. Das separate Bad ist komplett gefliest und hat eine ebenerdige Dusche. Eine ...
160.000 €
Kaufpreis
26,3 m²
Wohnfläche
1
Zimmer