Neuer Mieter ab sofort gesucht - Helle 3-Zimmer-Wohnung mit Balkon - provisionsfrei
1.292,16 €
Kaltmiete (netto)
1.599,16 €
Warmmiete
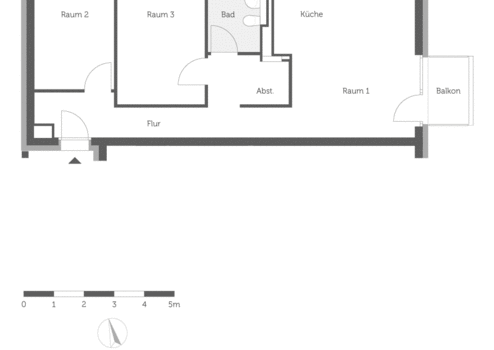
72,22 m²
Wohnfläche
3
Zimmer
immobilien.de Nr.: 9508541
Objektnummer: 0100/01035/0201/0057
Dateien
Mietpreis & Nebenkosten
| Kaltmiete (netto) | 1.292,16 € |
| Warmmiete | 1.599,16 € |
| Nebenkosten | 187 € |
| Heizkosten | 120 € |
| Kaution | 3876,48 € |
Wohnfläche, Grundstück & Bausubstanz
| Wohnfläche | 72,22 m² |
| Zimmer | 3 |
| Baujahr | 2022 |
| Verfügbar ab | 01.04.2026 |
Energie
| Energieausweistyp | Bedarfsausweis |
| Energieeffizienzklasse | B |
| Endenergiebedarf | 62.00 |
| Heizungsart | Zentralheizung |
| Energieträger/Befeuerung | Fernwärme |
Beschreibung der Immobilie
Die gut geschnittene Neubauwohnung befindet sich in neuer und gepflegter Wohnanlage. Der offen gehaltene Wohn- und Küchenbereich lässt vielfältige Gestaltungsmöglichkeiten zu. Alle Wohnungen verfügen über zentrale Warmwasserversorgung, Fußbodenheizung, hochwertigen Bodenbelag und Dusch- und/oder Wannenbad. Die Häuser der Waterkant wurden ohne zusätzliche Kellerräume erbaut. Sie sind an einer Besichtigung interessiert? Dann senden Sie uns bitte eine einfache Anfrage über den entsprechenden Button ("Anbieter kontaktieren" oder "Anfrage senden").
Ausstattungsmerkmale
| Anzahl der Etagen im Haus | 4 |
| Inserat befindet sich im Stockwerk | 3 |
| Balkone | 1 |
| Fahrstuhl | |
| Barrierefrei | |
| Haustiere |
Badewanne, bodengleiche Dusche, Fliesenboden, Fernheizung/Zentralheizung, Fern-/Zentralwarmwasserversorgung, Kunststoff-Bodenbelag, Steinboden, Schallschutzfenster, Glasfaserleitung, Fußbodenheizung, Barrierearme Wohnungsgestaltung
Sonstige Informationen
Hinweis zu Ihrem Schutz: Wir vermieten provisionsfrei gemäß § 2 WoVermG. Personen, die im Auftrag der Gewobag tätig sind, dürfen keine Provision von Ihnen verlangen.
Anbieter
Eigentümer/Vermieter oder Verwalter des jeweiligen Mietobjekts ist Gewobag Wohnungsbau-Aktien- gesellschaft Berlin. Die Gewobag MB Mieterberatungsgesellschaft mbH übernimmt den Vermietungsservice für diese Gesellschaft. Weitere Informationen finden Sie unter www.gewobag.de/datenschutz .
Anbieter
Eigentümer/Vermieter oder Verwalter des jeweiligen Mietobjekts ist Gewobag Wohnungsbau-Aktien- gesellschaft Berlin. Die Gewobag MB Mieterberatungsgesellschaft mbH übernimmt den Vermietungsservice für diese Gesellschaft. Weitere Informationen finden Sie unter www.gewobag.de/datenschutz .
Karte wird geladen...
Objektstandort
Rhenaniastr. 50
13599 Berlin
Lage & Infrastruktur
Objektstandort
Rhenaniastr. 50
13599 Berlin
Am östlichen Ufer der Oberhavel in Berlin Spandau entsteht ein modernes Wohnquartier - die Waterkant Berlin. Die natürliche Grenze im Westen bildet die Havel. Kitas, Schulen, ein Krankenhaus und die Nähe zur beliebten Einkaufsstraße der Altstadt Spandau machen diese naturnahe Lage besonders attraktiv.
Kontaktanfrage senden
Über den Anbieter
Gewobag Wohnungsbau-Aktiengesellschaft Berlin
Alt-Moabit 101 A
10559 Berlin
Kontakt
| Telefon | +49 30 47084000 |
| Website | www.gewobag.de |
Ansprechpartner/in
Gewobag MB Mieterberat.ges. mbH (Vermietungs-Service)
Weitere Angebote des Anbieters
7
Singlewohnung ab sofort verfügbar
Wohnung
13589 Berlin
Die gut geschnittene Einzimmerwohnung mit Balkon befindet sich im 4.Obergeschoss, das Haus verfügt über einen Aufzug. Die Wohnung ist unter anderem mit einem Linoleum- Bodenbelag, einem Wannenbad und Warmwasserversorgun ...
325,42 €
Kaltmiete (netto)
41,55 m²
Wohnfläche
1
Zimmer
7
Singlewohnung frei
Wohnung
13589 Berlin
Die gut geschnittene Einzimmerwohnung mit Balkon befindet sich im 1.Obergeschoss, das Haus verfügt über einen Aufzug. Die Wohnung ist unter anderem mit einem Linoleum- Bodenbelag, einem Wannenbad und Warmwasserversorgun ...
301,53 €
Kaltmiete (netto)
38,5 m²
Wohnfläche
1
Zimmer
10
Familienwohnung frei
Wohnung
13589 Berlin
Die gut geschnittene Dreizimmerwohnung mit Balkon befindet sich im 4.Obergeschoss, das Haus verfügt über einen Aufzug. Die Wohnung ist unter anderem mit einem Linoleum- Bodenbelag, einem Wannenbad und Warmwasserversorgu ...
540,19 €
Kaltmiete (netto)
83,66 m²
Wohnfläche
3
Zimmer
8
Dachgeschosswohnung mit Terrasse und Fußbodenheizung ...
Wohnung
13599 Berlin
Die gut geschnittene Neubauwohnung befindet sich in neuer und gepflegter Wohnanlage. Der offen gehaltene Wohnbereich lässt vielfältige Gestaltungsmöglichkeiten zu. Ein Großteil der Wohnungen verfügen über zentrale ...
1.052,86 €
Kaltmiete (netto)
66,29 m²
Wohnfläche
2
Zimmer
11
Neubauwohnung im Dachgeschoss mit Fußbodenheizung und ...
Wohnung
13599 Berlin
Die gut geschnittene Neubauwohnung befindet sich in neuer und gepflegter Wohnanlage. Der offen gehaltene Wohn- und Küchenbereich lässt vielfältige Gestaltungsmöglichkeiten zu. Die Wohnungen verfügen über Fußbodenheizung ...
1.423,4 €
Kaltmiete (netto)
89,62 m²
Wohnfläche
4
Zimmer