Bauen Sie Ihre Doppelhaushälfte mit Fernblick nahe Bodensee - inkl. GRUNDSTÜCK
727.000 €
Kaufpreis
140 m²
Wohnfläche
5
Zimmer
immobilien.de Nr.: 9365482
Objektnummer: FA088-49
Preise & Kosten
| Kaufpreis | 727.000 € |
| Nebenkosten | keine Angabe |
| Stellplatz Garage Kaufpreis | 15.000 € |
Größe & Zustand
| Wohnfläche | 140 m² |
| Grundstücksfläche | 809 m² |
| Zimmer | 5 |
| Baujahr | 2026 |
| Verfügbar ab | keine Angabe |
| Zustand | Projektiert |
Energie
| Energietyp | KfW-40 |
| Heizungsart | Zentralheizung |
| Energieträger/Befeuerung | Luft-Wärme-Pumpe |
Objektbeschreibung
Herzlich willkommen bei STREIF, Ihrem kompetenten Partner für den Bau Ihres Traumhauses nahe Bodensee. Gestalten Sie Ihr Traumhaus ganz nach Ihren Wünschen und Vorstellungen. Des Weiteren bieten wir Ihnen diverse Optionen hinsichtlich Ihres Budgets und den Eigenleistungen. So können wir Ihr Haus komplett schlüsselfertig bauen oder auch als Ausbauhaus realisieren.
Die gezeigten Fotos und Grundrisse ist ein Hausbeispiel welches in der realen Umgebung abgebildet wird, und so umgesetzt werden kann. Jedes STREIF-Haus wird individuell nach Kundenwunsch geplant und gebaut.
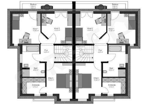
Die projektierte Doppelhaushälfte entspricht dem KFW40 Standard und erstreckt sich über 2 Etagen mit einer Raumgrundfläche von 140,00 m². Die gehobene Ausstattung sowie die Befeuerungsart mittels Wärmepumpe sorgen für eine angenehme Wohnatmosphäre und tragen zur Nachhaltigkeit des Objekts bei.
Bei STREIF haben Sie die Wahl zwischen verschiedenen Ausbaustufen. Das hier projektierte Objekt umfasst die Ausbaustufe 3 - FastFertig+: mit Sanitär-Grundausstattung. Diese Ausbaustufe eignet sich perfekt, wenn Sie bei der Erstellung Ihres Hauses mitwirken möchten, aber die haustechnischen Gewerke (Heizung, Lüftung, Sanitär und Estrich) von einem Fachbetrieb erledigt wissen möchten. Dadurch erhalten Sie maximale Flexibilität bei gleichzeitiger professioneller Umsetzung.
Ich zeige Ihnen vielfältige Möglichkeiten auf und notiere Ihre individuellen Wünsche. Auf dieser Grundlage wird die Grundriss- und Raumgestaltung Ihrer Doppelhaushälfte erstellt - ganz nach Ihren Vorstellungen.
Überzeugen Sie sich selbst von den vielfältigen Gestaltungsmöglichkeiten und profitieren Sie von unserer langjährigen Erfahrung im Bauwesen. Gerne stehe ich Ihnen für weitere Informationen zur Verfügung und freue mich darauf, gemeinsam mit Ihnen Ihr Traumhaus zu verwirklichen.
Die gezeigten Fotos und Grundrisse ist ein Hausbeispiel welches in der realen Umgebung abgebildet wird, und so umgesetzt werden kann. Jedes STREIF-Haus wird individuell nach Kundenwunsch geplant und gebaut.
Die projektierte Doppelhaushälfte entspricht dem KFW40 Standard und erstreckt sich über 2 Etagen mit einer Raumgrundfläche von 140,00 m². Die gehobene Ausstattung sowie die Befeuerungsart mittels Wärmepumpe sorgen für eine angenehme Wohnatmosphäre und tragen zur Nachhaltigkeit des Objekts bei.
Bei STREIF haben Sie die Wahl zwischen verschiedenen Ausbaustufen. Das hier projektierte Objekt umfasst die Ausbaustufe 3 - FastFertig+: mit Sanitär-Grundausstattung. Diese Ausbaustufe eignet sich perfekt, wenn Sie bei der Erstellung Ihres Hauses mitwirken möchten, aber die haustechnischen Gewerke (Heizung, Lüftung, Sanitär und Estrich) von einem Fachbetrieb erledigt wissen möchten. Dadurch erhalten Sie maximale Flexibilität bei gleichzeitiger professioneller Umsetzung.
Ich zeige Ihnen vielfältige Möglichkeiten auf und notiere Ihre individuellen Wünsche. Auf dieser Grundlage wird die Grundriss- und Raumgestaltung Ihrer Doppelhaushälfte erstellt - ganz nach Ihren Vorstellungen.
Überzeugen Sie sich selbst von den vielfältigen Gestaltungsmöglichkeiten und profitieren Sie von unserer langjährigen Erfahrung im Bauwesen. Gerne stehe ich Ihnen für weitere Informationen zur Verfügung und freue mich darauf, gemeinsam mit Ihnen Ihr Traumhaus zu verwirklichen.
Ausstattung
| Anzahl der Etagen im Haus | 2 |
| Küche | Offene Küche |
| Bad | 1 |
| Bad | Dusche, Wanne, Fenster, Bidet |
| Terrassen | 1 |
| Garage/Stellplätze | 1 |
Wir bauen Ihr Traumhaus innerhalb von 12 Monaten einzugsfertig.
- 20-monatige Fair- und Festpreisgarantie
- Energieeffizienzhaus KfW 40 EE im Standard
- Inklusive gedämmter Fundamentplatte (Keller optional)
-Inklusive STREIF-Luft-Luft-Wärmepumpen-Technologie, mit integrierter Lüftungsanlage mit Wärmerückgewinnung (Luft-Wasser-Wärmepumpe optional)
- Inklusive hochwertiger Holzhaustür von KERA
- Inklusive Fenster von Porta/Kömmerling, Fenster innen weiß und außen farbig
- elektrische Rolladen
- Inklusive gebeizte wildeichen Treppe aus eigener Produktion
- Inklusive Sanitärobjekten von Markenherstellern in Bad/WC
- Inklusive Elektroinstallation
- Inklusive 8,9 kwp Photovoltaik-Anlage und Speicher
- Inklusive Baubetreuung
- Inklusive individueller Grundrissgestaltung und Raumaufteilung
Der Angebotspreis bezieht sich auf die Standard-Ausbaustufe Fast-Fertig-Plus. Ihre Eigenleistungen: Spachtel-, Tapezier- und Malerarbeiten, Bodenbeläge, Innentüren.
Baunebenkosten fallen zuzüglich an.
Die hohe Wertigkeit und Langlebigkeit eines STREIF-Energiespar-Hauses wird durch zahlreiche Auszeichnungen, Qualitäts- und Gütesiegel unabhängiger Institute und Verbände dokumentiert.
Änderungen und Irrtümer vorbehalten.
- 20-monatige Fair- und Festpreisgarantie
- Energieeffizienzhaus KfW 40 EE im Standard
- Inklusive gedämmter Fundamentplatte (Keller optional)
-Inklusive STREIF-Luft-Luft-Wärmepumpen-Technologie, mit integrierter Lüftungsanlage mit Wärmerückgewinnung (Luft-Wasser-Wärmepumpe optional)
- Inklusive hochwertiger Holzhaustür von KERA
- Inklusive Fenster von Porta/Kömmerling, Fenster innen weiß und außen farbig
- elektrische Rolladen
- Inklusive gebeizte wildeichen Treppe aus eigener Produktion
- Inklusive Sanitärobjekten von Markenherstellern in Bad/WC
- Inklusive Elektroinstallation
- Inklusive 8,9 kwp Photovoltaik-Anlage und Speicher
- Inklusive Baubetreuung
- Inklusive individueller Grundrissgestaltung und Raumaufteilung
Der Angebotspreis bezieht sich auf die Standard-Ausbaustufe Fast-Fertig-Plus. Ihre Eigenleistungen: Spachtel-, Tapezier- und Malerarbeiten, Bodenbeläge, Innentüren.
Baunebenkosten fallen zuzüglich an.
Die hohe Wertigkeit und Langlebigkeit eines STREIF-Energiespar-Hauses wird durch zahlreiche Auszeichnungen, Qualitäts- und Gütesiegel unabhängiger Institute und Verbände dokumentiert.
Änderungen und Irrtümer vorbehalten.
Sonstige Informationen
STREIF Leistungen sind mehr wert - schon im Grundpreis!
INDIVIDUELLE ARCHITEKTUR
-persönliche Architekten-Planung
-individuelle Grundrissgestaltung ohne Mehrpreis
UNSERE BAUWEISE
-mehrschichtiger diffusionsvariabler Wandaufbau bis U-Wert 0,10 W / m² * K - im Gefach (zwischen den Stielen) gemessen
-hochstabile Innenwand und Konstruktion
-Fenster gesamt: Uw-Wert 0,81 W/m² * K
Glas der Fenster: Ug-Wert 0,6 W/m² * K
-Haustür ab UD-Wert 0,64 W/m² * K
-30 Jahre Garantie auf statisches Tragwerk
-ausschließlich handgemacht in Deutschland
INDIVIDUELLE ARCHITEKTUR
-persönliche Architekten-Planung
-individuelle Grundrissgestaltung ohne Mehrpreis
UNSERE BAUWEISE
-mehrschichtiger diffusionsvariabler Wandaufbau bis U-Wert 0,10 W / m² * K - im Gefach (zwischen den Stielen) gemessen
-hochstabile Innenwand und Konstruktion
-Fenster gesamt: Uw-Wert 0,81 W/m² * K
Glas der Fenster: Ug-Wert 0,6 W/m² * K
-Haustür ab UD-Wert 0,64 W/m² * K
-30 Jahre Garantie auf statisches Tragwerk
-ausschließlich handgemacht in Deutschland
Lage des Objektes
Traumhaftes Baugrundstück in Frickingen-Altheim
Zum Verkauf steht ein ruhig gelegenes Grundstück mit 811 m² Fläche in zweiter Reihe zur Hauptstraße. Die Ausrichtung ermöglicht eine nordwestliche Zufahrt sowie einen unverbaubaren Blick nach Südosten auf eine angrenzende, idyllische Wiese.
Das Grundstück ist nach § 34 BauGB bebaubar, ideal für ein Einfamilien- oder Doppelhaus. Alle notwendigen Anschlüsse wie Wasser, Abwasser, Strom und Nahwärme sind bereits vorhanden.
Dank der hervorragenden Lage sind Überlingen und Salem in nur 10 Minuten mit dem Auto erreichbar - perfekt für Pendler und Naturliebhaber. Nutzen Sie diese seltene Gelegenheit!
Zum Verkauf steht ein ruhig gelegenes Grundstück mit 811 m² Fläche in zweiter Reihe zur Hauptstraße. Die Ausrichtung ermöglicht eine nordwestliche Zufahrt sowie einen unverbaubaren Blick nach Südosten auf eine angrenzende, idyllische Wiese.
Das Grundstück ist nach § 34 BauGB bebaubar, ideal für ein Einfamilien- oder Doppelhaus. Alle notwendigen Anschlüsse wie Wasser, Abwasser, Strom und Nahwärme sind bereits vorhanden.
Dank der hervorragenden Lage sind Überlingen und Salem in nur 10 Minuten mit dem Auto erreichbar - perfekt für Pendler und Naturliebhaber. Nutzen Sie diese seltene Gelegenheit!
Anbieter kontaktieren
Kontakt
| Telefon | +49 6551 1200 |
| Mobil | +49 157 70255471 |
| Website | www.streif.de |
