Das eigene Haus bewohnen und zusätzlich Rendite erwirtschaften...
1.990.000 €
Kaufpreis
329 m²
Wohnfläche
10
Zimmer
immobilien.de Nr.: 9360965
Objektnummer: 01KBF4R764BCV0RCMMJJA6BY8Q
Preise & Kosten
| Kaufpreis | 1.990.000 € |
| Nebenkosten | keine Angabe |
| Maklerprovision | 3.57% inkl. 19.00% MwSt. |
Größe & Zustand
| Wohnfläche | 329 m² |
| Gesamtfläche | 913 m² |
| Grundstücksfläche | 913 m² |
| Zimmer | 10 |
| Baujahr | 1973 |
| Verfügbar ab | keine Angabe |
Energie
| Energieausweistyp | Verbrauch |
| Ausstellungsdatum | 23. 02. 2022 |
| Gültig bis | 22/02/2032 |
| Baujahr (laut Energieausweis) | 2003 |
| Energieeffizienzklasse | E |
| Energieverbrauchkennwert | 130.1 kWh/(m²*a) |
| Wesentlicher Energieträger | Heizöl |
Objektbeschreibung
Zum Verkauf steht ein gepflegtes Mehrfamilienhaus, in Unterschleißheim mit insgesamt 3 gut vermieteten Wohneinheiten (4 Einheiten Gesamt!), gelegen im beliebten Ortsteil Lohhof der Stadt Unterschleißheim. Das Haus überzeugt mit einer großzügigen Grundstücksfläche von ca. 913 m², einer durchdachten Aufteilung und einem sehr gepflegten Zustand.
ACHTUNG: Die 3 Zimmer Wohnung im 1.OG wäre frei zum Bezug!
Wohnflächen im Überblick:
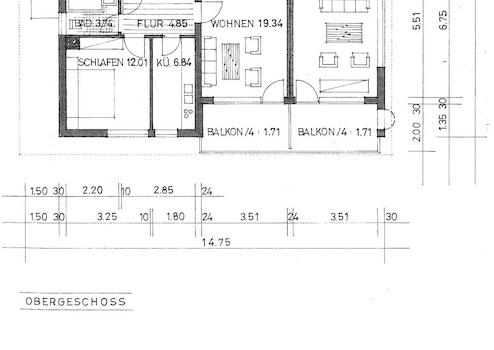
Erdgeschosswohnung: ca. 120,48 m²
Wohnung 1. Obergeschoss links: ca. 71,43 m², verfügbar
Wohnung 1. Obergeschoss rechts: ca. 49,56 m²
Dachgeschosswohnung: ca. 87,35 m² (derzeit noch im Genehmigungsverfahren)
Gesamtwohnfläche: ca. 328,82 m²
Ausstattung & Highlights:
Neue Öl-Zentralheizung (2024) – effizient und modern, ein neuer Energieausweis ist gerade beauftragt!
West- und Nordseite gedämmt – für bessere Energiebilanz
Neue Haustür
Treppenhaus frisch gestrichen (2023)
Elektrische Jalousien in den meisten Wohnungen
Nettomieteinahme-Potenzial 55.800,- € p.a.
Bei den abgebildeten Grafiken handelt es sich teilweise um maßstabsgetreue Beispielbilder die KI generiert wurden, welche Ihnen die Immobilie in neu möbliertem Zustand zeigen sollen.
ACHTUNG: Die 3 Zimmer Wohnung im 1.OG wäre frei zum Bezug!
Wohnflächen im Überblick:
Erdgeschosswohnung: ca. 120,48 m²
Wohnung 1. Obergeschoss links: ca. 71,43 m², verfügbar
Wohnung 1. Obergeschoss rechts: ca. 49,56 m²
Dachgeschosswohnung: ca. 87,35 m² (derzeit noch im Genehmigungsverfahren)
Gesamtwohnfläche: ca. 328,82 m²
Ausstattung & Highlights:
Neue Öl-Zentralheizung (2024) – effizient und modern, ein neuer Energieausweis ist gerade beauftragt!
West- und Nordseite gedämmt – für bessere Energiebilanz
Neue Haustür
Treppenhaus frisch gestrichen (2023)
Elektrische Jalousien in den meisten Wohnungen
Nettomieteinahme-Potenzial 55.800,- € p.a.
Bei den abgebildeten Grafiken handelt es sich teilweise um maßstabsgetreue Beispielbilder die KI generiert wurden, welche Ihnen die Immobilie in neu möbliertem Zustand zeigen sollen.
Ausstattung
| Bad | Dusche, Wanne, Fenster |
| Boden | Parkett, Laminat, Dielen |
| Keller |
Lage des Objektes
Das Mehrfamilienhaus befindet sich in attraktiver Lage im Ortsteil Lohhof der Stadt Unterschleißheim. Die Echingerstraße liegt in einem ruhigen Wohngebiet, das sich durch eine angenehme Nachbarschaft und eine gute Mischung aus Wohnbebauung und Grünflächen auszeichnet.
Trotz der ruhigen Lage überzeugt die Adresse durch eine hervorragende Infrastruktur. Einkaufsmöglichkeiten, Schulen, Kindergärten und medizinische Einrichtungen befinden sich in unmittelbarer Nähe. Auch die Verkehrsanbindung ist optimal: Der S-Bahnhof Lohhof (S1) ist schnell erreichbar, sodass eine direkte Anbindung nach München und zum Flughafen besteht. Die Autobahn A92 und die Bundesstraße B13 sorgen für eine sehr gute Erreichbarkeit mit dem Auto.
Die Lage vereint damit die Vorteile einer ruhigen Wohngegend mit einer ausgezeichneten Anbindung an die Stadt München sowie das Münchner Umland.
Ideal für Familien, Pendler und Kapitalanleger.
Trotz der ruhigen Lage überzeugt die Adresse durch eine hervorragende Infrastruktur. Einkaufsmöglichkeiten, Schulen, Kindergärten und medizinische Einrichtungen befinden sich in unmittelbarer Nähe. Auch die Verkehrsanbindung ist optimal: Der S-Bahnhof Lohhof (S1) ist schnell erreichbar, sodass eine direkte Anbindung nach München und zum Flughafen besteht. Die Autobahn A92 und die Bundesstraße B13 sorgen für eine sehr gute Erreichbarkeit mit dem Auto.
Die Lage vereint damit die Vorteile einer ruhigen Wohngegend mit einer ausgezeichneten Anbindung an die Stadt München sowie das Münchner Umland.
Ideal für Familien, Pendler und Kapitalanleger.
