Leerstehendes, kernsaniertes 2-Familienhaus – Energieeffizienzklasse A
1.390.000 €
Kaufpreis
277 m²
Wohnfläche
10
Zimmer
immobilien.de Nr.: 9356697
Objektnummer: 394554
Dateien
Preise & Kosten
| Kaufpreis | 1.390.000 € |
| Nebenkosten | keine Angabe |
| Maklerprovision | keine Provision, courtagefrei |
Größe & Zustand
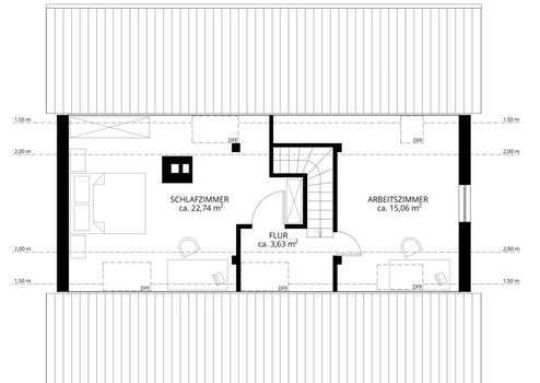
| Wohnfläche | 277 m² |
| Grundstücksfläche | 383 m² |
| Zimmer | 10 |
| Baujahr | 1963 |
| Verfügbar ab | sofort |
| Zustand | Teil Vollsaniert |
Energie
| Energieausweistyp | Bedarfsausweis |
| Energieeffizienzklasse | A |
| Endenergiebedarf | 30 |
| Heizungsart | Fußbodenheizung |
| Energieträger/Befeuerung | Luft-Wärme-Pumpe |
Objektbeschreibung
360°-Rundgang: https://www.ohne-makler.net/panorama/394554/
Dieses hochwertig sanierte Zweifamilienhaus befindet sich "Am Lehel 11" in
82205 Gilching, und wurde ursprünglich im Jahr 1963 erbaut. In den Jahren
2021/2025 wurde die Immobilie einer umfassenden Kernsanierung unterzogen
und energetisch auf den neuesten Stand gebracht. Durch die
Modernisierungsmaßnahmen entspricht das Haus nun einem
Niedrigenergiehaus der Klasse A mit einem Energieverbrauch von lediglich
30,7 kWh/m²a, was zu niedrigen Betriebskosten und einem nachhaltigen
Wohnkonzept beiträgt.
Im Rahmen der Sanierung wurden alle wesentlichen Gebäudekomponenten
erneuert, darunter die Dacheindeckung, die Wärmedämmung und die gesamte
technische Infrastruktur. Eine moderne Luft-Wasser-Wärmepumpe sorgt für
eine effiziente und umweltfreundliche Beheizung, während neue dreifach
verglaste Fenster das Raumklima optimieren und für eine ausgezeichnete
Wärme- und Schalldämmung sorgen. Die Innenräume wurden vollständig
modernisiert, einschließlich neuer Bodenbeläge, Bäder, Elektrik und
Leitungen, sodass die Immobilie heutigen Wohnansprüchen in jeder Hinsicht
gerecht wird. Ergänzend wurde ein Carport mit zwei Stellplätzen errichtet,
der mit integrierten Wallboxen ausgestattet ist und damit optimal für EMobilität vorbereitet wurde. Zwei zusätzliche Schuppen bieten praktischen
Stauraum für Gartengeräte, Fahrräder oder andere Utensilien.
Objektzustand: Erstbezug nach Sanierung
Dieses hochwertig sanierte Zweifamilienhaus befindet sich "Am Lehel 11" in
82205 Gilching, und wurde ursprünglich im Jahr 1963 erbaut. In den Jahren
2021/2025 wurde die Immobilie einer umfassenden Kernsanierung unterzogen
und energetisch auf den neuesten Stand gebracht. Durch die
Modernisierungsmaßnahmen entspricht das Haus nun einem
Niedrigenergiehaus der Klasse A mit einem Energieverbrauch von lediglich
30,7 kWh/m²a, was zu niedrigen Betriebskosten und einem nachhaltigen
Wohnkonzept beiträgt.
Im Rahmen der Sanierung wurden alle wesentlichen Gebäudekomponenten
erneuert, darunter die Dacheindeckung, die Wärmedämmung und die gesamte
technische Infrastruktur. Eine moderne Luft-Wasser-Wärmepumpe sorgt für
eine effiziente und umweltfreundliche Beheizung, während neue dreifach
verglaste Fenster das Raumklima optimieren und für eine ausgezeichnete
Wärme- und Schalldämmung sorgen. Die Innenräume wurden vollständig
modernisiert, einschließlich neuer Bodenbeläge, Bäder, Elektrik und
Leitungen, sodass die Immobilie heutigen Wohnansprüchen in jeder Hinsicht
gerecht wird. Ergänzend wurde ein Carport mit zwei Stellplätzen errichtet,
der mit integrierten Wallboxen ausgestattet ist und damit optimal für EMobilität vorbereitet wurde. Zwei zusätzliche Schuppen bieten praktischen
Stauraum für Gartengeräte, Fahrräder oder andere Utensilien.
Objektzustand: Erstbezug nach Sanierung
Ausstattung
| Anzahl der Etagen im Haus | 4 |
| Küche | Einbauküche |
| Bad | 2 |
| Bad | Dusche, Wanne |
| Boden | Fliesen, Parkett |
| Balkone | 1 |
| Garten | |
| Terrassen | 1 |
| Carport | 2 |
Balkon, Terrasse, Garten, Vollbad, Duschbad, Einbauküche, Gäste-WC, Parkett, Fliesen
Bemerkungen:
Mitverkauft werden 2 Einbauküchen im Wert von zusammen ca. 35.000€ (erworben im Jahr 2021 bei einem ortsansässigen Küchenstudio - Rechnungen vorhanden)
Das Gebäude wurde in den Jahren 2021-2025 umfangreich umgebaut, kernsaniert und energetisch auf den aktuellen Stand gebracht. Durch die energetische Modernisierung erreicht das Gebäude die Energieeffizienzklasse A und einen KfW-Standard 85.
Folgende Modernisierungen wurden durchgeführt:
- Einbau neuer 3-fach verglaster Fenster im integrierten Falzlüftern
- 16cm Fassadendämmung
- Aufdachdämmung inkl. neuer Dachflächenfenster und neuer Dacheindeckung
- neue Elektroverteilung inkl. 2x Wallboxen, SAT Anschluss, Lan-Verkabelung, neuer Klingelanlage, Außenebeleuchtung etc.
- Einbau Fußbodenheizung inkl. neuem Estrich
- neues Heizungssystem: Luft-Wärmepumpe von Tecalor
- Anbau eines Balkons im 1.OG
- Anlegen neuer Aussenanlagen (Terrasse, Carport, Stellplätze, Mülltonnenhäuschen etc.)
- Wände und Decken neu verputzt und gestrichen
- neue Fußbodenbeläge (Parkett und Fliese)
- neue Sanitärinstallationen
- Einbau einer Wasseraufbereitungsanlage (PILA)
Bemerkungen:
Mitverkauft werden 2 Einbauküchen im Wert von zusammen ca. 35.000€ (erworben im Jahr 2021 bei einem ortsansässigen Küchenstudio - Rechnungen vorhanden)
Das Gebäude wurde in den Jahren 2021-2025 umfangreich umgebaut, kernsaniert und energetisch auf den aktuellen Stand gebracht. Durch die energetische Modernisierung erreicht das Gebäude die Energieeffizienzklasse A und einen KfW-Standard 85.
Folgende Modernisierungen wurden durchgeführt:
- Einbau neuer 3-fach verglaster Fenster im integrierten Falzlüftern
- 16cm Fassadendämmung
- Aufdachdämmung inkl. neuer Dachflächenfenster und neuer Dacheindeckung
- neue Elektroverteilung inkl. 2x Wallboxen, SAT Anschluss, Lan-Verkabelung, neuer Klingelanlage, Außenebeleuchtung etc.
- Einbau Fußbodenheizung inkl. neuem Estrich
- neues Heizungssystem: Luft-Wärmepumpe von Tecalor
- Anbau eines Balkons im 1.OG
- Anlegen neuer Aussenanlagen (Terrasse, Carport, Stellplätze, Mülltonnenhäuschen etc.)
- Wände und Decken neu verputzt und gestrichen
- neue Fußbodenbeläge (Parkett und Fliese)
- neue Sanitärinstallationen
- Einbau einer Wasseraufbereitungsanlage (PILA)
Sonstige Informationen
Heizungsart: Fußbodenheizung
Energieträger: Luft-/Wasserwärme
Provisionsfrei, direkt vom Eigentümer.
Besichtigungen jederzeit auf Anfrage möglich.
Aktuell steht Wohnung 1 (Souterrain und Erdgeschoss) leer.
Wohnung 2 (1. Obergeschoss und Dachgeschoss) ist befristet bis zum 31.12.2025 vermietet.
Optional kann der Mietvertrag der Wohnung 2 unbefristet verlängert werden mit einer Staffelmiete und beginnender Kaltmiete von 2.300€ ab 1.1.2026
Bitte geben Sie bei ihrer Anfrage ihre vollständigen Daten (Name, Anschrift, E-Mail und Telefonnummer) an. Vielen Dank!
Makleranfragen nicht erwünscht. Nach § 7 UWG sind unaufgeforderte Kontaktaufnahmen durch Makler ohne ausdrückliche Einwilligung des Empfängers verboten!
ohne-makler (OM) ist weder Anbieter noch Vermittler der Immobilie. OM betreibt eine Plattform für Immobilieneigentümer, die unter anderem die gleichzeitige Veröffentlichung einzelner Inserate auf mehreren Immobilienportalen ermöglicht. Die Inhalte dieser Inserate werden ausschließlich von Dritten verantwortet. Für die Richtigkeit, Vollständigkeit oder Rechtmäßigkeit der Angaben übernimmt OM keine Haftung. Hinweise auf mögliche Rechtsverstöße können jederzeit gemeldet werden und werden nach Prüfung umgehend bearbeitet.
Energieträger: Luft-/Wasserwärme
Provisionsfrei, direkt vom Eigentümer.
Besichtigungen jederzeit auf Anfrage möglich.
Aktuell steht Wohnung 1 (Souterrain und Erdgeschoss) leer.
Wohnung 2 (1. Obergeschoss und Dachgeschoss) ist befristet bis zum 31.12.2025 vermietet.
Optional kann der Mietvertrag der Wohnung 2 unbefristet verlängert werden mit einer Staffelmiete und beginnender Kaltmiete von 2.300€ ab 1.1.2026
Bitte geben Sie bei ihrer Anfrage ihre vollständigen Daten (Name, Anschrift, E-Mail und Telefonnummer) an. Vielen Dank!
Makleranfragen nicht erwünscht. Nach § 7 UWG sind unaufgeforderte Kontaktaufnahmen durch Makler ohne ausdrückliche Einwilligung des Empfängers verboten!
ohne-makler (OM) ist weder Anbieter noch Vermittler der Immobilie. OM betreibt eine Plattform für Immobilieneigentümer, die unter anderem die gleichzeitige Veröffentlichung einzelner Inserate auf mehreren Immobilienportalen ermöglicht. Die Inhalte dieser Inserate werden ausschließlich von Dritten verantwortet. Für die Richtigkeit, Vollständigkeit oder Rechtmäßigkeit der Angaben übernimmt OM keine Haftung. Hinweise auf mögliche Rechtsverstöße können jederzeit gemeldet werden und werden nach Prüfung umgehend bearbeitet.
Lage des Objektes
Die Gemeinde Gilching liegt im Landkreis Starnberg und gehört zu den
gefragtesten Wohnlagen im Münchner Umland. Durch die ausgezeichnete
Infrastruktur und Verkehrsanbindung vereint Gilching die Vorzüge eines
ruhigen Wohnumfelds mit der Nähe zur bayerischen Landeshauptstadt. Die
direkte Anbindung an die Autobahn A96 ermöglicht eine schnelle
Erreichbarkeit Münchens in nur etwa 20 Minuten mit dem Auto. Zusätzlich
bietet die nahe gelegene S-Bahn-Station Gilching-Argelsried eine direkte
Verbindung zur Münchner Innenstadt über die Linie S8.
Die Immobilie befindet sich in der Straße "Am Lehel", einer ruhigen und
familienfreundlichen Wohngegend mit gewachsenem Charakter.
Einkaufsmöglichkeiten, Schulen, Kindergärten und verschiedene
Freizeiteinrichtungen sind in wenigen Minuten erreichbar. Die Nähe zum
idyllischen Fünfseenland mit seinen bekannten Erholungsgebieten, darunter
der Ammersee und der Starnberger See, bietet zudem vielfältige
Möglichkeiten zur Freizeitgestaltung. Wassersport, Wandern oder Radfahren
sind in dieser Region ebenso attraktiv wie die Naherholungsmöglichkeiten in
den zahlreichen Naturschutzgebieten der Umgebung.
Dank der gelungenen Kombination aus hoher Wohnqualität, energieeffizienter
Sanierung und attraktiver Lage stellt diese Immobilie eine hervorragende
Möglichkeit für Familien oder Kapitalanleger dar, die auf der Suche nach
einem modernen, zukunftssicheren Zuhause im Münchner Umland sind.
Infrastruktur (im Umkreis von 5 km):
Apotheke, Lebensmittel-Discount, Allgemeinmediziner, Kindergarten, Grundschule, Hauptschule, Gymnasium, Gesamtschule, Öffentliche Verkehrsmittel
gefragtesten Wohnlagen im Münchner Umland. Durch die ausgezeichnete
Infrastruktur und Verkehrsanbindung vereint Gilching die Vorzüge eines
ruhigen Wohnumfelds mit der Nähe zur bayerischen Landeshauptstadt. Die
direkte Anbindung an die Autobahn A96 ermöglicht eine schnelle
Erreichbarkeit Münchens in nur etwa 20 Minuten mit dem Auto. Zusätzlich
bietet die nahe gelegene S-Bahn-Station Gilching-Argelsried eine direkte
Verbindung zur Münchner Innenstadt über die Linie S8.
Die Immobilie befindet sich in der Straße "Am Lehel", einer ruhigen und
familienfreundlichen Wohngegend mit gewachsenem Charakter.
Einkaufsmöglichkeiten, Schulen, Kindergärten und verschiedene
Freizeiteinrichtungen sind in wenigen Minuten erreichbar. Die Nähe zum
idyllischen Fünfseenland mit seinen bekannten Erholungsgebieten, darunter
der Ammersee und der Starnberger See, bietet zudem vielfältige
Möglichkeiten zur Freizeitgestaltung. Wassersport, Wandern oder Radfahren
sind in dieser Region ebenso attraktiv wie die Naherholungsmöglichkeiten in
den zahlreichen Naturschutzgebieten der Umgebung.
Dank der gelungenen Kombination aus hoher Wohnqualität, energieeffizienter
Sanierung und attraktiver Lage stellt diese Immobilie eine hervorragende
Möglichkeit für Familien oder Kapitalanleger dar, die auf der Suche nach
einem modernen, zukunftssicheren Zuhause im Münchner Umland sind.
Infrastruktur (im Umkreis von 5 km):
Apotheke, Lebensmittel-Discount, Allgemeinmediziner, Kindergarten, Grundschule, Hauptschule, Gymnasium, Gesamtschule, Öffentliche Verkehrsmittel
