Moderne 2-Zimmer-Wohnung mit guter Anbindung in Hannover - Faktor 13,5 Kapitalanlage / Selbstnutzung
168.000 €
Kaufpreis
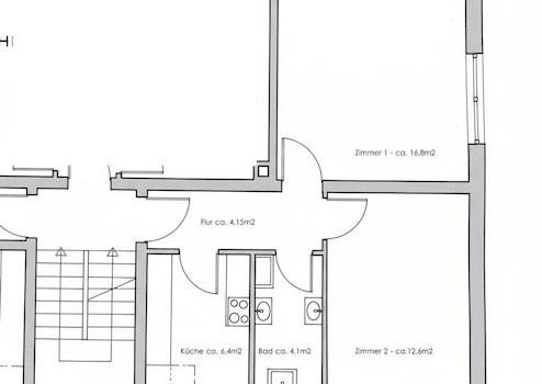
46 m²
Wohnfläche
2
Zimmer
immobilien.de Nr.: 9336716
Objektnummer: 407539
Preise & Kosten
| Kaufpreis | 168.000 € |
| Nebenkosten | keine Angabe |
| Hausgeld | 341 € |
| Maklerprovision | keine Provision, courtagefrei |
Größe & Zustand
| Wohnfläche | 46 m² |
| Zimmer | 2 |
| Baujahr | 1950 |
| Verfügbar ab | nach Absprache |
| Zustand | Gepflegt |
Energie
| Energieausweistyp | Bedarfsausweis |
| Endenergiebedarf | 100 |
| Heizungsart | Zentralheizung |
| Energieträger/Befeuerung | Gas |
Objektbeschreibung
Diese charmante 2-Zimmer-Wohnung in Hannover-Mittelfeld bietet Käufern zwei attraktive Optionen: Sie kann auf Wunsch vom Verkäufer vermietet übergeben werden, sodass sich auf Basis der erzielbaren Miete ein Kaufpreisfaktor von 13,5 ergibt und die Wohnung sich damit als renditestarke Kapitalanlage anbietet. Alternativ kann die Wohnung ohne Mieter, also mietfrei, an Selbstnutzer verkauft werden.
Die Wohnung überzeugt mit einem neu aufgearbeiteten Dielenboden in den Wohnräumen, während Küche und Badezimmer modern gefliest sind. Eine vorhandene Einbauküche ist im Kaufpreis enthalten und erhöht die Attraktivität sowohl für zukünftige Mieter als auch für Eigennutzer.
Für Selbstnutzer entsteht hier ein gemütliches, gepflegtes Zuhause mit klassischem Charme in einer beliebten Wohngegend mit guter Anbindung und gewachsener Infrastruktur.
Für Kapitalanleger ist die Immobilie aufgrund der gefragten Lage, der praktischen Raumaufteilung und des guten Zustands leicht und nachhaltig zu vermieten, wodurch der Investmentaspekt mit dem Faktor 13,5 besonders interessant wird.
Die Nebenkosten inklusive Heizung betragen derzeit 370 € monatlich.
Der Kaufpreis von 168.000€ ist Verhandlungsbasis.
Die Wohnung überzeugt mit einem neu aufgearbeiteten Dielenboden in den Wohnräumen, während Küche und Badezimmer modern gefliest sind. Eine vorhandene Einbauküche ist im Kaufpreis enthalten und erhöht die Attraktivität sowohl für zukünftige Mieter als auch für Eigennutzer.
Für Selbstnutzer entsteht hier ein gemütliches, gepflegtes Zuhause mit klassischem Charme in einer beliebten Wohngegend mit guter Anbindung und gewachsener Infrastruktur.
Für Kapitalanleger ist die Immobilie aufgrund der gefragten Lage, der praktischen Raumaufteilung und des guten Zustands leicht und nachhaltig zu vermieten, wodurch der Investmentaspekt mit dem Faktor 13,5 besonders interessant wird.
Die Nebenkosten inklusive Heizung betragen derzeit 370 € monatlich.
Der Kaufpreis von 168.000€ ist Verhandlungsbasis.
Ausstattung
| Anzahl der Etagen im Haus | 3 |
| Inserat befindet sich im Stockwerk | 1 |
| Küche | Einbauküche |
| Bad | 1 |
| Boden | Fliesen |
| Garten | |
| Keller |
Garten, Keller, Einbauküche, Fliesen, Sonstiges (s. Text)
Sonstige Informationen
Heizungsart: Zentralheizung
Energieträger: Gas
Makleranfragen nicht erwünscht. Nach § 7 UWG sind unaufgeforderte Kontaktaufnahmen durch Makler ohne ausdrückliche Einwilligung des Empfängers verboten!
ohne-makler (OM) ist weder Anbieter noch Vermittler der Immobilie. OM betreibt eine Plattform für Immobilieneigentümer, die unter anderem die gleichzeitige Veröffentlichung einzelner Inserate auf mehreren Immobilienportalen ermöglicht. Die Inhalte dieser Inserate werden ausschließlich von Dritten verantwortet. Für die Richtigkeit, Vollständigkeit oder Rechtmäßigkeit der Angaben übernimmt OM keine Haftung. Hinweise auf mögliche Rechtsverstöße können jederzeit gemeldet werden und werden nach Prüfung umgehend bearbeitet.
Energieträger: Gas
Makleranfragen nicht erwünscht. Nach § 7 UWG sind unaufgeforderte Kontaktaufnahmen durch Makler ohne ausdrückliche Einwilligung des Empfängers verboten!
ohne-makler (OM) ist weder Anbieter noch Vermittler der Immobilie. OM betreibt eine Plattform für Immobilieneigentümer, die unter anderem die gleichzeitige Veröffentlichung einzelner Inserate auf mehreren Immobilienportalen ermöglicht. Die Inhalte dieser Inserate werden ausschließlich von Dritten verantwortet. Für die Richtigkeit, Vollständigkeit oder Rechtmäßigkeit der Angaben übernimmt OM keine Haftung. Hinweise auf mögliche Rechtsverstöße können jederzeit gemeldet werden und werden nach Prüfung umgehend bearbeitet.
Lage des Objektes
Die Lage der 2-Zimmer-Wohnung zeichnet sich durch ihre attraktive Nähe zum Messegelände Hannover im Stadtteil Mittelfeld aus. Dieses Viertel ist gut infrastrukturell erschlossen und bietet eine Verbindung zu den Autobahnen A2 und A7 über den Messeschnellweg, was besonders für Pendler und Geschäftsreisende von Vorteil ist.
Mittelfeld ist ein lebendiger Stadtteil mit vielfältigen Veranstaltungs- und Freizeitangebot. Einkaufsmöglichkeiten, Restaurants, Kindertreffs und soziale Einrichtungen sind fußläufig erreichbar, was den Alltag angenehm gestaltet.
Durch die Nähe zur Messe und der zentralen Lage ist die Wohnung sowohl für Eigennutzer als komfortables Zuhause in Stadtnähe als auch für Anleger interessant, da die Nachfrage nach Mietwohnungen in der Region beständig ist.
Diese Kombination aus urbaner Infrastruktur, guter Verkehrsanbindung und vielfältigem Freizeitangebot macht die Wohnung zu einer begehrten Anlage in Hannover.
Infrastruktur (im Umkreis von 5 km):
Apotheke, Lebensmittel-Discount, Allgemeinmediziner, Kindergarten, Grundschule, Hauptschule, Realschule, Gymnasium, Gesamtschule, Öffentliche Verkehrsmittel
Mittelfeld ist ein lebendiger Stadtteil mit vielfältigen Veranstaltungs- und Freizeitangebot. Einkaufsmöglichkeiten, Restaurants, Kindertreffs und soziale Einrichtungen sind fußläufig erreichbar, was den Alltag angenehm gestaltet.
Durch die Nähe zur Messe und der zentralen Lage ist die Wohnung sowohl für Eigennutzer als komfortables Zuhause in Stadtnähe als auch für Anleger interessant, da die Nachfrage nach Mietwohnungen in der Region beständig ist.
Diese Kombination aus urbaner Infrastruktur, guter Verkehrsanbindung und vielfältigem Freizeitangebot macht die Wohnung zu einer begehrten Anlage in Hannover.
Infrastruktur (im Umkreis von 5 km):
Apotheke, Lebensmittel-Discount, Allgemeinmediziner, Kindergarten, Grundschule, Hauptschule, Realschule, Gymnasium, Gesamtschule, Öffentliche Verkehrsmittel
