Einziehen und wohlfühlen: Modernes Reihenmittelhaus mit vielen Schlafzimmern und schönem Garten
269.000 €
Kaufpreis
100 m²
Wohnfläche
5
Zimmer
immobilien.de Nr.: 9324216
Objektnummer: 393083
Preise & Kosten
| Kaufpreis | 269.000 € |
| Nebenkosten | keine Angabe |
| Maklerprovision | keine Provision, courtagefrei |
Größe & Zustand
| Wohnfläche | 100 m² |
| Grundstücksfläche | 121 m² |
| Zimmer | 5 |
| Baujahr | 1931 |
| Verfügbar ab | nach Absprache |
| Zustand | Modernisiert |
Energie
| Heizungsart | Zentralheizung |
| Energieträger/Befeuerung | Gas |
Objektbeschreibung
Diese charmante Immobilie bietet mit einer Wohnfläche von ca. 96 m² und einer gesamten Nutzfläche von rund 158,46 m² großzügigen Raum für die ganze Familie. Auf einem Grundstück von ca. 121 m² gelegen, überzeugt das Haus durch eine gelungene Raumaufteilung, moderne Ausstattung und einen sehr gepflegten Zustand.
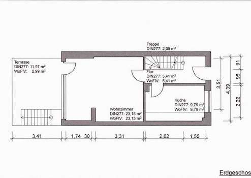
Im Erdgeschoss erwartet Sie ein lichtdurchflutetes Wohn- und Esszimmer mit direktem Zugang zum Garten. Die große Terrasse lädt hier zu entspannten Stunden im Freien ein. Die offene, moderne Küche fügt sich harmonisch in den Wohnbereich ein und schafft ein einladendes Ambiente.
Das Obergeschoss verfügt über zwei Schlafzimmer, von denen eines Zugang zu einem Balkon bietet. Ergänzt wird diese Etage durch ein Tageslichtbadezimmer mit Dusche, WC und Waschtisch. Im Dachgeschoss stehen Ihnen zwei weitere vollwertige Schlafzimmer zur Verfügung, sodass insgesamt vier Schlafzimmer gegeben sind – ideal für Familien oder als Arbeits- und Gästezimmer.
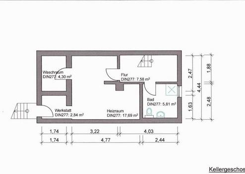
Das Kellergeschoss rundet das Raumangebot ab: Hier befindet sich ein weiteres, sehr großzügiges Badezimmer mit Dusche, Badewanne, WC und Waschtisch, das erst im Jahr 2023 vollständig saniert wurde.
Der Garten ist pflegeleicht angelegt und bietet neben der Terrasse auch einen praktischen Geräteschuppen, der Platz für Mülltonnen und Gartengeräte bereithält.
Das Haus wurde im letzten Jahr umfassend modernisiert und präsentiert sich in einem sehr guten Zustand. Ein Einzug ist somit ohne große Sanierungsarbeiten problemlos möglich.
Im Erdgeschoss erwartet Sie ein lichtdurchflutetes Wohn- und Esszimmer mit direktem Zugang zum Garten. Die große Terrasse lädt hier zu entspannten Stunden im Freien ein. Die offene, moderne Küche fügt sich harmonisch in den Wohnbereich ein und schafft ein einladendes Ambiente.
Das Obergeschoss verfügt über zwei Schlafzimmer, von denen eines Zugang zu einem Balkon bietet. Ergänzt wird diese Etage durch ein Tageslichtbadezimmer mit Dusche, WC und Waschtisch. Im Dachgeschoss stehen Ihnen zwei weitere vollwertige Schlafzimmer zur Verfügung, sodass insgesamt vier Schlafzimmer gegeben sind – ideal für Familien oder als Arbeits- und Gästezimmer.
Das Kellergeschoss rundet das Raumangebot ab: Hier befindet sich ein weiteres, sehr großzügiges Badezimmer mit Dusche, Badewanne, WC und Waschtisch, das erst im Jahr 2023 vollständig saniert wurde.
Der Garten ist pflegeleicht angelegt und bietet neben der Terrasse auch einen praktischen Geräteschuppen, der Platz für Mülltonnen und Gartengeräte bereithält.
Das Haus wurde im letzten Jahr umfassend modernisiert und präsentiert sich in einem sehr guten Zustand. Ein Einzug ist somit ohne große Sanierungsarbeiten problemlos möglich.
Ausstattung
| Anzahl der Etagen im Haus | 3 |
| Küche | Einbauküche |
| Bad | 2 |
| Bad | Dusche |
| Boden | Fliesen, Laminat |
| Balkone | 1 |
| Garten | |
| Terrassen | 1 |
| Keller |
Balkon, Terrasse, Garten, Keller, Duschbad, Einbauküche, Laminat, Fliesen
Sonstige Informationen
Heizungsart: Zentralheizung
Energieträger: Gas
Energieausweis nicht vorhanden
Makleranfragen nicht erwünscht. Nach § 7 UWG sind unaufgeforderte Kontaktaufnahmen durch Makler ohne ausdrückliche Einwilligung des Empfängers verboten!
ohne-makler (OM) ist weder Anbieter noch Vermittler der Immobilie. OM betreibt eine Plattform für Immobilieneigentümer, die unter anderem die gleichzeitige Veröffentlichung einzelner Inserate auf mehreren Immobilienportalen ermöglicht. Die Inhalte dieser Inserate werden ausschließlich von Dritten verantwortet. Für die Richtigkeit, Vollständigkeit oder Rechtmäßigkeit der Angaben übernimmt OM keine Haftung. Hinweise auf mögliche Rechtsverstöße können jederzeit gemeldet werden und werden nach Prüfung umgehend bearbeitet.
Energieträger: Gas
Energieausweis nicht vorhanden
Makleranfragen nicht erwünscht. Nach § 7 UWG sind unaufgeforderte Kontaktaufnahmen durch Makler ohne ausdrückliche Einwilligung des Empfängers verboten!
ohne-makler (OM) ist weder Anbieter noch Vermittler der Immobilie. OM betreibt eine Plattform für Immobilieneigentümer, die unter anderem die gleichzeitige Veröffentlichung einzelner Inserate auf mehreren Immobilienportalen ermöglicht. Die Inhalte dieser Inserate werden ausschließlich von Dritten verantwortet. Für die Richtigkeit, Vollständigkeit oder Rechtmäßigkeit der Angaben übernimmt OM keine Haftung. Hinweise auf mögliche Rechtsverstöße können jederzeit gemeldet werden und werden nach Prüfung umgehend bearbeitet.
Lage des Objektes
Die Immobilie befindet sich in ruhiger Lage von Duisburg-Hochheide mit guter Infrastruktur. Einkaufsmöglichkeiten, Schulen und Kindergärten sind in wenigen Minuten erreichbar. Der nahegelegene Üttelsheimer See lädt zu Spaziergängen, Radtouren und Erholung im Grünen ein. Dank der schnellen Anbindung an die A40 und A42 sind auch die Duisburger Innenstadt sowie die umliegenden Städte bequem erreichbar. Öffentliche Verkehrsmittel befinden sich ebenfalls in unmittelbarer Nähe.
Infrastruktur (im Umkreis von 5 km):
Apotheke, Lebensmittel-Discount, Allgemeinmediziner, Kindergarten, Grundschule, Realschule, Gymnasium, Gesamtschule, Öffentliche Verkehrsmittel
Infrastruktur (im Umkreis von 5 km):
Apotheke, Lebensmittel-Discount, Allgemeinmediziner, Kindergarten, Grundschule, Realschule, Gymnasium, Gesamtschule, Öffentliche Verkehrsmittel
