Wohnen auf einer Ebene in ruhiger Sackgasse !
493.900 €
Kaufpreis
113 m²
Wohnfläche
5
Zimmer
immobilien.de Nr.: 9246359
Objektnummer: 251090A020-250914
Preise & Kosten
| Kaufpreis | 493.900 € |
| Nebenkosten | keine Angabe |
| Stellplatz Garage Kaufpreis | 9.000 € |
Größe & Zustand
| Wohnfläche | 113 m² |
| Grundstücksfläche | 610 m² |
| Zimmer | 5 |
| Baujahr | 2026 |
| Verfügbar ab | nach Vereinbarung |
| Zustand | Erstbezug |
Energie
| Energieausweistyp | Verbrauch |
| Baujahr (laut Energieausweis) | 2026 |
| Energieeffizienzklasse | A+ |
| Energietyp | Niedrigenergie, Neubaustandard, KfW-40 |
| Energieverbrauchkennwert | 33.00 kWh/(m²*a) |
| Heizungsart | Zentralheizung |
| Wesentlicher Energieträger | Strom |
| Energieträger/Befeuerung | Luft-Wärme-Pumpe |
Objektbeschreibung
Wohnen auf einer Ebene !
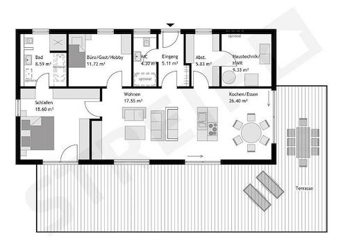
Der Bungalow zeichnet sich durch eine klassische Hausarchitektur mit Walmdach aus. Die Räume sind lichterfüllt geplant. Die Grundrissgestaltung ist für Singles, Paare oder eine Kleinfamilie mit einem Kind perfekt geeignet. Bauartbedingt bringt der Bungalow einen Mehrwert in Sachen Wohnkomfort mit. Der Wohn-/Ess- und Kochbereich ist auf 38,42 m² großzügig angelegt. Ein großes Schlafzimmer mit viel Platz, ein weiterer Raum, der als Kinderzimmer/Büro oder Hobby-/Gästebereich vorgesehen ist, ein Gäste-WC sowie ein Haustechnik-/Hauswirtschaftsraum runden das Raumangebot ab. Eine Garage kann optional ausgeführt werden.
Objektart: Bungalow, 1-geschossig
Hausmaße: 11,83 m x 9,33 m
Der Bungalow zeichnet sich durch eine klassische Hausarchitektur mit Walmdach aus. Die Räume sind lichterfüllt geplant. Die Grundrissgestaltung ist für Singles, Paare oder eine Kleinfamilie mit einem Kind perfekt geeignet. Bauartbedingt bringt der Bungalow einen Mehrwert in Sachen Wohnkomfort mit. Der Wohn-/Ess- und Kochbereich ist auf 38,42 m² großzügig angelegt. Ein großes Schlafzimmer mit viel Platz, ein weiterer Raum, der als Kinderzimmer/Büro oder Hobby-/Gästebereich vorgesehen ist, ein Gäste-WC sowie ein Haustechnik-/Hauswirtschaftsraum runden das Raumangebot ab. Eine Garage kann optional ausgeführt werden.
Objektart: Bungalow, 1-geschossig
Hausmaße: 11,83 m x 9,33 m
Ausstattung
| Anzahl der Etagen im Haus | 1 |
| Küche | Offene Küche |
| Bad | 1 |
| Bad | Dusche, Wanne, Fenster |
| Boden | Fliesen, Stein, Teppich, Parkett, Fertigparkett, Laminat, Kunststoff, Linoleum, Marmor, Granit |
| Terrassen | 1 |
| Barrierefrei | |
| Garage/Stellplätze | 1 |
STREIF-Energiesparhäuser sind für die Effizienzhaus-Klasse 40* vorbereitet. (*In Abhängigkeit von Gebäudestandort, Gebäudeausrichtung, Fensterflächenanteilen, Haustechnik, örtlich geltenden baulichen Vorschriften usw. können zusätzlich oder abweichende Leistungen bzw. die Anpassung der Grundrisse erforderlich werden, die im Zuge der Bauantragsbewertung/-erstellung bewerten werden.) Alle Angaben sind Circa-Werte.
Eine Zertifizierung in der Nachhaltigkeitsklasse ist ab der Premiumline möglich, die im Standard für die Effizienzhaus-Klasse 40 ausgestattet ist. Hierfür können wir eine Ökobilanz (bei Ausbaustufe fastfertig+ und schlüsselfertig) erstellen, die bescheinigt, dass Ihr STREIF-Haus den Richtlinien in der Stufe KFWG für den Klimafreundlichen Neubau (KFN) entspricht. Auf Wunsch kann ergänzend auch eine Nachhaltigkeitszertifizierung nach QNG in der Stufe KFWG-Q (ebenfalls bei Ausbaustufe fastfertig+ und schlüsselfertig) geprüft und angeboten werden. Für das Erfüllen der Voraussetzungen ist eine Photovoltaik-Anlage mit Batteriespeicher erforderlich.
Die STREIF-Passiv-Außenwand und eine sparsame Heiztechnik mit integrierter Wohnraumlüftung und Wärmerückgewinnung garantieren eine geringen Energieverbrauch und ein fantastisches Raumklima, das insbesondere Allergiker aufatmen lässt.
Folgende STREIF-Leistungen sind bei den Hauspreisen für die exklusiven STREIF-Villen bei Ausbaustufe fastfertig+ in der Ausstattungslinie Premiumline enthalten:
Inklusive gedämmte Fundamentplatte
Inklusive STREIF-Luft-Luft-Wärmepumpen-Technologie, mit integrierter Lüftungsanlage mit Wärmerückgewinnung
Inklusive Holzhaustür von KERA-Tür
Inklusive Fenster von Porta/Kömmerling
Inklusive Treppe aus eigener Produktion
Inklusive Sanitärobjekten von Markenherstellern in Bad/WC
Inklusive Elektroinstallation u.v.m.
Inklusive Vorbereitung zur Installation einer Photovoltaik-Anlage
Individuelle Grundrissgestaltung und Raumaufteilung möglich
Die hohe Wertigkeit und Langlebigkeit eines STREIF-Energiespar-Hauses wird durch zahlreiche Auszeichnungen, Qualitäts- und Gütesiegel unabhängiger Institute und Verbände dokumentiert.
Bilder können evtl. Anbauteile, Carports, Balkone, Gauben usw. zeigen, die nicht im Angebotspreis enthalten sind. Änderungen und Irrtümer vorbehalten.
Eine Zertifizierung in der Nachhaltigkeitsklasse ist ab der Premiumline möglich, die im Standard für die Effizienzhaus-Klasse 40 ausgestattet ist. Hierfür können wir eine Ökobilanz (bei Ausbaustufe fastfertig+ und schlüsselfertig) erstellen, die bescheinigt, dass Ihr STREIF-Haus den Richtlinien in der Stufe KFWG für den Klimafreundlichen Neubau (KFN) entspricht. Auf Wunsch kann ergänzend auch eine Nachhaltigkeitszertifizierung nach QNG in der Stufe KFWG-Q (ebenfalls bei Ausbaustufe fastfertig+ und schlüsselfertig) geprüft und angeboten werden. Für das Erfüllen der Voraussetzungen ist eine Photovoltaik-Anlage mit Batteriespeicher erforderlich.
Die STREIF-Passiv-Außenwand und eine sparsame Heiztechnik mit integrierter Wohnraumlüftung und Wärmerückgewinnung garantieren eine geringen Energieverbrauch und ein fantastisches Raumklima, das insbesondere Allergiker aufatmen lässt.
Folgende STREIF-Leistungen sind bei den Hauspreisen für die exklusiven STREIF-Villen bei Ausbaustufe fastfertig+ in der Ausstattungslinie Premiumline enthalten:
Inklusive gedämmte Fundamentplatte
Inklusive STREIF-Luft-Luft-Wärmepumpen-Technologie, mit integrierter Lüftungsanlage mit Wärmerückgewinnung
Inklusive Holzhaustür von KERA-Tür
Inklusive Fenster von Porta/Kömmerling
Inklusive Treppe aus eigener Produktion
Inklusive Sanitärobjekten von Markenherstellern in Bad/WC
Inklusive Elektroinstallation u.v.m.
Inklusive Vorbereitung zur Installation einer Photovoltaik-Anlage
Individuelle Grundrissgestaltung und Raumaufteilung möglich
Die hohe Wertigkeit und Langlebigkeit eines STREIF-Energiespar-Hauses wird durch zahlreiche Auszeichnungen, Qualitäts- und Gütesiegel unabhängiger Institute und Verbände dokumentiert.
Bilder können evtl. Anbauteile, Carports, Balkone, Gauben usw. zeigen, die nicht im Angebotspreis enthalten sind. Änderungen und Irrtümer vorbehalten.
Sonstige Informationen
Bei Ihrem Besuch in unserem Ausstattungszentrum geht es um die Umsetzung Ihrer Wünsche bezüglich der technischen Ausstattung für Ihr neues Zuhause. Ihr persönlicher Ausstattungsberater empfängt Sie gut vorbereitet, denn er ist bestens mit Ihrem Bauvorhaben vertraut und kennt bereits die Punkte, die es noch festzulegen gilt. Dabei wird die Grundrissplanung des Architekten auf einem im Schreibtisch integrierten, überdimensionalen Tablet dargestellt. Diese moderne Technik erlaubt es Ihnen und ihrem Berater, mit Finger oder Stift mögliche Änderungen und Ergänzungen interaktiv direkt im Plan zu notieren.
Beim Rundgang durch die rund 800 m² große Ausstellung klären sie mit ihrem Ausstattungsberater gemeinsam die Details zur technischen Ausstattung und zum äußeren Erscheinungsbild Ihres Hauses. Sie entscheiden über die optische Gestaltung von Fassade, Dach, Fenster, Haustür, Innentüren und klären die Details zur Haustechnik.
STREIF Haus GmbH Thomas Heitz Lortzingstr. 12 66111 Saarbrücken 0160 7038141 thomas.heitz@streif.de
Beim Rundgang durch die rund 800 m² große Ausstellung klären sie mit ihrem Ausstattungsberater gemeinsam die Details zur technischen Ausstattung und zum äußeren Erscheinungsbild Ihres Hauses. Sie entscheiden über die optische Gestaltung von Fassade, Dach, Fenster, Haustür, Innentüren und klären die Details zur Haustechnik.
STREIF Haus GmbH Thomas Heitz Lortzingstr. 12 66111 Saarbrücken 0160 7038141 thomas.heitz@streif.de
Lage des Objektes
Das Grundstück liegt in einer ruhigen Sackgasse von Ludwigsthal.
Das Haus ist auf einem realen Baugrundstück geplant oder auf einem Grundstück in einer Planungsphase. Das Grundstück erwerben Sie direkt vom Eigentümer. Der Preis des Grundstücks ist im Angebotspreis bereits eingerechnet.
Bitte haben Sie Verständnis dafür, dass wir ohne ein persönliches Gespräch keine Grundstücksdaten weiterleiten können.
Gern sind wir bei der Wahl Ihres Traumgrundstückes behilflich!
Natürlich können wir ihren Haustraum auch auf einem anderen Grundstück realisieren, lassen Sie sich dazu in einem unverbindlichen Gespräch zu Ihrem Bauvorhaben beraten.
Thomas Heitz 0160/7038141 oder thomas.heitz@streif.de
Das Haus ist auf einem realen Baugrundstück geplant oder auf einem Grundstück in einer Planungsphase. Das Grundstück erwerben Sie direkt vom Eigentümer. Der Preis des Grundstücks ist im Angebotspreis bereits eingerechnet.
Bitte haben Sie Verständnis dafür, dass wir ohne ein persönliches Gespräch keine Grundstücksdaten weiterleiten können.
Gern sind wir bei der Wahl Ihres Traumgrundstückes behilflich!
Natürlich können wir ihren Haustraum auch auf einem anderen Grundstück realisieren, lassen Sie sich dazu in einem unverbindlichen Gespräch zu Ihrem Bauvorhaben beraten.
Thomas Heitz 0160/7038141 oder thomas.heitz@streif.de
Anbieter kontaktieren
Kontakt
| Telefon | +49 681 70947955 |
| Mobil | +49 160 7038141 |
| Website | www.streif.de |
