Exposé
Objektart:
Büro / Praxen
» Buerozentrum
» Miete
Standort: Büro / Praxen »
Deutschland » Nordrhein-Westfalen » Düsseldorf, Stadt (Kreis) » Düsseldorf / Heerdt
Prinzenpark
Aussenansicht
Angeboten von:
Selektive Immobilien Service GmbH
Unterwallstr. 12
47441 Moers
Deutschland
Telefon:02841/889960
Fax:02841/8899610
www.selektive.de
Ansprechpartner/in
Selektive Immobilien Service GmbH
Herr Alexander Lindenmann MSc. Business&Management Geschäftsführer
| Telefon: | 02841 88996-15 |
| Mobil | 015144006691 |
| Fax: | 02841 88996-10 |
Das Wichtigste auf einen Blick:
| Objektnummer: | 6726001 |
Preise
| Nebenkosten | keine Angabe |
| Mietpreis pro m² | 14,5 € |
| Kaution | 3 Bruttomonatsmieten |
Flächen
| Gesamtfläche | 1.117 m² |
| Bürofläche | 1.117 m² |
| Fläche teilbar ab | 501 m² |
Objekt Adresse
40549 Düsseldorf / Heerdt
Sonstige Angaben
| Baujahr | 2001 |
| Verfügbar ab | keine Angabe |
| Fahrstuhl | Ja |
| Barrierefrei | |
| Energieausweistyp | Verbrauch |
| Gültig bis | 2019-07-06 |
| Heizungsart | Zentralheizung |
| Energieträger/Befeuerung | Gas |
Objektbeschreibung
Der „Prinzenpark“ setzt sich aus mehreren Bauabschnitten und Gebäudeteilen zusammen, die in den Jahren 1998 - 2011 errichtet wurden. Diese können teilweise miteinander verbunden werden, so dass flexible Büroeinheiten von ca. 150 m² - 2.000 m² auf einer Ebene dargestellt werden können. Die Eingangsbereiche sind großzügig und repräsentativ gestaltet. Die einzelnen Etagen sind problemlos über groß dimensionierte Personenaufzüge erreichbar.
Ausstattung
- unterstützende Kühlung
- außenliegender, elektrischer Sonnenschutz
- öffenbare Fenster
- Doppel-/Hohlraumboden
- Personenaufzug
- Kantine
- außenliegender, elektrischer Sonnenschutz
- öffenbare Fenster
- Doppel-/Hohlraumboden
- Personenaufzug
- Kantine
Lage des Objektes
Der Teilmarkt "Linksrheinisch/Seestern" zeichnet sich insbesondere durch sein internationales Mieterumfeld aus und überzeugt durch seine gute Anbindung an die Autobahnen A52 und A57 sowie an den ÖPNV. Die Tatsache, dass zahlreiche Großunternehmen sich für diesen Standort entschieden haben, spricht für eine gute Infrastruktur und ein attraktives Preis-/ Leistungsverhältniss. Aufgrund der Internationalität des Seesterns haben sich zudem zahlreiche renommierte Business-Hotels dort angesiedelt.
Bedeutende Unternehmen in dem Büroteilmarkt: Vodafone, Telekom, AXA, Deutsche Apotheker- und Ärztebank eG
Bedeutende Unternehmen in dem Büroteilmarkt: Vodafone, Telekom, AXA, Deutsche Apotheker- und Ärztebank eG
Sonstige Informationen
Selektive - Ihr Mehrwertmakler
Als besonderen Service bieten wir für Kaufinteressenten individuelle und unabhängige Finanzierungsberatungen an. Aus einer Vielzahl von Kreditgebern suchen wir für Sie das günstigste Angebot heraus und stellen Ihnen ein persönliches Konzept zusammen. Unsere Beratung ist für Sie selbstverständlich gebührenfrei.
Sie sind bereits Eigentümer einer Immobilie? Wir beraten Sie gerne und unverbindlich über Ihre Möglichkeiten. Ein Immobilienwertgutachten nach § 194 BauGB kann für Sie von unserem zertifizierten Gutachter erstellt werden. Besuchen Sie unsere Homepage www.selektive.de oder wenden Sie sich gleich an Ihren Immobilienprofi unter der Tel. 02841 88 99 60.
Als erstes etabliertes Maklerbüro am Niederrhein konnten wir den Qualitätsnachweis für IVD- Immobilienmakler und Hausverwalter die Verbandszertifizierung in Anlehnung an die DIN ISO 9000 ff erlangen. Seit 1994 sind wir Ihr verantwortungsbewusster Partner in Immobilienfragen.
Alle Angaben zum Objekt erfolgen im Namen unseres Auftraggebers und dienen einer ersten Information. Für die Richtigkeit und Vollständigkeit wird keine Haftung übernommen.
Konferenzraum (2)
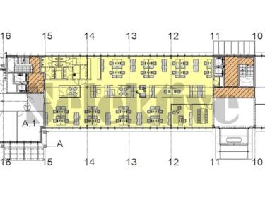
Grundriss 1. OG, Willstätter Strasse 60-62
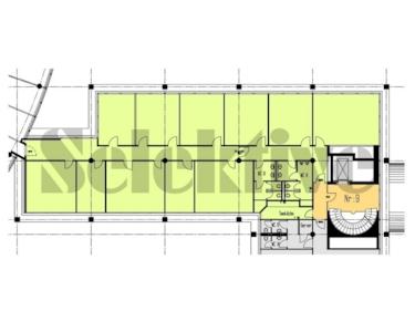
Grundriss 2. OG, Prinzenallee 9
Grundriss 2. OG rechts, Prinzenallee 9