Exposé
Objektart:
Hallen / Lager / Produktion
» Halle
» Miete
Standort: Hallen / Lager / Produktion »
Deutschland » Sachsen » Meißen (Kreis) » Coswig
Von Produktion bis Logistik- in der ehemaligen Tapetenfabrik!
Objektansicht Verwaltungsgebäude
Das Wichtigste auf einen Blick:
| Objektnummer: | 6614891 |
Preise
| Miete für das Objekt | Auf Anfrage |
| Nebenkosten | 0,85 € |
| Mietpreis pro m² | 3 € |
Flächen
| Gesamtfläche | 2.408 m² |
| Bürofläche | 1.231 m² |
| Fläche teilbar ab | 700 m² |
Objekt Adresse
01640 Coswig
Sonstige Angaben
| Verfügbar ab | nach Vereinbarung |
| Boden | Estrich |
| Fahrstuhl | Ja |
Objektbeschreibung
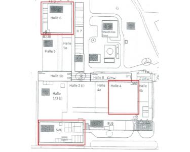
Die ehemalige Tapetenfabrik Coswig bietet auf insgesamt 19.800 m² verschiedene Gewerbe- und Büroeinheiten.
Es werden ca. 1.177 m² Produktions- und Lagerfläche angeboten. Diese teilt sich wie folgt auf und kann auch einzeln angemietet werden:
- Halle 4: ca. 700 m²
- Halle 6: ca. 477 m²
Zusätzlich steht ein angrenzendes Bürogebäude mit ca. 1.231 m² zur Anmietung zur Verfügung.
Die einzelnen Objekte können individuell genutzt und nach Absprache mit dem Vermieter um- und neugebaut werden.
Es werden ca. 1.177 m² Produktions- und Lagerfläche angeboten. Diese teilt sich wie folgt auf und kann auch einzeln angemietet werden:
- Halle 4: ca. 700 m²
- Halle 6: ca. 477 m²
Zusätzlich steht ein angrenzendes Bürogebäude mit ca. 1.231 m² zur Anmietung zur Verfügung.
Die einzelnen Objekte können individuell genutzt und nach Absprache mit dem Vermieter um- und neugebaut werden.
Ausstattung
- ebenerdig
- Rolltor
- Deckenhöhe von 4,75 m bis 6,50 m
- Stromanschluss 800 kVA
- LKW-Zufahrt
- Bodenbelag: Beton
- Lastenaufzug: 2 t
- Bodenbelastung: 2 t/ m²
- sanitäre Anlagen
- Gas-Heizung
- 50 Stellplätze
- Rolltor
- Deckenhöhe von 4,75 m bis 6,50 m
- Stromanschluss 800 kVA
- LKW-Zufahrt
- Bodenbelag: Beton
- Lastenaufzug: 2 t
- Bodenbelastung: 2 t/ m²
- sanitäre Anlagen
- Gas-Heizung
- 50 Stellplätze
Lage des Objektes
Coswig liegt rechtselbisch zwischen der Landeshauptstadt Dresden und der Kreisstadt Meißen. Mehrere Gewerbegebiete mit einem breiten Branchenmix, eine gute Infrastruktur und hochwertige Wohnqualität zeichnet die junge Stadt am grünen Rande Dresdens aus.
Coswig erreichen Sie über die Bundesstraßen B 6 und B 101. In 20 Autofahrminuten sind Sie in Dresden bzw. in zehn Minuten in Meißen. Weiterhin halten am Bahnhof Coswig die Züge des Regionalverkehrs (Meißen – Dresden – Schöna) und der Deutschen Bahn.
Coswig erreichen Sie über die Bundesstraßen B 6 und B 101. In 20 Autofahrminuten sind Sie in Dresden bzw. in zehn Minuten in Meißen. Weiterhin halten am Bahnhof Coswig die Züge des Regionalverkehrs (Meißen – Dresden – Schöna) und der Deutschen Bahn.
Sonstige Informationen
Wir freuen uns auf Ihren Anruf!
Ihr Ansprechpartner: Philipp Hennig
Beate Protze Immobilien GmbH
Hüblerstraße 1
01309 Dresden
Tel.: 0351 43612 30
Fax: 0351 43612 40
info@beate-protze-immobilien.de
www.beate-protze-immobilien.de
Gern offerieren wir Ihnen weitere Gewerbeflächen im gesamten Stadtgebiet von Dresden. Lassen Sie sich von unserem Rund-um-Service überzeugen. Rufen Sie uns einfach an.
Energieeinsparverordnung:
kein Energieausweis vorhanden
Einfahrt
Objektansicht
Beispielinnenansicht Halle 4
Übersichtsplan