Exposé
Objektart:
Haus
» Bungalow
» Kauf
Standort: Haus »
Deutschland » Niedersachsen » Harburg (Kreis) » Handeloh / Höckel
Charmanter Bungalow in idyllischer Lage von Handeloh/ Höckel
Kagebau_Bungalow_Ansicht_B-110-02
Das Wichtigste auf einen Blick:
| Objektnummer: | 9460110 |
Preise
| Kaufpreis | 561.570 € |
| Nebenkosten | keine Angabe |
Flächen
| Wohnfläche | 94,13 m² |
| Nutzfläche | 6,6 m² |
| Grundstücksfläche | 3.039 m² |
| Maklerprovision | 3,57% vom Kaufpreis inkl. MwSt. vom Grundstückspreis (9.996,00€) |
Objekt Adresse
21256 Handeloh / Höckel
Sonstige Angaben
| Baujahr | 2025 |
| Zimmer | 3 |
| Verfügbar ab | keine Angabe |
| Bad | 1 |
| Küche | Offene Küche |
| Bad | 1 |
| Energieausweistyp | Verbrauch |
| Baujahr (laut Energieausweis) | 2025 |
| Energieeffizienzklasse | A |
| Wesentlicher Energieträger | Luftwp |
| Energieträger/Befeuerung | Luft-Wärme-Pumpe |
Beschreibung der Immobilie
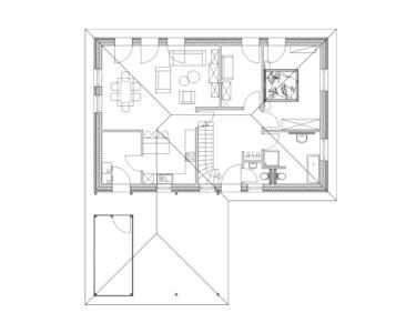
Der Grundriss liefert viele Möglichkeiten sich heimisch zu fühlen. Sollte sich noch zusätzlicher Raumbedarf ergeben, so besteht die Möglichkeit, den Dachboden auszubauen. Um mit dem Auto direkt an das Haus heranfahren zu können, planen und bauen wir Ihnen gern ein Carport mit Abstellraum, das sich harmonisch in das Gesamtbild integriert.
Rahmendaten:
A...
Weitere Informationen zu dieser Immobilie entnehmen Sie bitte dem Exposé auf unserer Webseite unter: www.maison-immobilien.de
Auf Ihre Kontaktaufnahme freuen wir uns.
Ausstattung
Baugrundstück, Neubau, Doppelhaus, Bungalow, Waldgrundstück
Lage & Infrastruktur
Höckel
Fußläufig: Bushaltestelle, Wald und Heide
In der Nähe: Bäcker, Ärzte, Apotheken, Tankstelle, weitere Einkaufsmöglichkeiten
In der Nähe: Buchholzer Stadtzentrum, Schneverdingen und Tostedt
Infrastruktur: Anbindung B3/ B75, Autobahnanschluss A1 und A7 Dibbersen, Metronom nach Bremen und Hamburg, Busverkehr im Halbstundentakt.
Fußläufig: Bushaltestelle, Wald und Heide
In der Nähe: Bäcker, Ärzte, Apotheken, Tankstelle, weitere Einkaufsmöglichkeiten
In der Nähe: Buchholzer Stadtzentrum, Schneverdingen und Tostedt
Infrastruktur: Anbindung B3/ B75, Autobahnanschluss A1 und A7 Dibbersen, Metronom nach Bremen und Hamburg, Busverkehr im Halbstundentakt.
Sonstige Informationen
Es liegt ein Energieverbrauchsausweis vor.
Endenergieverbrauch beträgt kwh/(m²*a).
Wesentlicher Energieträger der Heizung ist Luft/wasser Wärmepumpe.
Das Baujahr des Objekts lt. Energieausweis ist 2025.
Die Energieeffizienzklasse ist A.
Sie möchten Ihre jetzige Immobilie verkaufen oder vermieten?
maison Immobilien hat Erfahrungen aus über 1.300 erfolgreichen Immobilientransaktionen. Nutzen Sie unser Know How und unser einzigartiges Marketingkonzept für Ihren Erfolg.
Profitieren Sie von unserem Interessentenbestand.
Erfahren Sie in nur wenigen Schritten den groben Wert Ihrer Immobilie!
www.maison-immo.de
Kagebau_Bungalow_Ansicht_B-110-03
Kagebau
Kagebau Innenansicht 02
Kagebau Innenansicht 03
Kagebau-Grundriss-Uptown-mit-Carport
siegel-3monate-2021-k_04be1a06-e460-4fe1-8d1d-0e20e35c5002
Kagebau Logo 2021 - B
https://maison-immobilien.de/immobilien/in-handeloh-hoeckel-zum-kauf-ae-10027_2