Exposé
Objektart:
Haus
» Reihenhaus
» Kauf
Standort: Haus »
Deutschland » Berlin » Berlin, Stadt (Kreis) » Berlin
Erstbezug nach Sanierung: Reihenhaus in der Bruno Taut Siedlung Zehlendorf
Fenster Küche
Das Wichtigste auf einen Blick:
| Objektnummer: | 9453833 |
Preise
| Kaufpreis | 1.280.000 € |
| Nebenkosten | keine Angabe |
Flächen
| Wohnfläche | 120 m² |
| Grundstücksfläche | 165 m² |
| Maklerprovision | keine Provision, courtagefrei |
Objekt Adresse
14169 Berlin
- Berlin
Sonstige Angaben
| Baujahr | 1930 |
| Zimmer | 5 |
| Verfügbar ab | sofort |
| Bad | 2 |
| Anzahl der Etagen im Haus | 3 |
| Bad | 2 |
| Bad | Dusche |
| Boden | Fliesen, Parkett |
| Balkone | 0 |
| Garten | Ja |
| Terrassen | 1 |
| Keller | Ja |
| Heizungsart | Zentralheizung |
| Energieträger/Befeuerung | Gas |
Beschreibung der Immobilie
Inmitten der begehrten Waldsiedlung Zehlendorf befindet sich dieses außergewöhnliche denkmalgeschützte Reihenhaus, das in den Jahren 2025/2026 umfassend und mit großer Sorgfalt kernsaniert wurde. Die Sanierung erfolgte in enger Abstimmung mit dem Denkmalamt – mit dem Anspruch, den historischen Charakter zu bewahren und zugleich modernen Wohnkomfort auf hohem Niveau zu schaffen.
Historische Elemente wie sämtliche originalen alten Türen wurden vollständig erhalten und fachgerecht aufgearbeitet. Sie prägen den authentischen Charakter des Hauses und stehen bewusst im Kontrast zur vollständig erneuerten technischen Infrastruktur.
Ausstattung & Sanierungsumfang (Auszug):
Komplettsanierung 2025/2026
Denkmalgerechte neue Doppelkastenfenster
Vollständig neue Elektrik
Neue Heizungsanlage
Neue Wasser- und Abwasserleitungen
Wände und Decken in hochwertigem Glattputz
Teilweise neue Dielen, alle Holzböden gelaugt und geölt, im Erdgeschoss zusätzlich lackiert zum Schutz
Skandinavisches Farb- und Materialkonzept – hell, ruhig und zeitlos
Zwei Bäder mit hochwertiger Ausstattung und Bisazza-Mosaik
Fünf Zimmer
Separate Küche
Wintergarten mit Blick ins Grüne
Der Vorgarten sowie der Garten mit Terrasse sind harmonisch in das für die Waldsiedlung typische, grüne Umfeld eingebettet. Die Nachbarschaft ist geprägt von vielen Familien, einem ruhigen Miteinander und einer gewachsenen, angenehmen Atmosphäre.
Bezugsfertig ab sofort.
Der Verkauf erfolgt privat und ohne Makler.
Kontaktaufnahmen durch Makler sind ausdrücklich nicht erwünscht.
Objektzustand: Erstbezug nach Sanierung
Historische Elemente wie sämtliche originalen alten Türen wurden vollständig erhalten und fachgerecht aufgearbeitet. Sie prägen den authentischen Charakter des Hauses und stehen bewusst im Kontrast zur vollständig erneuerten technischen Infrastruktur.
Ausstattung & Sanierungsumfang (Auszug):
Komplettsanierung 2025/2026
Denkmalgerechte neue Doppelkastenfenster
Vollständig neue Elektrik
Neue Heizungsanlage
Neue Wasser- und Abwasserleitungen
Wände und Decken in hochwertigem Glattputz
Teilweise neue Dielen, alle Holzböden gelaugt und geölt, im Erdgeschoss zusätzlich lackiert zum Schutz
Skandinavisches Farb- und Materialkonzept – hell, ruhig und zeitlos
Zwei Bäder mit hochwertiger Ausstattung und Bisazza-Mosaik
Fünf Zimmer
Separate Küche
Wintergarten mit Blick ins Grüne
Der Vorgarten sowie der Garten mit Terrasse sind harmonisch in das für die Waldsiedlung typische, grüne Umfeld eingebettet. Die Nachbarschaft ist geprägt von vielen Familien, einem ruhigen Miteinander und einer gewachsenen, angenehmen Atmosphäre.
Bezugsfertig ab sofort.
Der Verkauf erfolgt privat und ohne Makler.
Kontaktaufnahmen durch Makler sind ausdrücklich nicht erwünscht.
Objektzustand: Erstbezug nach Sanierung
Ausstattung
Terrasse, Wintergarten, Garten, Keller, Duschbad, Parkett, Fliesen, Sonstiges (s. Text)
Bemerkungen:
Ausstattung & Sanierungsumfang (Auszug):
Komplettsanierung 2025/2026
Denkmalgerechte neue Doppelkastenfenster
Vollständig neue Elektrik
Neue Heizungsanlage
Neue Wasser- und Abwasserleitungen
Wände und Decken in hochwertigem Glattputz
Teilweise neue Dielen, alle Holzböden gelaugt und geölt, im Erdgeschoss zusätzlich lackiert zum Schutz
Skandinavisches Farb- und Materialkonzept – hell, ruhig und zeitlos
Zwei Bäder mit hochwertiger Ausstattung und Bisazza-Mosaik
Fünf Zimmer
Separate Küche
Wintergarten mit Blick ins Grüne
Bemerkungen:
Ausstattung & Sanierungsumfang (Auszug):
Komplettsanierung 2025/2026
Denkmalgerechte neue Doppelkastenfenster
Vollständig neue Elektrik
Neue Heizungsanlage
Neue Wasser- und Abwasserleitungen
Wände und Decken in hochwertigem Glattputz
Teilweise neue Dielen, alle Holzböden gelaugt und geölt, im Erdgeschoss zusätzlich lackiert zum Schutz
Skandinavisches Farb- und Materialkonzept – hell, ruhig und zeitlos
Zwei Bäder mit hochwertiger Ausstattung und Bisazza-Mosaik
Fünf Zimmer
Separate Küche
Wintergarten mit Blick ins Grüne
Lage & Infrastruktur
Die Lage verbindet Natur und Stadt in idealer Weise:
Die Krumme Lanke ist fußläufig erreichbar, die U-Bahn-Station liegt ca. 300 m entfernt. Von dort aus erreicht man die Berliner Innenstadt in etwa 20 Minuten. Eine seltene Kombination aus Erholung, guter Infrastruktur und urbaner Anbindung.
Die Waldsiedlung Zehlendorf steht für denkmalgeschützte Architektur, großzügige Grünflächen und eine Wohnqualität, die in Berlin nur noch selten zu finden ist.
Infrastruktur (im Umkreis von 5 km):
Apotheke, Lebensmittel-Discount, Allgemeinmediziner, Kindergarten, Grundschule, Realschule, Gymnasium, Gesamtschule, Öffentliche Verkehrsmittel
Die Krumme Lanke ist fußläufig erreichbar, die U-Bahn-Station liegt ca. 300 m entfernt. Von dort aus erreicht man die Berliner Innenstadt in etwa 20 Minuten. Eine seltene Kombination aus Erholung, guter Infrastruktur und urbaner Anbindung.
Die Waldsiedlung Zehlendorf steht für denkmalgeschützte Architektur, großzügige Grünflächen und eine Wohnqualität, die in Berlin nur noch selten zu finden ist.
Infrastruktur (im Umkreis von 5 km):
Apotheke, Lebensmittel-Discount, Allgemeinmediziner, Kindergarten, Grundschule, Realschule, Gymnasium, Gesamtschule, Öffentliche Verkehrsmittel
Sonstige Informationen
Heizungsart: Zentralheizung
Energieträger: Gas
Der Verkauf erfolgt privat und ohne Makler.
Kontaktaufnahmen durch Makler sind ausdrücklich nicht erwünscht.
Makleranfragen nicht erwünscht. Nach § 7 UWG sind unaufgeforderte Kontaktaufnahmen durch Makler ohne ausdrückliche Einwilligung des Empfängers verboten!
ohne-makler (OM) ist weder Anbieter noch Vermittler der Immobilie. OM betreibt eine Plattform für Immobilieneigentümer, die unter anderem die gleichzeitige Veröffentlichung einzelner Inserate auf mehreren Immobilienportalen ermöglicht. Die Inhalte dieser Inserate werden ausschließlich von Dritten verantwortet. Für die Richtigkeit, Vollständigkeit oder Rechtmäßigkeit der Angaben übernimmt OM keine Haftung. Hinweise auf mögliche Rechtsverstöße können jederzeit gemeldet werden und werden nach Prüfung umgehend bearbeitet.
Hausansicht
Küche
Wintergarten/Wohnen
Wintergarten
Wohnen
Wohnen
Bad Obergeschoss
Garten
Bad Obergeschoss
Bad Obergeschoss
Bad Obergeschoss
Zimmer 1 Obergeschoss
Zimmer 1 Obergeschoss
Zimmer 2 Obergeschoss
Flur
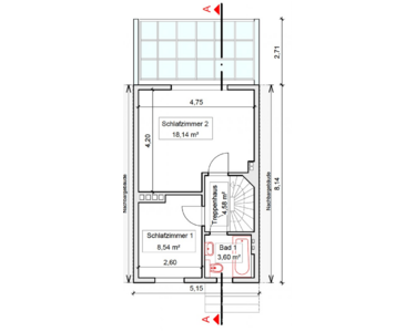
Dachgeschoss
Raum 1 Dachgeschoss
Flur Dachgeschoss
Duschbad Dachgeschoss
Duschbad Dachgeschoss
Duschbad Dachgeschoss
Raum 2 Dachgeschoss
Raum 2 Dachgeschoss
Blick Dachgeschoss
Treppenhaus
Kellerabgang
Kellerabgang
Kellertreppe
Kellerraum 1
Kellerraum 2
Kellertreppe
Kelleraufgang
Erdgeschoss
Hausansicht