Exposé
Objektart:
Grundstück
» Wohnen
» Kauf
Standort: Grundstück »
Deutschland » Bayern » München (Kreis) » Ottobrunn
Ottobrunn Baugrundstück mit Bauantrag in sehr guter Wohnlage für 2-3 Familien-Stadtvilla!
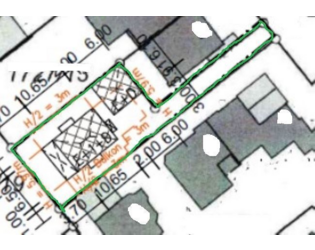
Lageplan Bauantrag-
Das Wichtigste auf einen Blick:
| Objektnummer: | 9453887 |
Preise
| Kaufpreis | 895.000 € |
| Nebenkosten | keine Angabe |
| Kaufpreis pro m² | 2259 € |
Flächen
| Gesamtfläche | 225 m² |
| Grundstücksfläche | 352 m² |
Objekt Adresse
85521 Ottobrunn
- Bayern
Sonstige Angaben
| Verfügbar ab | keine Angabe |
| Garage/Stellplätze | 2 |
| Garage/Stellplätze | 2 |
Beschreibung der Immobilie
Bei diesem Objektangebot handelt es sich um ein sehr interessantes Baugrundstück im Herzen von Ottobrunn, auf welchem ein kleines Dreifamilienhaus mit 2-3 Eigentumswohnungen als Stadtvilla errichtet werden kann.
Das Grundstück ist über eine Privateinfahrt auch mit dem PKW direkt zu erreichen. Die PKW's werden in der Duplexgarage oder auf einem weiteren Außenstellplatz abgestellt und es sind zu Fuß, gerademal 6-8 m bis zu dem Hauseingang der Stadtvilla.
Das Erdgeschoß ist barrierefrei, das Obergeschoß ist über eine Außentreppe und das Dachgeschoß über eine Innentreppe gut zu erreichen.
Das Grundstück ist über eine Privateinfahrt auch mit dem PKW direkt zu erreichen. Die PKW's werden in der Duplexgarage oder auf einem weiteren Außenstellplatz abgestellt und es sind zu Fuß, gerademal 6-8 m bis zu dem Hauseingang der Stadtvilla.
Das Erdgeschoß ist barrierefrei, das Obergeschoß ist über eine Außentreppe und das Dachgeschoß über eine Innentreppe gut zu erreichen.
Ausstattung
Es ist ein Bauantrag eingereicht, welcher eine Wohn- und Nutzfläche über 249,65 qm beinhaltet. Derzeit ist diese in die nachfolgenden Wohnungen und Nutzflächen aufgeteilt:
Wohnung 1 62,52 qm
Wohnung 2 50,18 qm
Wohnung 3 112,57 qm
Die Baugenehmigung wird gemäß Landratsamt München bis Ende Oktober 2025 erwartet.
Wohnung 1 62,52 qm
Wohnung 2 50,18 qm
Wohnung 3 112,57 qm
Die Baugenehmigung wird gemäß Landratsamt München bis Ende Oktober 2025 erwartet.
Lage & Infrastruktur
Dieses Dreifamilienhaus kann im schönen Dichterviertel von Ottobrunn in einem ruhigen Wohngebiet entstehen. Zudem liegt dieses Grundstück in einer sehr gefragten Wohngegend von Ottobrunn.
Die S-Bahn erreichen Sie in gerade mal nur 10 - 15 Minuten Fußweg. Von dem Grundstück sind es auch nur einige hundert Meter bis zu den wichtigsten Versorgungsgeschäften für den täglichen Bedarf, sonst sind in Ottobrunn fast alle führenden Einkaufsmärkte etabliert.
Die S-Bahn erreichen Sie in gerade mal nur 10 - 15 Minuten Fußweg. Von dem Grundstück sind es auch nur einige hundert Meter bis zu den wichtigsten Versorgungsgeschäften für den täglichen Bedarf, sonst sind in Ottobrunn fast alle führenden Einkaufsmärkte etabliert.
Sonstige Informationen
Dieses Angebot ist für die Käufer provisionsfrei. Eventuelle Änderungen im Innern des Hauses, z.B. eine Reduzierung auf ein Zweifamilienhaus, sind auch noch möglich.
ES KÖNNEN NUR QUALIFIZIERTE ANFRAGEN MIT IHRER TELEFONUMMER FÜR UNSERE KONTAKTAUFNAHME BEARBEITET WERDEN.
Südosten
Süden
Nordosten
Westen