Exposé
Objektart:
Haus
» Einfamilienhaus
» Kauf
Standort: Haus »
Deutschland » Brandenburg » Potsdam-Mittelmark (Kreis) » Stahnsdorf
"Gemeinsam wohnen, gemeinsam leben, gemeinsam genießen" EINFAMILIENHAUS MIT EINLIEGERWOHNUNG
Das Wichtigste auf einen Blick:
| Objektnummer: | 9451359 |
Preise
| Kaufpreis | 997.995 € |
| Nebenkosten | keine Angabe |
Flächen
| Wohnfläche | 167,94 m² |
| Nutzfläche | 167 m² |
| Grundstücksfläche | 1.213 m² |
Objekt Adresse
14532 Stahnsdorf
Sonstige Angaben
| Zimmer | 5 |
| Verfügbar ab | keine Angabe |
| Bad | 1 |
| Anzahl der Etagen im Haus | 2 |
| Küche | Einbauküche |
| Bad | 1 |
| Bad | Dusche, Wanne, Fenster |
Beschreibung der Immobilie
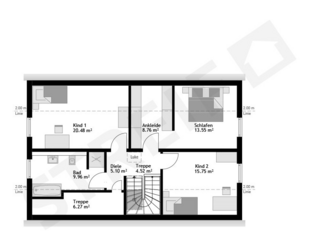
Erleben Sie das Gefühl, Ihr eigenes Traumhaus in Stahnsdorf zu gestalten und zu bewohnen. Unser STREIF-Einfamilienhaus ist der Inbegriff von Flexibilität und Anpassung an Ihre individuellen Wünsche. Mit einer großzügigen Wohnfläche von 167,94 m², verteilt auf zwei Etagen, bieten wir Ihnen ausreichend Platz für ein Leben voller Komfort und Eleganz. Das Haus umfasst fünf Zimmer, darunter vier geräumige Schlafzimmer, die Ihnen und Ihrer Familie Raum zum Entspannen bieten. Ein lichtdurchflutetes Badezimmer mit Dusche, Badewanne und Fenster sowie ein zusätzliches Gäste-WC erhöhen den Wohnkomfort weiter. Mit STREIF haben Sie die Möglichkeit, Ihr Haus mit Walmdach, Flachdach oder klassischem Satteldach individuell zu gestalten.
Ausstattung
Die Ausstattung Ihres zukünftigen Zuhauses in Stahnsdorf ist gehoben und zeugt von höchster Qualität. Die Sanitär-Grundausstattung im Badezimmer lässt keine Wünsche offen: Freuen Sie sich auf eine komfortable Dusche, eine entspannende Badewanne sowie ein großes Fenster für viel Tageslicht. Jedes Detail wird sorgfältig geplant und umgesetzt, um Ihren Ansprüchen gerecht zu werden.
Lage & Infrastruktur
Das Einfamilienhaus befindet sich in der idyllischen Gemeinde Stahnsdorf. Diese Lage bietet Ihnen nicht nur Ruhe und Erholung im Grünen, sondern auch eine hervorragende Anbindung an die städtische Infrastruktur. Geschäfte des täglichen Bedarfs, Schulen und Freizeitmöglichkeiten sind bequem erreichbar - ideal für Familien.
Sonstige Informationen
Mit der Ausbaustufe 3 - FastFertigPlus entscheiden Sie sich für eine Variante, bei der Sie selbst Hand anlegen können, während komplexe haustechnische Gewerke wie Heizung, Lüftung, Sanitär und Estrich von unserem Fachbetrieb übernommen werden. Der Preis für unser Beispielhaus vom Typ City beginnt ab 344.375 EUR. Unsere verschiedenen Ausbaustufen bieten Ihnen Flexibilität in der Gestaltung Ihres Budgets durch Eigenleistung.