Exposé
Objektart:
Büro / Praxen
» Bueroflaeche
» Miete
Standort: Büro / Praxen »
Deutschland » Hamburg » Hamburg, Freie und Hansestadt (Kreis) » Hamburg
EG mit toller Belichtung, Büro, Schulung, Showroom - Nh. Hbf
Historisch
Das Wichtigste auf einen Blick:
| Objektnummer: | 9451636 |
Preise
| Nebenkosten | keine Angabe |
| Mietpreis pro m² | 22,5 € |
Flächen
| Gesamtfläche | 95 m² |
| Bürofläche | 95 m² |
Objekt Adresse
20095 Hamburg
- Hamburg
Sonstige Angaben
| Baujahr | 1903 |
| Verfügbar ab | 01.07.2026 |
| Heizungsart | Zentralheizung |
Beschreibung der Immobilie
Das 1903 errichtete, äußerst attraktive Kontorhaus wurde 2003 / 2004 von Grund auf saniert und unter Berücksichtigung alter Stilelemente modernisiert. So wurden u.a. das sehr repräsentative Treppenhaus und der großzügige Hauseingangsbereich neu gestaltet. Der Personenaufzug wurde ebenfalls erneuert.
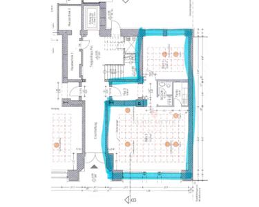
Hochwertig ausgestattete Bürofläche im Erdgeschoß bestehend aus 2 Räumen mit ca. 57m² und ca. 22m² sowie WC + Pantry mit hohe Fensterfront und somit toller Belichtung.
Hochwertig ausgestattete Bürofläche im Erdgeschoß bestehend aus 2 Räumen mit ca. 57m² und ca. 22m² sowie WC + Pantry mit hohe Fensterfront und somit toller Belichtung.
Lage & Infrastruktur
Das moderne Büro- und Geschäftshaushaus befindet sich in der Nähe des Hauptbahnhofes, zwischen der „Spitaler Straße“ und der „Alster“.
In unmittelbarer Nachbarschaft befinden sich die Europa Passage die Binnenalster und der Hauptbahnhof.
Neben „Campus Suite“ und das Restaurant „Vapiano“ stehen Ihnen selbstverständlich die Vielzahl weiterer gastronomischer Einrichtungen und Einkaufsmöglichkeiten u.A. auch in der "Europa Passage" in dem Nahen Umfeld zur Verfügung.
In unmittelbarer Nachbarschaft befinden sich die Europa Passage die Binnenalster und der Hauptbahnhof.
Neben „Campus Suite“ und das Restaurant „Vapiano“ stehen Ihnen selbstverständlich die Vielzahl weiterer gastronomischer Einrichtungen und Einkaufsmöglichkeiten u.A. auch in der "Europa Passage" in dem Nahen Umfeld zur Verfügung.
Sonstige Informationen
Die Provisionsfreiheit dieser Vermietung setzt einen Mietvertragsabschluss mit einer Mindest-Vertragslaufzeit von 5 Jahren voraus. Für den Fall der kurzfristigeren Vertragslaufzeit wird dem Mieter eine Courtage in Höhe von 3,57 Brutto-Monatsmieten inkl. 19% Umsatzsteuer berechnet.
Alle Preise verstehen sich zzgl. 19% Umsatzsteuer. Irrtum, Änderungen und Zwischenvermietung bleiben ausdrücklich vorbehalten.
IHR FLÄCHENGESUCH:
Sie haben noch nicht das passende Objekt gefunden? Bitte füllen Sie alle notwendigen Kontaktdaten von Ihnen in der Anfrage aus, sodass wir diese schnellstmöglich bearbeiten können.
Wir freuen uns aber auch auf Ihren Anruf um gemeinschaftlich Ihr Anforderungsprofil im Detail aufzunehmen. Sicherlich finden wir auch IHR Wunschobjekt!
Büro zur Straße
Büro zum Hof
Pantry
unverbindl. Planung