Exposé
Objektart:
Haus
» Einfamilienhaus
» Kauf
Standort: Haus »
Deutschland » Niedersachsen » Emsland (Kreis) » Lathen
Käufer Provisionsfrei: Wohnhaus mit Substanz u. Entwicklungspotenzial in Lathen
Wohnhaus mit Substanz
Das Wichtigste auf einen Blick:
| Objektnummer: | 9430872 |
Preise
| Kaufpreis | 243.000 € |
| Nebenkosten | keine Angabe |
Flächen
| Wohnfläche | 114,3 m² |
| Grundstücksfläche | 632 m² |
Objekt Adresse
49762 Lathen
Sonstige Angaben
| Baujahr | 1986 |
| Zimmer | 4 |
| Verfügbar ab | nach Vereinbarung |
| Bad | 1 |
| Garage/Stellplätze | 1 |
| Küche | Einbauküche |
| Bad | 1 |
| Bad | Dusche, Fenster |
| Boden | Fliesen, Teppich |
| Terrassen | 1 |
| Garage/Stellplätze | 1 |
| Wesentlicher Energieträger | Erdgas Leicht |
| Energieträger/Befeuerung | Gas |
Beschreibung der Immobilie
Solides Einfamilienhaus in ruhiger Sackgassenendlage – Wohnen mit Substanz, Komfort und Entwicklungspotenzial in Lathen
Dieses gepflegte Einfamilienhaus aus dem Baujahr 1986 überzeugt durch seine gute Grundsubstanz, eine durchdachte Raumaufteilung sowie eine besonders ruhige und begehrte Sackgassenendlage. Die massive Bauweise mit klassischem Krüppelwalmdach steht für Langlebigkeit, Stabilität und eine zeitlose Architektur. Mit einer Wohnfläche von ca. 114 m² bietet das Haus ideale Voraussetzungen für Paare, Familien oder auch für komfortables Wohnen im Alter.
Insgesamt befindet sich die Immobilie in einem relativ guten und gepflegten Zustand. Verschönerungs- und Modernisierungsarbeiten sind einzuplanen, bieten jedoch zugleich die Möglichkeit, das Haus nach eigenen Vorstellungen zu gestalten und ihm eine persönliche Note zu verleihen.
Dieses Einfamilienhaus in Lathen bietet eine solide Bausubstanz, eine ruhige Sackgassenendlage, praktische Ausstattungsmerkmale wie den Treppenlift sowie die Möglichkeit zur Möbelübernahme nach Vereinbarung. Eine ideale Immobilie für Käufer, die ein gepflegtes Zuhause mit Potenzial suchen und Wert auf Ruhe, Komfort und Entwicklungsmöglichkeiten legen.
Dieses gepflegte Einfamilienhaus aus dem Baujahr 1986 überzeugt durch seine gute Grundsubstanz, eine durchdachte Raumaufteilung sowie eine besonders ruhige und begehrte Sackgassenendlage. Die massive Bauweise mit klassischem Krüppelwalmdach steht für Langlebigkeit, Stabilität und eine zeitlose Architektur. Mit einer Wohnfläche von ca. 114 m² bietet das Haus ideale Voraussetzungen für Paare, Familien oder auch für komfortables Wohnen im Alter.
Insgesamt befindet sich die Immobilie in einem relativ guten und gepflegten Zustand. Verschönerungs- und Modernisierungsarbeiten sind einzuplanen, bieten jedoch zugleich die Möglichkeit, das Haus nach eigenen Vorstellungen zu gestalten und ihm eine persönliche Note zu verleihen.
Dieses Einfamilienhaus in Lathen bietet eine solide Bausubstanz, eine ruhige Sackgassenendlage, praktische Ausstattungsmerkmale wie den Treppenlift sowie die Möglichkeit zur Möbelübernahme nach Vereinbarung. Eine ideale Immobilie für Käufer, die ein gepflegtes Zuhause mit Potenzial suchen und Wert auf Ruhe, Komfort und Entwicklungsmöglichkeiten legen.
Ausstattung
Bereits beim Betreten des Hauses wird deutlich, dass hier ein solides Zuhause mit angenehmer Wohnatmosphäre geschaffen wurde. Das Erdgeschoss bildet den Mittelpunkt des täglichen Lebens. Herzstück ist das großzügige Wohnzimmer mit charmantem Erkerausbau, der für viel Tageslicht sorgt und dem Raum eine besondere architektonische Note verleiht. Ein Kachelofen sorgt insbesondere in der kälteren Jahreszeit für eine behagliche Wärme und unterstreicht den wohnlichen Charakter des Hauses. Von hier aus besteht ein direkter Zugang zur Terrasse, die sich ideal für entspannte Stunden im Freien, Familienfeiern oder gesellige Abende eignet.
Die Küche ist mit einer älteren, jedoch funktionalen Einbauküche ausgestattet, die im Kaufpreis bereits enthalten ist. Die vorhandene Ausstattung ist zwar nicht mehr modern, jedoch gepflegt und voll nutzbar. Auch weitere Möbel im Haus können nach Vereinbarung übernommen werden. Diese sind funktional und bieten insbesondere Käufern, die einen unkomplizierten Einzug oder eine schrittweise Modernisierung planen, einen praktischen Mehrwert.
Die Bodenbeläge im Erdgeschoss sind mit pflegeleichten Fliesen ausgestattet. Ergänzt wird diese Wohnebene durch ein Gäste-WC, das den Grundriss sinnvoll abrundet.
Über das zentrale Treppenhaus gelangt man in das Obergeschoss. Besonders hervorzuheben ist der moderne Treppenlift, der ebenfalls im Kaufpreis enthalten ist und einen komfortablen sowie nahezu barrierefreien Zugang in die obere Etage ermöglicht – ein großer Vorteil für das altersgerechte Wohnen oder bei eingeschränkter Mobilität.
Im Obergeschoss stehen drei Schlafzimmer zur Verfügung, die flexibel als Elternschlafzimmer, Kinderzimmer, Gästezimmer oder Homeoffice genutzt werden können. Zwei der Schlafzimmer verfügen über einen direkten Zugang zum Balkon, von dem aus sich ein schöner Blick in die ruhige Nachbarschaft bietet. Das Badezimmer im Obergeschoss ist mit einer Dusche ausgestattet und gefliest. In den übrigen Räumen des Obergeschosses sorgen Teppichböden für eine angenehme Wohnlichkeit. Das Haus ist mit Sprossen-Kunststofffenstern mit Zweifachverglasung sowie Rollläden ausgestattet, die zu einem guten Wohnklima beitragen.
Abgerundet wird das Angebot durch eine separate Garage sowie einen zusätzlichen Carport, die komfortable und witterungsgeschützte Stellflächen für Fahrzeuge bieten. Darüber hinaus steht weiterer Stauraum für Fahrräder, Gartengeräte oder Hobbybedarf zur Verfügung – ein nicht zu unterschätzender Vorteil im täglichen Gebrauch.
Die Küche ist mit einer älteren, jedoch funktionalen Einbauküche ausgestattet, die im Kaufpreis bereits enthalten ist. Die vorhandene Ausstattung ist zwar nicht mehr modern, jedoch gepflegt und voll nutzbar. Auch weitere Möbel im Haus können nach Vereinbarung übernommen werden. Diese sind funktional und bieten insbesondere Käufern, die einen unkomplizierten Einzug oder eine schrittweise Modernisierung planen, einen praktischen Mehrwert.
Die Bodenbeläge im Erdgeschoss sind mit pflegeleichten Fliesen ausgestattet. Ergänzt wird diese Wohnebene durch ein Gäste-WC, das den Grundriss sinnvoll abrundet.
Über das zentrale Treppenhaus gelangt man in das Obergeschoss. Besonders hervorzuheben ist der moderne Treppenlift, der ebenfalls im Kaufpreis enthalten ist und einen komfortablen sowie nahezu barrierefreien Zugang in die obere Etage ermöglicht – ein großer Vorteil für das altersgerechte Wohnen oder bei eingeschränkter Mobilität.
Im Obergeschoss stehen drei Schlafzimmer zur Verfügung, die flexibel als Elternschlafzimmer, Kinderzimmer, Gästezimmer oder Homeoffice genutzt werden können. Zwei der Schlafzimmer verfügen über einen direkten Zugang zum Balkon, von dem aus sich ein schöner Blick in die ruhige Nachbarschaft bietet. Das Badezimmer im Obergeschoss ist mit einer Dusche ausgestattet und gefliest. In den übrigen Räumen des Obergeschosses sorgen Teppichböden für eine angenehme Wohnlichkeit. Das Haus ist mit Sprossen-Kunststofffenstern mit Zweifachverglasung sowie Rollläden ausgestattet, die zu einem guten Wohnklima beitragen.
Abgerundet wird das Angebot durch eine separate Garage sowie einen zusätzlichen Carport, die komfortable und witterungsgeschützte Stellflächen für Fahrzeuge bieten. Darüber hinaus steht weiterer Stauraum für Fahrräder, Gartengeräte oder Hobbybedarf zur Verfügung – ein nicht zu unterschätzender Vorteil im täglichen Gebrauch.
Lage & Infrastruktur
Lathen – Wohnen im Emsland mit hoher Lebensqualität
Lathen ist eine beliebte Gemeinde im südlichen Emsland und zeichnet sich durch eine gelungene Kombination aus ländlicher Ruhe und guter Infrastruktur aus. Einkaufsmöglichkeiten für den täglichen Bedarf, Ärzte, Apotheken, Kindergärten und Schulen sind vor Ort vorhanden und schnell erreichbar. Auch gastronomische Angebote und ein reges Vereinsleben tragen zur hohen Lebensqualität bei.
Besonders hervorzuheben ist die sehr gute Verkehrsanbindung. Lathen verfügt über einen eigenen Bahnhof an der Emslandstrecke sowie über eine schnelle Anbindung an die Bundesstraße B70 und die Autobahn A31. Dadurch sind umliegende Städte wie Papenburg, Meppen oder auch weiter entfernte Ziele bequem erreichbar – ideal für Berufspendler.
Die naturnahe Umgebung mit der Ems, zahlreichen Rad- und Spazierwegen sowie weitläufigen Grünflächen bietet einen hohen Freizeit- und Erholungswert. Lathen verbindet damit ein ruhiges, sicheres Wohnumfeld mit einer guten Erreichbarkeit und einem starken Gemeinschaftsgefühl.
Lathen ist eine beliebte Gemeinde im südlichen Emsland und zeichnet sich durch eine gelungene Kombination aus ländlicher Ruhe und guter Infrastruktur aus. Einkaufsmöglichkeiten für den täglichen Bedarf, Ärzte, Apotheken, Kindergärten und Schulen sind vor Ort vorhanden und schnell erreichbar. Auch gastronomische Angebote und ein reges Vereinsleben tragen zur hohen Lebensqualität bei.
Besonders hervorzuheben ist die sehr gute Verkehrsanbindung. Lathen verfügt über einen eigenen Bahnhof an der Emslandstrecke sowie über eine schnelle Anbindung an die Bundesstraße B70 und die Autobahn A31. Dadurch sind umliegende Städte wie Papenburg, Meppen oder auch weiter entfernte Ziele bequem erreichbar – ideal für Berufspendler.
Die naturnahe Umgebung mit der Ems, zahlreichen Rad- und Spazierwegen sowie weitläufigen Grünflächen bietet einen hohen Freizeit- und Erholungswert. Lathen verbindet damit ein ruhiges, sicheres Wohnumfeld mit einer guten Erreichbarkeit und einem starken Gemeinschaftsgefühl.
Sonstige Informationen
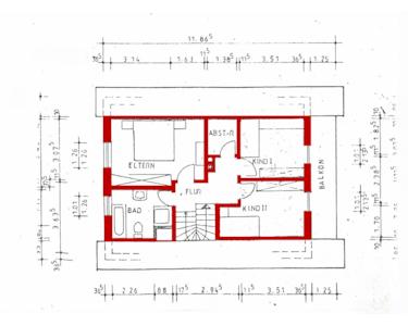
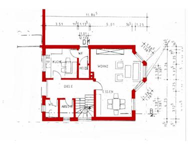
Wohnflächenaufteilung:
Erdgeschoss:
Diele ca. 12,10 m²
Wohn-Esszimmer ca. 38,20 m²
Küche ca. 11,44 m²
Gäste-WC ca. 2,78 m²
Abstellraum ca. 3,30 m²
Windfang ca. 1,86 m²
Dachgeschoss:
Flur ca. 5,19 m²
Schlafzimmer ca. 13,71 m²
Schlafzimmer ca. 9,87 m²
Schlafzimmer ca. 9,21 m²
Badezimmer ca. 6,32 m²
Abstellraum ca. 1,91 m²
Balkon anteilig ca. 1,84 m²
Nutzflächen:
Garage, Carport, Balkon, Gartenhaus
Hausansicht
Hausansicht
Hausansicht
Hausansicht
Hausansicht
Hausansicht
Hausansicht
Wohnzimmer
Wohnzimmer
Wohnzimmer
Wohnzimmer
Küche
Küche
Treppe mit Lift
Flur
Gäste-WC
Flur OG
Schlafzimmer
Schlafzimmer
Schlafzimmer
Badezimmer
Badezimmer
Badezimmer
Garten
Garten
Garten
Grundriss EG
Grundriss DG
Schnitt