Exposé
Objektart:
Büro / Praxen
» Buerohaus
» Kauf
Standort: Büro / Praxen »
Deutschland » Bayern » Kelheim (Kreis) » Bad Abbach
IB3933 Bürohaus in ruhiger Lage / Bad Abbach
Bild/Grundriss 1
Das Wichtigste auf einen Blick:
| Objektnummer: | 9430469 |
Preise
| Kaufpreis | 1.100.000 € |
| Nebenkosten | keine Angabe |
Flächen
| Nutzfläche | 380 m² |
| Bürofläche | 380 m² |
| Grundstücksfläche | 1.154 m² |
| Maklerprovision | Ortsübliche Provision vom Käufer/Mieter nur im Erfolgsfalle |
Objekt Adresse
93077 Bad Abbach
- Bayern
Sonstige Angaben
| Baujahr | 2003 |
| Zimmer | 12 |
| Verfügbar ab | sofort |
| Küche | Einbauküche |
| Boden | Fliesen |
| Energieträger/Befeuerung | Gas |
Objektbeschreibung
Das zum Verkauf stehende Bürohaus befindet sich in ruhiger Lage in einem Gewerbegebiet in Bad Abbach. Eine Bushaltestelle ist vorhanden. Durch die nahegelegene Autobahn A 93 und die Bundesstraße B 15 besteht eine hervorragende Anbindung an Regensburg.
Das Haus wird mit einer Gaszentralheizung beheizt. Das Erdgeschoss wurde vom Eigentümer gewerblich genutzt und die beiden Einheiten im Obergeschoss sind als Wohnung vermietet. Es ist eine Fußbodenheizung vorhanden und komplett gefliest. Ein DSL-Anschluss ist mit bis zu 1000 Mbit/s möglich.
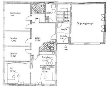
Im Erdgeschoss ist über den Windfang die Einheit 1 sowie auch die Doppelgarage, welche etwas größer als genehmigt errichtet wurde, erreichbar. Vom Empfang sind nahezu alle Büros aus erreichbar. Vom Sekretariat war über eine mobile Stellwand ein Besprechungszimmer mit Küchenzeile abgetrennt. Das Sekretariat und das Chefbüro haben Zugang zur sonnigen Südterrasse. Das Bad ist mit Wanne, Waschbecken, Bidet und WC ausgestattet, ein weiteres WC ist vorhanden.
Im Obergeschoss befinden sich zwei zu Wohnungen umgebaute Einheiten. Die umgebaute 5-Zimmerwohnung hat einen Abgang in den Westgarten. Die Teeküche mit nebenliegender Abstellkammer wurde in eine Kochküche umgebaut. Das Bad ist mit Wanne, Waschbecken und WC ausgestattet. Das umgebaute Appartement über der Garage verfügt über ein großes Wohnzimmer, Schlafzimmer und eine Küche mit angrenzendem Duschbad.
Das Haus wird mit einer Gaszentralheizung beheizt. Das Erdgeschoss wurde vom Eigentümer gewerblich genutzt und die beiden Einheiten im Obergeschoss sind als Wohnung vermietet. Es ist eine Fußbodenheizung vorhanden und komplett gefliest. Ein DSL-Anschluss ist mit bis zu 1000 Mbit/s möglich.
Im Erdgeschoss ist über den Windfang die Einheit 1 sowie auch die Doppelgarage, welche etwas größer als genehmigt errichtet wurde, erreichbar. Vom Empfang sind nahezu alle Büros aus erreichbar. Vom Sekretariat war über eine mobile Stellwand ein Besprechungszimmer mit Küchenzeile abgetrennt. Das Sekretariat und das Chefbüro haben Zugang zur sonnigen Südterrasse. Das Bad ist mit Wanne, Waschbecken, Bidet und WC ausgestattet, ein weiteres WC ist vorhanden.
Im Obergeschoss befinden sich zwei zu Wohnungen umgebaute Einheiten. Die umgebaute 5-Zimmerwohnung hat einen Abgang in den Westgarten. Die Teeküche mit nebenliegender Abstellkammer wurde in eine Kochküche umgebaut. Das Bad ist mit Wanne, Waschbecken und WC ausgestattet. Das umgebaute Appartement über der Garage verfügt über ein großes Wohnzimmer, Schlafzimmer und eine Küche mit angrenzendem Duschbad.
Ausstattung
Lage: Bad Abbach
Kaufpreis: EUR 1.100.000,-
Fläche: ca. 380 m²
Grundstück: ca. 1154 m²
Lageart: sonstiges
Zimmeranzahl: 12
Baujahr: 2003
Geschoss(e): E + 1
Bezug: sofort
teilbar ab: nein
Stellplatzanzahl: 7
Stellplatzpreis: EUR 0,-
Fußweg zum RVV: 5 min.
Fahrtzeit Bahnhof: 5 min.
Fahrtzeit Autobahn: 5 min.
Fahrtzeit Flughafen: 60 min.
Objekttyp: Bürohaus
Zustand: renoviert
Ausstattung: normal
Bodenbelag: Fliesen
Heizung: Gas-Heizung
Energieausweis Art: keine Angabe
Energieträger: Gas
DV-Verkabelung: ja
Einbauküche: ja
Kaufpreis: EUR 1.100.000,-
Fläche: ca. 380 m²
Grundstück: ca. 1154 m²
Lageart: sonstiges
Zimmeranzahl: 12
Baujahr: 2003
Geschoss(e): E + 1
Bezug: sofort
teilbar ab: nein
Stellplatzanzahl: 7
Stellplatzpreis: EUR 0,-
Fußweg zum RVV: 5 min.
Fahrtzeit Bahnhof: 5 min.
Fahrtzeit Autobahn: 5 min.
Fahrtzeit Flughafen: 60 min.
Objekttyp: Bürohaus
Zustand: renoviert
Ausstattung: normal
Bodenbelag: Fliesen
Heizung: Gas-Heizung
Energieausweis Art: keine Angabe
Energieträger: Gas
DV-Verkabelung: ja
Einbauküche: ja
Lage des Objektes
Bad Abbach
Sonstige Informationen
Um eine schnelle Bearbeitung zu gewähren benötigen wir Ihre Telefonnummer sowie Ihre komplette Adresse.
Bild/Grundriss 2
Bild/Grundriss 3
Bild/Grundriss 4
Bild/Grundriss 5
Bild/Grundriss 6
Bild/Grundriss 7
Bild/Grundriss 8
Logo