Exposé
Objektart:
Wohnung
» Etage
» Kauf
Standort: Wohnung »
Deutschland » Bayern » München, Landeshauptstadt (Kreis) » München
AIGNER - Licht, Raum und Eleganz – hochwertige 3-Zimmer-Wohnung in Bestlage Gerns
Wohnbereich
Das Wichtigste auf einen Blick:
| Objektnummer: | 9428352 |
Preise
| Kaufpreis | 1.370.000 € |
| Nebenkosten | keine Angabe |
| Hausgeld | 564 € |
Flächen
| Wohnfläche | 110,5 m² |
| Nutzfläche | 9 m² |
| Maklerprovision | 3,57% |
Objekt Adresse
80637 München
Sonstige Angaben
| Baujahr | 2010 |
| Zimmer | 3 |
| Verfügbar ab | nach Vereinbarung |
| Bad | 1 |
| Garage/Stellplätze | 1 |
| Inserat befindet sich im Stockwerk | 3 |
| Küche | Einbauküche |
| Bad | 1 |
| Fahrstuhl | Ja |
| Garage/Stellplätze | 1 |
| Keller | Ja |
| Heizungsart | Fernwärme |
Objektbeschreibung
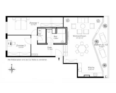
Diese elegante 3-Zimmer-Wohnung beeindruckt mit einer großzügigen Wohnfläche von ca. 110 m² und einer durchdachten Raumaufteilung, die modernen Wohnkomfort und Funktionalität miteinander vereint. Das Gebäude wurde im Jahr 2010 erbaut und bietet modernen Komfort auf hohem Niveau.
Bereits beim Betreten der Wohnung führt die Diele über eine kleine Stufe direkt in den offenen, lichtdurchfluteten Wohn- und Essbereich. Der angrenzende Kochbereich ist mit einer exklusiven Einbauküche ausgestattet. Mit einer Fläche von 45 m² bildet dieser Bereich das Herzstück der Wohnung und ist dank einer großen Fensterfront besonders einladend und hell. Von hier aus haben Sie Zugang zu dem ca. 17 m² großen Balkon, der zur Ostseite hin ausgerichtet ist und Ihnen morgens bereits Sonne und Ruhe bietet.
Geradeaus von der Diele erreichen Sie das moderne Badezimmer mit einer begehbaren Dusche, das für höchsten Komfort sorgt. Links der Diele befindet sich die Garderobe sowie ein weiteres Zimmer, das als Arbeits- oder Kinderzimmer genutzt werden kann. Direkt daneben liegt das Schlafzimmer, das mit einer praktischen Ankleidenische ausgestattet ist und eine erholsame Atmosphäre schafft.
Zusätzlich bietet die Wohnung einen praktischen Hauswirtschaftsraum mit Waschmaschinenanschluss, der für zusätzlichen Stauraum sorgt, ohne den Raumfluss zu stören.
Besonders hervorzuheben sind die hohen Decken und die bodentiefen Fenster, die in allen Räumen eine luftige und offene Atmosphäre erzeugen, sowie die Fußbodenheizung, die für ein angenehmes Raumklima sorgt.
Ein Tiefgaragenstellplatz gehört ebenfalls zur Wohnung und rundet das Angebot perfekt ab. Die gelungene Kombination aus ruhiger, zentraler Lage, hochwertiger Ausstattung und einem durchdachten Grundriss macht diese Wohnung zu einem idealen Zuhause für anspruchsvolle Stadtbewohner.
Der Kaufpreis setzt sich wie folgt zusammen: Kaufpreis 1.370.000 Euro Wohnung + 38.000 Euro Stellplatz = 1.408.000 Euro Gesamt.
Bereits beim Betreten der Wohnung führt die Diele über eine kleine Stufe direkt in den offenen, lichtdurchfluteten Wohn- und Essbereich. Der angrenzende Kochbereich ist mit einer exklusiven Einbauküche ausgestattet. Mit einer Fläche von 45 m² bildet dieser Bereich das Herzstück der Wohnung und ist dank einer großen Fensterfront besonders einladend und hell. Von hier aus haben Sie Zugang zu dem ca. 17 m² großen Balkon, der zur Ostseite hin ausgerichtet ist und Ihnen morgens bereits Sonne und Ruhe bietet.
Geradeaus von der Diele erreichen Sie das moderne Badezimmer mit einer begehbaren Dusche, das für höchsten Komfort sorgt. Links der Diele befindet sich die Garderobe sowie ein weiteres Zimmer, das als Arbeits- oder Kinderzimmer genutzt werden kann. Direkt daneben liegt das Schlafzimmer, das mit einer praktischen Ankleidenische ausgestattet ist und eine erholsame Atmosphäre schafft.
Zusätzlich bietet die Wohnung einen praktischen Hauswirtschaftsraum mit Waschmaschinenanschluss, der für zusätzlichen Stauraum sorgt, ohne den Raumfluss zu stören.
Besonders hervorzuheben sind die hohen Decken und die bodentiefen Fenster, die in allen Räumen eine luftige und offene Atmosphäre erzeugen, sowie die Fußbodenheizung, die für ein angenehmes Raumklima sorgt.
Ein Tiefgaragenstellplatz gehört ebenfalls zur Wohnung und rundet das Angebot perfekt ab. Die gelungene Kombination aus ruhiger, zentraler Lage, hochwertiger Ausstattung und einem durchdachten Grundriss macht diese Wohnung zu einem idealen Zuhause für anspruchsvolle Stadtbewohner.
Der Kaufpreis setzt sich wie folgt zusammen: Kaufpreis 1.370.000 Euro Wohnung + 38.000 Euro Stellplatz = 1.408.000 Euro Gesamt.
Ausstattung
Großzügige 3-Zimmer-Wohnung mit durchdachtem Grundriss
Offener Wohn-, Ess- und Kochbereich mit ca. 45 m²
Exklusive Einbauküche
Bodentiefe Fenster in allen Räumen
Hohe Decken für ein großzügiges Raumgefühl
Fußbodenheizung in der gesamten Wohnung
Modernes Badezimmer mit bodengleicher, begehbarer Dusche
Schlafzimmer mit integrierter Ankleidenische
Zusätzliches Zimmer nutzbar als Arbeits-, Gäste- oder Kinderzimmer
Separate Garderobenfläche im Eingangsbereich
Lichtdurchflutete Räume durch große Fensterfronten
Tiefgaragenstellplatz inklusive
Offener Wohn-, Ess- und Kochbereich mit ca. 45 m²
Exklusive Einbauküche
Bodentiefe Fenster in allen Räumen
Hohe Decken für ein großzügiges Raumgefühl
Fußbodenheizung in der gesamten Wohnung
Modernes Badezimmer mit bodengleicher, begehbarer Dusche
Schlafzimmer mit integrierter Ankleidenische
Zusätzliches Zimmer nutzbar als Arbeits-, Gäste- oder Kinderzimmer
Separate Garderobenfläche im Eingangsbereich
Lichtdurchflutete Räume durch große Fensterfronten
Tiefgaragenstellplatz inklusive
Lage des Objektes
Im Münchner Stadtteil Gern, nördlich des Nymphenburger Kanals, mit weitläufigen Parkanlagen ist die kulturelle Tradition Münchens besonders spürbar. Als historisch gewachsener Ort mit außergewöhnlichem Charakter ist Gern geprägt von Eleganz und Individualität. Das Ambiente Gerns vereint Wohnqualitäten in vielfältiger Form. Neben der hervorragenden Infrastruktur punktet das Wohnviertel mit zahlreichen kleinen Cafés und Restaurants. Alle Geschäfte des täglichen Bedarfs sind fußläufig erreichbar. Ebenso befinden sich in unmittelbarer Nähe diverse Arztpraxen und Apotheken.
Mehrere gute Kindergärten und die beliebte Grundschule am Dom-Pedro-Platz sind fußläufig erreichbar. Auch ausgezeichnete weiterführende Schulen sind vorhanden, etwa die privaten Nymphenburger und die Maria-Ward-Schulen sowie das Käthe-Kollwitz-Gymnasium. Hockey, Tennis, Leichtathletik, Yoga: Mehrere Sportvereine bieten ein breites Programm für die ganze Familie. Der nahe Abenteuerspielplatz, das Dante-Freibad und der Olympiapark laden zu Aktivität, Spiel und Erholung ein.
Das Stadtzentrum ist sowohl mit dem öffentlichen Nahverkehr als auch mit dem Auto schnell erreicht. Die U-Bahn Station Gern ist ca. 5 Gehminuten und die Bushaltestelle Hanebergstraße lediglich ca. 4 Gehminuten entfernt. Mit dem Auto gelangt man zügig auf den südlichen oder nördlichen Ring, von dem aus alle Autobahnen Münchens zu erreichen sind.
Mehrere gute Kindergärten und die beliebte Grundschule am Dom-Pedro-Platz sind fußläufig erreichbar. Auch ausgezeichnete weiterführende Schulen sind vorhanden, etwa die privaten Nymphenburger und die Maria-Ward-Schulen sowie das Käthe-Kollwitz-Gymnasium. Hockey, Tennis, Leichtathletik, Yoga: Mehrere Sportvereine bieten ein breites Programm für die ganze Familie. Der nahe Abenteuerspielplatz, das Dante-Freibad und der Olympiapark laden zu Aktivität, Spiel und Erholung ein.
Das Stadtzentrum ist sowohl mit dem öffentlichen Nahverkehr als auch mit dem Auto schnell erreicht. Die U-Bahn Station Gern ist ca. 5 Gehminuten und die Bushaltestelle Hanebergstraße lediglich ca. 4 Gehminuten entfernt. Mit dem Auto gelangt man zügig auf den südlichen oder nördlichen Ring, von dem aus alle Autobahnen Münchens zu erreichen sind.
Sonstige Informationen
Baujahr: 2010
Energieausweistyp: Verbrauchsausweis
Befeuerung/Energieträger: Fernwärme
Energieeffizienzklasse: C
Energiekennwert: 80 kWh/(m²*a)
Heizungsart: Fernwärme
Balkon
Wohnbereich
Kueche
Kueche
Schlafzimmer
Gaestezimmer
Badezimmer
Grundriss