Exposé
Objektart:
Büro / Praxen
» Bueroflaeche
» Miete
Standort: Büro / Praxen »
Deutschland » Bayern » Oberallgäu (Kreis) » Durach
Flexible Gewerbeeinheit mit hoher Decke und Glasfront Mitgestaltung möglich Langfristige Vermietung
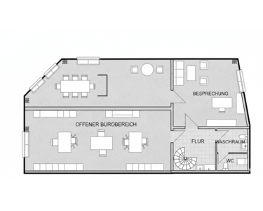
Grundriss und Konzept
Das Wichtigste auf einen Blick:
| Objektnummer: | 9427926 |
Preise
| Kaltmiete (netto) | 1.050 € |
| Nebenkosten | 100 € |
Flächen
| Gesamtfläche | 131 m² |
| Bürofläche | 131 m² |
| Maklerprovision | keine Provision, courtagefrei |
Objekt Adresse
87471 Durach
- Bayern
Sonstige Angaben
| Baujahr | 1971 |
| Verfügbar ab | nach Absprache |
| Anzahl der Etagen im Haus | 1 |
| Inserat befindet sich im Stockwerk | 0 |
| Keller | Ja |
| Energieausweistyp | Verbrauch |
| Heizungsart | Zentralheizung |
| Energieträger/Befeuerung | Öl |
Objektbeschreibung
Diese vielseitige Gewerbeeinheit mit ca. 131 Quadratmetern befindet sich in Durach und bietet außergewöhnlich viel Gestaltungsfreiheit für unterschiedlichste Nutzungskonzepte wie Büro, Agentur, Praxis, Studio oder Showroom.
Die Fläche wurde zuvor als Büro genutzt und kann aktuell auch als einfache Lager oder Abstellfläche dienen. Im Zuge der Neuvermietung ist eine Renovierung vorgesehen. Der zukünftige Mieter kann aktiv am neuen Grundriss mitwirken. Möglich sind sowohl mehrere separate Räume als auch ein großzügiger offener Bereich. Das Raumkonzept ist bewusst noch offen gehalten.
Geplant sind eine abgehängte Decke, weiße Wandflächen sowie ein moderner Vinyl Industrieboden in Eichenparkett Optik. Separate Herren und Damentoiletten sind vorhanden. Die sehr hohe Deckenhöhe verleiht der Einheit ein offenes und repräsentatives Raumgefühl.
Ein besonderes architektonisches Merkmal sind zwei komplette Außenwände aus Glas. Aktuell sind diese mit Milchglasfolie versehen und nicht einsehbar. Nach Absprache können die Glasflächen geöffnet werden und bieten dann eine sehr gute Sichtbarkeit von außen.
Zusätzlich steht im Keller ein Tresorraum zur Verfügung. Dieser ist mit einer großen originalen Tresortür ausgestattet und kann als funktionales Element oder bewusstes Highlight der Gewerbeeinheit genutzt werden. Ideal zum Beispiel für Archiv, Wertlagerung oder als außergewöhnliches Gestaltungselement.
Die Einheit kann renoviert übernommen werden oder alternativ unrenoviert zu einer günstigeren Miete, wobei der Innenausbau durch den Mieter erfolgt. Angestrebt wird eine langfristige Vermietung mit einer Laufzeit von fünf Jahren oder mehr. Wir sind offen für unterschiedliche Nutzungskonzepte und Gespräche.
Im Hinterhof befinden sich frei zugängliche Parkplätze. Die Gewerbeeinheit selbst verfügt über keinen eigenen Stellplatz, erfahrungsgemäß sind jedoch jederzeit ausreichend Parkmöglichkeiten vorhanden.
Die Fläche wurde zuvor als Büro genutzt und kann aktuell auch als einfache Lager oder Abstellfläche dienen. Im Zuge der Neuvermietung ist eine Renovierung vorgesehen. Der zukünftige Mieter kann aktiv am neuen Grundriss mitwirken. Möglich sind sowohl mehrere separate Räume als auch ein großzügiger offener Bereich. Das Raumkonzept ist bewusst noch offen gehalten.
Geplant sind eine abgehängte Decke, weiße Wandflächen sowie ein moderner Vinyl Industrieboden in Eichenparkett Optik. Separate Herren und Damentoiletten sind vorhanden. Die sehr hohe Deckenhöhe verleiht der Einheit ein offenes und repräsentatives Raumgefühl.
Ein besonderes architektonisches Merkmal sind zwei komplette Außenwände aus Glas. Aktuell sind diese mit Milchglasfolie versehen und nicht einsehbar. Nach Absprache können die Glasflächen geöffnet werden und bieten dann eine sehr gute Sichtbarkeit von außen.
Zusätzlich steht im Keller ein Tresorraum zur Verfügung. Dieser ist mit einer großen originalen Tresortür ausgestattet und kann als funktionales Element oder bewusstes Highlight der Gewerbeeinheit genutzt werden. Ideal zum Beispiel für Archiv, Wertlagerung oder als außergewöhnliches Gestaltungselement.
Die Einheit kann renoviert übernommen werden oder alternativ unrenoviert zu einer günstigeren Miete, wobei der Innenausbau durch den Mieter erfolgt. Angestrebt wird eine langfristige Vermietung mit einer Laufzeit von fünf Jahren oder mehr. Wir sind offen für unterschiedliche Nutzungskonzepte und Gespräche.
Im Hinterhof befinden sich frei zugängliche Parkplätze. Die Gewerbeeinheit selbst verfügt über keinen eigenen Stellplatz, erfahrungsgemäß sind jedoch jederzeit ausreichend Parkmöglichkeiten vorhanden.
Ausstattung
Keller
Lage des Objektes
Die Gewerbeeinheit befindet sich in Durach im Allgäu, einer wirtschaftlich starken und gut angebundenen Gemeinde südlich von Kempten. Durach zeichnet sich durch eine Mischung aus gewerblichen Nutzungen, Dienstleistungsbetrieben und Wohnbebauung aus und bietet ein solides Umfeld für langfristige Geschäftsmodelle.
Die Verkehrsanbindung ist sehr gut. Die Nähe zur Autobahn A7 sowie zur Bundesstraße B309 ermöglicht eine schnelle Erreichbarkeit von Kempten, dem Allgäu sowie Richtung Ulm und Füssen. Öffentliche Verkehrsmittel sind ebenfalls gut erreichbar.
Der Standort eignet sich sowohl für Kundenverkehr als auch für ruhige gewerbliche Nutzungen. Die Sichtbarkeit durch die Glasfassaden bietet zusätzliches Potenzial für repräsentative oder publikumsorientierte Konzepte.
Infrastruktur (im Umkreis von 5 km):
Apotheke, Lebensmittel-Discount, Öffentliche Verkehrsmittel
Die Verkehrsanbindung ist sehr gut. Die Nähe zur Autobahn A7 sowie zur Bundesstraße B309 ermöglicht eine schnelle Erreichbarkeit von Kempten, dem Allgäu sowie Richtung Ulm und Füssen. Öffentliche Verkehrsmittel sind ebenfalls gut erreichbar.
Der Standort eignet sich sowohl für Kundenverkehr als auch für ruhige gewerbliche Nutzungen. Die Sichtbarkeit durch die Glasfassaden bietet zusätzliches Potenzial für repräsentative oder publikumsorientierte Konzepte.
Infrastruktur (im Umkreis von 5 km):
Apotheke, Lebensmittel-Discount, Öffentliche Verkehrsmittel
Sonstige Informationen
Heizungsart: Zentralheizung
Energieträger: Öl
Makleranfragen nicht erwünscht. Nach § 7 UWG sind unaufgeforderte Kontaktaufnahmen durch Makler ohne ausdrückliche Einwilligung des Empfängers verboten!
ohne-makler (OM) ist weder Anbieter noch Vermittler der Immobilie. OM betreibt eine Plattform für Immobilieneigentümer, die unter anderem die gleichzeitige Veröffentlichung einzelner Inserate auf mehreren Immobilienportalen ermöglicht. Die Inhalte dieser Inserate werden ausschließlich von Dritten verantwortet. Für die Richtigkeit, Vollständigkeit oder Rechtmäßigkeit der Angaben übernimmt OM keine Haftung. Hinweise auf mögliche Rechtsverstöße können jederzeit gemeldet werden und werden nach Prüfung umgehend bearbeitet.
Möglicher Grundriss
Möglicher Büroraum
Visualisierung