Exposé
Objektart:
Haus
» Einfamilienhaus
» Kauf
Standort: Haus »
Deutschland » Bayern » Weilheim-Schongau (Kreis) » Pähl
AIGNER - Großzügiges Neubau-Einfamilienhaus mit Bergblick in Pähl
Gartenansicht
Das Wichtigste auf einen Blick:
| Objektnummer: | 9426914 |
Preise
| Kaufpreis | 1.950.000 € |
| Nebenkosten | keine Angabe |
Flächen
| Wohnfläche | 298,85 m² |
| Grundstücksfläche | 475 m² |
| Maklerprovision | 3,57% |
Objekt Adresse
82396 Pähl
Sonstige Angaben
| Baujahr | 2025 |
| Zimmer | 7,5 |
| Verfügbar ab | nach Vereinbarung / Frühjahr 2026 |
| Bad | 2 |
| Garage/Stellplätze | 1 |
| Bad | 2 |
| Garage/Stellplätze | 1 |
| Keller | Ja |
| Heizungsart | Zentralheizung |
| Energieträger/Befeuerung | Elektro |
Objektbeschreibung
Im wunderschönen Pähl präsentiert sich dieses neu errichtete Einfamilienhaus als modernes Zuhause mit außergewöhnlichem Wohnkomfort. Auf fast 300 m² Wohnfläche, verteilt über drei Etagen, vereint das Objekt großzügiges Wohnen mit einer durchdachten Architektur, die vielfältige Nutzungsmöglichkeiten eröffnet und beste Voraussetzungen für Familien oder Paare mit Platzanspruch bietet.
Durch den KfW-40-Standard erfüllt das Haus höchste Ansprüche an Energieeffizienz und sorgt zugleich für ein nachhaltiges Wohngefühl. Die hochwertige Ausstattung setzt sich in jedem Detail fort: Edles Fischgrät-Eichenparkett, Holz-Alu-Fenster mit integrierter Jalousie und viele weitere ausgewählte Materialien schaffen ein stilvolles Ambiente.
Mittelpunkt des Hauses ist der Wohn- und Essbereich mit offener Einbauküche, der dank seiner großzügigen, lichtdurchfluteten Gestaltung ein besonderes Wohngefühl vermittelt. Ein wahres Highlight hierbei ist der Zugang zur Terrasse, die einen traumhaften Weit- bzw. Bergblick eröffnet und zu entspannten Stunden im Freien einlädt.
Im EG befindet sich außerdem eine an die Küche angrenzende Abstellkammer bzw. Speis, die für praktische Ordnung im Alltag sorgt. Zusätzlich bietet ein separates Arbeitszimmer ideale Bedingungen für Homeoffice oder ruhiges, fokussiertes Arbeiten.
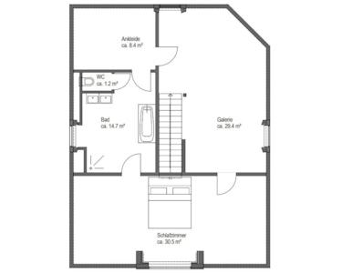
Das Dachgeschoss verfügt über ein großzügiges Schlafzimmer mit traumhaftem Weitblick sowie einer angrenzenden Ankleide. Zudem finden Sie hier ein modernes Badezimmer sowie eine große Galerie, die vielseitig genutzt werden kann.
Im Gartengeschoss befinden sich drei Schlaf-, Kinder-, bzw. Gästezimmer sowie ein Tageslicht-Badezimmer.
Die üblichen Kellerräume für Technik, Heizung, Wäsche, Vorrat sowie Hobby/Fitness sind selbstverständlich vorhanden.
Der Süd-West-Garten bietet dank seiner großzügigen Fläche reichlich Platz für Spiel, Freizeit und individuelle Gestaltungsideen.
Abgerundet wird das Angebot durch eine Einzelgarage sowie zwei Außenstellplätze.
Durch den KfW-40-Standard erfüllt das Haus höchste Ansprüche an Energieeffizienz und sorgt zugleich für ein nachhaltiges Wohngefühl. Die hochwertige Ausstattung setzt sich in jedem Detail fort: Edles Fischgrät-Eichenparkett, Holz-Alu-Fenster mit integrierter Jalousie und viele weitere ausgewählte Materialien schaffen ein stilvolles Ambiente.
Mittelpunkt des Hauses ist der Wohn- und Essbereich mit offener Einbauküche, der dank seiner großzügigen, lichtdurchfluteten Gestaltung ein besonderes Wohngefühl vermittelt. Ein wahres Highlight hierbei ist der Zugang zur Terrasse, die einen traumhaften Weit- bzw. Bergblick eröffnet und zu entspannten Stunden im Freien einlädt.
Im EG befindet sich außerdem eine an die Küche angrenzende Abstellkammer bzw. Speis, die für praktische Ordnung im Alltag sorgt. Zusätzlich bietet ein separates Arbeitszimmer ideale Bedingungen für Homeoffice oder ruhiges, fokussiertes Arbeiten.
Das Dachgeschoss verfügt über ein großzügiges Schlafzimmer mit traumhaftem Weitblick sowie einer angrenzenden Ankleide. Zudem finden Sie hier ein modernes Badezimmer sowie eine große Galerie, die vielseitig genutzt werden kann.
Im Gartengeschoss befinden sich drei Schlaf-, Kinder-, bzw. Gästezimmer sowie ein Tageslicht-Badezimmer.
Die üblichen Kellerräume für Technik, Heizung, Wäsche, Vorrat sowie Hobby/Fitness sind selbstverständlich vorhanden.
Der Süd-West-Garten bietet dank seiner großzügigen Fläche reichlich Platz für Spiel, Freizeit und individuelle Gestaltungsideen.
Abgerundet wird das Angebot durch eine Einzelgarage sowie zwei Außenstellplätze.
Ausstattung
- großzügige Terrassen mit Süd-West-Ausrichtung und Bergblick
- Süd-West-Garten
- Parkettböden
- Einbauküche
- Fußbodenheizung
- zwei Tageslichtbadezimmer
- Gäste-Toilette im EG
- Holz-Alu-Fenster mit integrierter, elektrischer Jalousie
- KfW 40
- Wärmepumpe
- Photovoltaikanlage 6kWp Leistung
- Lüftungsanlage mit Wärmerückgewinnung zum Feuchteschutz
- Netzwerkverkabelung in allen Geschossen
- Mansarddach
- Regenrückhaltebecken (als Zisterne erweiterbar)
- Einzelgarage mit Wallbox-Anschlussmöglichkeit
- zwei Außenstellplätze
- Süd-West-Garten
- Parkettböden
- Einbauküche
- Fußbodenheizung
- zwei Tageslichtbadezimmer
- Gäste-Toilette im EG
- Holz-Alu-Fenster mit integrierter, elektrischer Jalousie
- KfW 40
- Wärmepumpe
- Photovoltaikanlage 6kWp Leistung
- Lüftungsanlage mit Wärmerückgewinnung zum Feuchteschutz
- Netzwerkverkabelung in allen Geschossen
- Mansarddach
- Regenrückhaltebecken (als Zisterne erweiterbar)
- Einzelgarage mit Wallbox-Anschlussmöglichkeit
- zwei Außenstellplätze
Lage des Objektes
Pähl vereint den Charme des ländlichen Lebens im malerischen Fünfseenland und im traditionsreichen Pfaffenwinkel mit der Nähe zur Stadt sowie zu den Bergen.
Im Ort finden Sie Kindergärten, eine Grundschule, Nachmittagsbetreuung sowie verschiedene Restaurants und Bäckereien. Ein breites sportliches Angebot – vom Fußball- und Tennisverein, über Golf, bis hin zu zahlreichen Wander- und Radwegen – sorgt für vielfältige Freizeitmöglichkeiten direkt vor der Haustür. Ein großer Supermarkt mit Bäckerei und Poststelle befindet sich im nahegelegenen Ortsteil Fischen.
Weitere Geschäfte des täglichen Bedarfs, verschiedene Ärzte und weiterführende Schulen sind im 10 Minuten entfernten Weilheim vertreten.
Der Badeplatz "Aidenried Steg" ist mit dem Auto in wenigen Minuten erreichbar und wird vorwiegend von ortsansässigen Badegästen und Seglern genutzt, sodass Sie sich hier ohne großen Andrang von Seetouristen entspannen können.
Die Buslinie 9653 verbindet Pähl mit den umliegenden Ortschaften bis hin nach Herrsching und Weilheim.
Die nächste S-Bahn-Station der Linie S6 befindet sich im nur rund 12 Minuten entfernten Tutzing und ermöglicht eine Fahrt in die Münchner Innenstadt in etwa 45 Minuten. Darüber hinaus bieten die Regionalbahnen ab Weilheim (ca. 10 Minuten Fahrt) und Tutzing direkte Verbindungen nach München und Garmisch-Partenkirchen.
Auch mit dem Auto ist Pähl hervorragend erreichbar: Über die Autobahn A95 gelangen Sie in rund 45 Minuten in das Zentrum Münchens. Die Nähe zu Ammersee, Alpenrand und zahlreichen Naherholungsgebieten macht Pähl zu einem idealen Ausgangspunkt für Freizeit- und Wochenendaktivitäten.
Im Ort finden Sie Kindergärten, eine Grundschule, Nachmittagsbetreuung sowie verschiedene Restaurants und Bäckereien. Ein breites sportliches Angebot – vom Fußball- und Tennisverein, über Golf, bis hin zu zahlreichen Wander- und Radwegen – sorgt für vielfältige Freizeitmöglichkeiten direkt vor der Haustür. Ein großer Supermarkt mit Bäckerei und Poststelle befindet sich im nahegelegenen Ortsteil Fischen.
Weitere Geschäfte des täglichen Bedarfs, verschiedene Ärzte und weiterführende Schulen sind im 10 Minuten entfernten Weilheim vertreten.
Der Badeplatz "Aidenried Steg" ist mit dem Auto in wenigen Minuten erreichbar und wird vorwiegend von ortsansässigen Badegästen und Seglern genutzt, sodass Sie sich hier ohne großen Andrang von Seetouristen entspannen können.
Die Buslinie 9653 verbindet Pähl mit den umliegenden Ortschaften bis hin nach Herrsching und Weilheim.
Die nächste S-Bahn-Station der Linie S6 befindet sich im nur rund 12 Minuten entfernten Tutzing und ermöglicht eine Fahrt in die Münchner Innenstadt in etwa 45 Minuten. Darüber hinaus bieten die Regionalbahnen ab Weilheim (ca. 10 Minuten Fahrt) und Tutzing direkte Verbindungen nach München und Garmisch-Partenkirchen.
Auch mit dem Auto ist Pähl hervorragend erreichbar: Über die Autobahn A95 gelangen Sie in rund 45 Minuten in das Zentrum Münchens. Die Nähe zu Ammersee, Alpenrand und zahlreichen Naherholungsgebieten macht Pähl zu einem idealen Ausgangspunkt für Freizeit- und Wochenendaktivitäten.
Sonstige Informationen
Energiekennwert: 8,5 kWh/(m²*a)
Befeuerung/Energieträger: Strom
Energieausweistyp: Bedarfsausweis
Baujahr: 2025
Heizungsart: Wärmepumpe
Energieeffizienzklasse: A+
Flur Gartengeschoss
Schlafzimmer
Küche
Zimmer
Bad DG
Zimmer Gartengeschoss
Grundriss EG
Grundriss DG
Grundriss Gartengeschoss