Exposé
Objektart:
Wohnung
» Etage
» Miete
Standort: Wohnung »
Deutschland » Schleswig-Holstein » Lübeck, Hansestadt (Kreis) » Lübeck
3 - 4 Zimmer * 2 Balkone * sanierter Jugendstil Nähe Altstadtinsel
Heimat Lübeck
Das Wichtigste auf einen Blick:
| Objektnummer: | 9425981 |
Preise
| Kaltmiete (netto) | 1.650 € |
| Nebenkosten | 100 € |
| Kaution | 4.500 € |
Flächen
| Wohnfläche | 96 m² |
Objekt Adresse
23554 Lübeck
- Schleswig-Holstein
Sonstige Angaben
| Baujahr | 1900 |
| Zimmer | 3 |
| Verfügbar ab | 01.02.2026 |
| Bad | 1 |
| Anzahl der Etagen im Haus | 5 |
| Inserat befindet sich im Stockwerk | 1 |
| Küche | Einbauküche |
| Bad | 1 |
| Bad | Dusche |
| Boden | Parkett |
| Balkone | 1 |
| Terrassen | 0 |
| Keller | Ja |
| Energieausweistyp | Bedarfsausweis |
| Endenergiebedarf | 154 kWh/(m²*a) |
| Heizungsart | Zentralheizung |
| Energieträger/Befeuerung | Gas |
Objektbeschreibung
Außergewöhnlich!
Repräsentativer Altbau im Jugendstil - Erstbezug nach Sanierung.
Diese hübsche Villa glänzt von außen und von innen mit wunderschönen restaurierten Jugendstil-Elementen und bietet insgesamt 5 komplett neu renovierte Wohnungen.
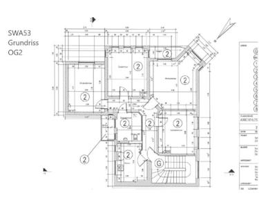
3 Wohnungen (OG1, OG2, OG3) haben einen fast identischen Schnitt und bieten 3 - 4 Zimmer (s. Grundrisse). Alle drei sind zu vermieten, jeweils zu den angegebenen Konditionen.
2 Wohnungen sind im Dachgeschoss, diese sind kleiner und werden gesondert inseriert.
Objektzustand: Erstbezug nach Sanierung
Repräsentativer Altbau im Jugendstil - Erstbezug nach Sanierung.
Diese hübsche Villa glänzt von außen und von innen mit wunderschönen restaurierten Jugendstil-Elementen und bietet insgesamt 5 komplett neu renovierte Wohnungen.
3 Wohnungen (OG1, OG2, OG3) haben einen fast identischen Schnitt und bieten 3 - 4 Zimmer (s. Grundrisse). Alle drei sind zu vermieten, jeweils zu den angegebenen Konditionen.
2 Wohnungen sind im Dachgeschoss, diese sind kleiner und werden gesondert inseriert.
Objektzustand: Erstbezug nach Sanierung
Ausstattung
Balkon, Keller, Duschbad, Einbauküche, Parkett
Bemerkungen:
Diese neuwertige Wohnung ist repräsentativ und wurde wertig ausgestattet:
Großes und sonniges Wohnzimmer mit alten Dielen, geschliffen und geölt.
Sonnenbalkon.
Kühlschrank, Spülmaschine, Heißluftofen, Induktions-Kochfeld, Dunstabzug.
Elegantes Duschbad mit kleinem Balkon.
Die Fotos sind aus der letzten Phase der Renovierung.
Bemerkungen:
Diese neuwertige Wohnung ist repräsentativ und wurde wertig ausgestattet:
Großes und sonniges Wohnzimmer mit alten Dielen, geschliffen und geölt.
Sonnenbalkon.
Kühlschrank, Spülmaschine, Heißluftofen, Induktions-Kochfeld, Dunstabzug.
Elegantes Duschbad mit kleinem Balkon.
Die Fotos sind aus der letzten Phase der Renovierung.
Lage des Objektes
Wohnen, wo andere Urlaub machen: im wunderschönen Lübeck!
Dein neues Zuhause liegt an der Schwartauer Allee, direkt vor der Altstadtinsel.
Mit dem Rad
- bist Du in unter 5 Minuten am Bahnhof oder am Holstentor.
Der Bus
- hält direkt vor der Tür.
Mit dem Auto
- in 20 Minuten am Ostsee-Strand
- in 60 Minuten in der Hamburger Innenstadt
Lübeck ist eine stolze Hansestadt mit buntem Leben auf der Altstadtinsel, unzählige Cafes und Restaurants sind zu entdecken, die Hüxstraße mit exklusiven Geschäften, wunderschön gestaltete Hauseingänge - im Sommer mit blühenden Rosen. Eine Bootstour auf der Trave, Parkanlagen, Fitnessstudios, Bars und Buchhandlungen findest Du ebenfalls nur einen kurzen Spaziergang entfernt.
Infrastruktur (im Umkreis von 5 km):
Apotheke, Lebensmittel-Discount, Allgemeinmediziner, Kindergarten, Grundschule, Hauptschule, Realschule, Gymnasium, Gesamtschule, Öffentliche Verkehrsmittel
Dein neues Zuhause liegt an der Schwartauer Allee, direkt vor der Altstadtinsel.
Mit dem Rad
- bist Du in unter 5 Minuten am Bahnhof oder am Holstentor.
Der Bus
- hält direkt vor der Tür.
Mit dem Auto
- in 20 Minuten am Ostsee-Strand
- in 60 Minuten in der Hamburger Innenstadt
Lübeck ist eine stolze Hansestadt mit buntem Leben auf der Altstadtinsel, unzählige Cafes und Restaurants sind zu entdecken, die Hüxstraße mit exklusiven Geschäften, wunderschön gestaltete Hauseingänge - im Sommer mit blühenden Rosen. Eine Bootstour auf der Trave, Parkanlagen, Fitnessstudios, Bars und Buchhandlungen findest Du ebenfalls nur einen kurzen Spaziergang entfernt.
Infrastruktur (im Umkreis von 5 km):
Apotheke, Lebensmittel-Discount, Allgemeinmediziner, Kindergarten, Grundschule, Hauptschule, Realschule, Gymnasium, Gesamtschule, Öffentliche Verkehrsmittel
Sonstige Informationen
Heizungsart: Zentralheizung
Energieträger: Gas
Wohnung OG1: alter Dielenboden, geschliffen und geölt oder lackiert.
Wohnung OG2: Designbelag Vinyl durchgängig
Wohnung OG3: wahrscheinlich auch die alten Dielen, diese Wohnung wird gerade noch renoviert und wird zum 01.03.26 fertig sein
Alle angegebenen Preise beziehen sich auf jeweils EINE Wohnung.
Makleranfragen nicht erwünscht. Nach § 7 UWG sind unaufgeforderte Kontaktaufnahmen durch Makler ohne ausdrückliche Einwilligung des Empfängers verboten!
ohne-makler (OM) ist weder Anbieter noch Vermittler der Immobilie. OM betreibt eine Plattform für Immobilieneigentümer, die unter anderem die gleichzeitige Veröffentlichung einzelner Inserate auf mehreren Immobilienportalen ermöglicht. Die Inhalte dieser Inserate werden ausschließlich von Dritten verantwortet. Für die Richtigkeit, Vollständigkeit oder Rechtmäßigkeit der Angaben übernimmt OM keine Haftung. Hinweise auf mögliche Rechtsverstöße können jederzeit gemeldet werden und werden nach Prüfung umgehend bearbeitet.
Schwartauer Allee 53
Wohnzimmer
Wohnzimmer Erker
Balkon zur Schwartauer Allee
Schlafzimmer 1
Esszimmer / Schlafzimmer 2
Schlafzimmer 3
Blick vom Schlafz3 zum Wohnz
Duschbad
Küche OG1
Küche OG2
Küche OG3
Grundriss OG1
Grundriss OG2
Grundriss OG3