Exposé
Objektart:
Haus
» Bungalow
» Kauf
Standort: Haus »
Deutschland » Niedersachsen » Peine (Kreis) » Wendenburg
++Bungalow mit Potenzial-Gestalten Sie Ihr Traumhaus- Jetzt mit Klinkeraktion!
streif-baufamilie (9)
Das Wichtigste auf einen Blick:
| Objektnummer: | 9422003 |
Preise
| Kaufpreis | 545.870,2 € |
| Nebenkosten | keine Angabe |
Flächen
| Wohnfläche | 107,43 m² |
| Nutzfläche | 25 m² |
| Grundstücksfläche | 684 m² |
Objekt Adresse
38176 Wendenburg
Sonstige Angaben
| Baujahr | 2026 |
| Zimmer | 3 |
| Verfügbar ab | 2026 |
| Bad | 2 |
| Garage/Stellplätze | 1 |
| Anzahl der Etagen im Haus | 1 |
| Küche | Offene Küche |
| Bad | 2 |
| Bad | Dusche, Wanne, Fenster |
| Boden | Fliesen, Laminat |
| Terrassen | 1 |
| Barrierefrei | |
| Garage/Stellplätze | 1 |
| Energietyp | KfW-40 |
| Heizungsart | Zentralheizung |
| Energieträger/Befeuerung | Luft-Wärme-Pumpe |
Objektbeschreibung
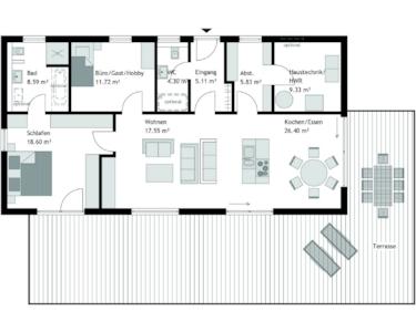
Willkommen zu Ihrem neuen Zuhause in Wendenburg / Neubrück - ein exklusiver Bungalow, der nach Ihren individuellen Wünschen projektiert wird. Mit einer großzügigen Wohnfläche von 107,43 m² und einem weitläufigen Grundstück von 688 m² bietet dieser Bungalow den idealen Raum für Ihre Träume. Der durchdachte Grundriss umfasst 3,0 Zimmer, darunter zwei komfortable Schlafzimmer und zwei luxuriöse Badezimmer, die mit Dusche, Wanne und Fenster ausgestattet sind. Ein zusätzliches Gäste-WC sorgt für noch mehr Komfort. Mit nur einer Etage ist dieser Bungalow perfekt für Menschen jeden Alters geeignet und ermöglicht barrierefreies Wohnen in einem modernen und stilvollen Umfeld.
Ausstattung
Die Ausstattung dieses Bungalows ist gehoben und besticht durch hochwertige Bodenbeläge aus Fliesen und Laminat - auf Wunsch können auch individuelle Bodenwünsche berücksichtigt werden. Diese Materialien sind nicht nur pflegeleicht und langlebig, sondern verleihen Ihrem Zuhause auch eine zeitlose Eleganz. Die Wärmepumpe als Befeuerungsart sorgt für eine umweltfreundliche und effiziente Energieversorgung, die den KFW40 Standard erfüllt. Das bedeutet für Sie niedrige Energiekosten bei gleichzeitig hohem Wohnkomfort.
Lage des Objektes
Dieser traumhafte Bungalow befindet sich in einem ruhigen Wohngebiet von Wendenburg / Neubrück. Die Umgebung bietet alles, was das Herz begehrt: Einkaufsmöglichkeiten, einen Kindergarten sowie einen Spielplatz für die Kleinen. Hier können Sie die Ruhe genießen und sind dennoch bestens an die Infrastruktur angebunden.
Sonstige Informationen
Achtung: Klinkeraktion ist verlängert!
STREIF Haus - der Pionier der deutschen Fertighausbranche
Die langjährige Firmentradition des Unternehmens reicht bis in das Jahr 1929 zurück. In den 50er und 60er Jahren wurde in Deutschland schnell und viel Wohnraum für Familien benötigt, seitdem konzentrierte sich das Unternehmen auf die Entwicklung und Produktion von Fertighaustypen, die im Werk in großen Stückzahlen hergestellt werden konnten. So kann das Unternehmen auf 90.000 gebaute Hausobjekte zurückblicken und sich zu Recht als Pionier der deutschen Fertighausbranche bezeichnen.
Die neuen Energiesparhäuser - So baut man heute.
Unser Anspruch ist es, in enger Partnerschaft mit unseren Kunden langlebige Häuser zu bauen, mit einer hohen architektonischen Qualität, individuell geplant und dabei energieeffizient und ressourcenschonend. Jedes STREIF-Haus ist einzigartig und wird speziell für jeden Kunden "maßgeschneidert" und gebaut. Passend zu den persönlichen Wünschen, dem vorgegebenen Budget und dem vorhandenen Grundstück planen und bauen wir jedes Haus mit viel Liebe zum Detail.
kueche-essen (6)
wohnzimmer (2)
schlafzimmer (13)
kinderzimmer (9)
Bad (1660 web)
Focus-Money-2025-Fairste-Produktleistung
Screenshot (246)
BMF-Übereinstimmungszertifikat
focus-money-5-jahre-faister-fertighausanbieter-605x456px
Zertifikat Nachhaltiges Bauen
Weblogo 2024 5350180982 STREIF Haus GmbH
Tüv
Focus-Money-2025-Fairste-Kundenberatung
bicycle-1867046 340
Focus-Money-2025-12-Jahre-Fairster-Fertighausanbieter
people-2572965 1280
Focus-Money-2025-Fairster-Fertighaus-Anbieter
QR-Code