Exposé
Objektart:
Einzelhandel
» Ladenlokal
» Miete
Standort: Einzelhandel »
Deutschland » Niedersachsen » Emsland (Kreis) » Lingen
Ladenlokal in 1A Lage von Lingen
Außenfassade
Das Wichtigste auf einen Blick:
| Objektnummer: | 9420217 |
Preise
| Kaltmiete (netto) | 3.500 € |
| Nebenkosten | 300 € |
| Kaution | 10.500 € |
Flächen
| Gesamtfläche | 185,12 m² |
| Maklerprovision | keine Provision, courtagefrei |
Objekt Adresse
Lookenstraße 7
49808 Lingen
- Niedersachsen
Sonstige Angaben
| Verfügbar ab | 01.07.2026 |
| Anzahl der Etagen im Haus | 2 |
| Energieausweistyp | Bedarfsausweis |
| Endenergiebedarf | 130 kWh/(m²*a) |
Objektbeschreibung
Attraktives Ladenlokal in bester Innenstadtlage von Lingen
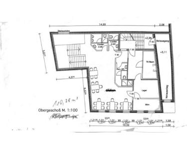
Dieses vielseitig nutzbare Ladenlokal befindet sich in erstklassiger Lage direkt in der Fußgängerzone der Lingener Innenstadt und bietet optimale Voraussetzungen für eine erfolgreiche Geschäftstätigkeit. Die Immobilie erstreckt sich über zwei Ebenen mit einer repräsentativen Verkaufsfläche im Erdgeschoss (ca. 74,74 m²) sowie zusätzlichen, flexibel nutzbaren Flächen im Obergeschoss (ca. 110,38 m²).
Im Obergeschoss sind drei Sanitärbereiche vorhanden (Damen-WC, Herren-WC sowie ein zusätzliches Badezimmer, das sanierungsbedürftig ist). Das Objekt verfügt über keinen Aufzug und Keller; eigene Stellplätze sind nicht vorhanden. Die Räumlichkeiten eignen sich ideal für Einzelhandel, bei Bedarf auch für Gastronomiekonzepte. Die zentrale Lage garantiert hohe Passantenfrequenz und beste Sichtbarkeit.
Dieses vielseitig nutzbare Ladenlokal befindet sich in erstklassiger Lage direkt in der Fußgängerzone der Lingener Innenstadt und bietet optimale Voraussetzungen für eine erfolgreiche Geschäftstätigkeit. Die Immobilie erstreckt sich über zwei Ebenen mit einer repräsentativen Verkaufsfläche im Erdgeschoss (ca. 74,74 m²) sowie zusätzlichen, flexibel nutzbaren Flächen im Obergeschoss (ca. 110,38 m²).
Im Obergeschoss sind drei Sanitärbereiche vorhanden (Damen-WC, Herren-WC sowie ein zusätzliches Badezimmer, das sanierungsbedürftig ist). Das Objekt verfügt über keinen Aufzug und Keller; eigene Stellplätze sind nicht vorhanden. Die Räumlichkeiten eignen sich ideal für Einzelhandel, bei Bedarf auch für Gastronomiekonzepte. Die zentrale Lage garantiert hohe Passantenfrequenz und beste Sichtbarkeit.
Lage des Objektes
Das Ladenlokal befindet sich in bester Innenstadtlage in der Lookenstraße 7 in Lingen (Ems), direkt in der Fußgängerzone. Die Umgebung ist geprägt von einem lebendigen Mix aus Einzelhandel, Gastronomie und Dienstleistungen und zählt zu den gefragtesten Einkaufsstraßen der Stadt. Die zentrale Lage sorgt für eine sehr hohe Passantenfrequenz, kurze Wege zu weiteren Einkaufsmöglichkeiten sowie eine hervorragende Erreichbarkeit. Durch die Nähe zu beliebten Treffpunkten und Einkaufsbereichen bietet der Standort optimale Voraussetzungen für eine nachhaltige Geschäftsentwicklung.
Sonstige Informationen
Makleranfragen nicht erwünscht. Nach § 7 UWG sind unaufgeforderte Kontaktaufnahmen durch Makler ohne ausdrückliche Einwilligung des Empfängers verboten!
ohne-makler (OM) ist weder Anbieter noch Vermittler der Immobilie. OM betreibt eine Plattform für Immobilieneigentümer, die unter anderem die gleichzeitige Veröffentlichung einzelner Inserate auf mehreren Immobilienportalen ermöglicht. Die Inhalte dieser Inserate werden ausschließlich von Dritten verantwortet. Für die Richtigkeit, Vollständigkeit oder Rechtmäßigkeit der Angaben übernimmt OM keine Haftung. Hinweise auf mögliche Rechtsverstöße können jederzeit gemeldet werden und werden nach Prüfung umgehend bearbeitet.
Verkaufsfläche EG
Verkaufsfläche EG
Verkaufsfläche EG
Verkaufsfläche EG
Zugang zum OG hinten links
Treppenhaus
Treppenhaus
Treppenhaus
Nebenfläche OG
Oberlicht Treppenhaus
Treppenhaus
Nebenfläche OG
Nebenfläche OG
Nebenfläche OG
Nebenraum OG
Nebenraum OG
Badezimmer OG
WC Damen OG
WC Damen OG
WC Herren OG
WC Herren OG
Grundriss EG (linke Seite)
Grundriss OG