Exposé
Objektart:
Wohnung
» Etage
» Kauf
Standort: Wohnung »
Deutschland » Nordrhein-Westfalen » Essen, Stadt (Kreis) » Essen
Sanierte DG-Wohnung + Nutzfläche im Spitzboden
Schlafzimmer
Das Wichtigste auf einen Blick:
| Objektnummer: | 9419553 |
Preise
| Kaufpreis | 209.000 € |
| Nebenkosten | keine Angabe |
| Hausgeld | 200 € |
Flächen
| Wohnfläche | 73 m² |
| Maklerprovision | keine Provision, courtagefrei |
Objekt Adresse
45131 Essen
- Nordrhein-Westfalen
Sonstige Angaben
| Baujahr | 1953 |
| Zimmer | 2,5 |
| Verfügbar ab | sofort |
| Bad | 1 |
| Inserat befindet sich im Stockwerk | 3 |
| Bad | 1 |
| Bad | Dusche |
| Boden | Fliesen, Kunststoff |
| Energieausweistyp | Bedarfsausweis |
| Energieeffizienzklasse | D |
| Endenergiebedarf | 124 kWh/(m²*a) |
| Heizungsart | Zentralheizung |
| Energieträger/Befeuerung | Fernwärme |
Objektbeschreibung
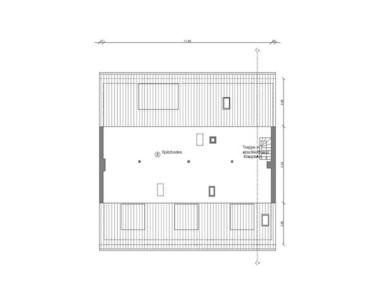
Sofort einziehen und wohlfühlen! Moderne 2,5-Zimmer-Wohnung (48qm) mit hochwertiger Ausstattung, moderner Heizung und zusätzlicher Spitzbodenfläche (25qm).
**Bitte geben Sie bei der Anfrage Ihren kompletten Namen/Telefonnummer an und lesen Sie die komplette Objektbeschreibung**
Zum Verkauf steht eine hochwertig modernisierte Dachgeschosswohnung in einem kleinen und äußerst gepflegten Mehrfamilienhaus mit nur sieben Parteien in der Wusthoffstraße im beliebten Stadtteil Essen-Rüttenscheid.
Die komplette Elektrik sowie das Badezimmer wurden erneuert, die Wände sind glatt auf Q3-Standard gespachtelt und sorgen in Verbindung mit dem stimmigen Gesamtkonzept für einen klaren, modernen Wohncharakter. Die Immobilie ist bezugsfertig, ein sofortiges Einziehen oder eine direkte Neuvermietung ist problemlos möglich.
Ein besonderes Highlight dieser Wohnung ist die zusätzlich im Kaufpreis enthaltene Spitzbodenfläche. Diese verfügt über eine Grundfläche von ca. 55 m² und eine anrechenbare Nutzfläche von ca. 25 m² (nach Abzug der Dachschrägen). Die Fläche ist bereits gedämmt und mit drei neuen, großformatigen Velux-Dachflächenfenstern ausgestattet, wodurch sie außergewöhnlich hell und freundlich wirkt.
Die Nutzfläche bietet dem Käufer vielfältige individuelle Nutzungsmöglichkeiten, etwa als Arbeits-, Hobby- oder Stauraum. Ein Ausbau und eine Nutzung sind im Rahmen der baulichen und rechtlichen Gegebenheiten denkbar. Der Zugang zur abschließbaren Spitzbodenfläche erfolgt über eine eigene Treppe aus dem Hausflur heraus.
Die Wohnung selbst verfügt über eine Wohnfläche von ca. 48 m², ergänzt durch die oben genannte Nutzfläche von ca. 25 m².
Das Gebäude befindet sich in einem sehr ordentlichen und gepflegten Gesamtzustand. Sämtliche Allgemeinflächen wurden renoviert und hell sowie zeitgemäß gestaltet. Die zentrale Fernwärmeheizung, installiert im Jahr 2019, sorgt für eine effiziente und komfortable Wärmeversorgung. In Kombination mit dem gedämmten Dach befindet sich das Objekt energetisch auf einem soliden Stand; der Energieausweis weist die Energieeffizienzklasse D aus.
Die Wohnung eignet sich gleichermaßen für Eigennutzer wie auch Kapitalanleger und überzeugt durch ihre Kombination aus hochwertiger Modernisierung, zusätzlicher Nutzfläche und gepflegtem Hausumfeld in einer der gefragtesten Lagen Essens.
Objektzustand: Erstbezug nach Sanierung
**Bitte geben Sie bei der Anfrage Ihren kompletten Namen/Telefonnummer an und lesen Sie die komplette Objektbeschreibung**
Zum Verkauf steht eine hochwertig modernisierte Dachgeschosswohnung in einem kleinen und äußerst gepflegten Mehrfamilienhaus mit nur sieben Parteien in der Wusthoffstraße im beliebten Stadtteil Essen-Rüttenscheid.
Die komplette Elektrik sowie das Badezimmer wurden erneuert, die Wände sind glatt auf Q3-Standard gespachtelt und sorgen in Verbindung mit dem stimmigen Gesamtkonzept für einen klaren, modernen Wohncharakter. Die Immobilie ist bezugsfertig, ein sofortiges Einziehen oder eine direkte Neuvermietung ist problemlos möglich.
Ein besonderes Highlight dieser Wohnung ist die zusätzlich im Kaufpreis enthaltene Spitzbodenfläche. Diese verfügt über eine Grundfläche von ca. 55 m² und eine anrechenbare Nutzfläche von ca. 25 m² (nach Abzug der Dachschrägen). Die Fläche ist bereits gedämmt und mit drei neuen, großformatigen Velux-Dachflächenfenstern ausgestattet, wodurch sie außergewöhnlich hell und freundlich wirkt.
Die Nutzfläche bietet dem Käufer vielfältige individuelle Nutzungsmöglichkeiten, etwa als Arbeits-, Hobby- oder Stauraum. Ein Ausbau und eine Nutzung sind im Rahmen der baulichen und rechtlichen Gegebenheiten denkbar. Der Zugang zur abschließbaren Spitzbodenfläche erfolgt über eine eigene Treppe aus dem Hausflur heraus.
Die Wohnung selbst verfügt über eine Wohnfläche von ca. 48 m², ergänzt durch die oben genannte Nutzfläche von ca. 25 m².
Das Gebäude befindet sich in einem sehr ordentlichen und gepflegten Gesamtzustand. Sämtliche Allgemeinflächen wurden renoviert und hell sowie zeitgemäß gestaltet. Die zentrale Fernwärmeheizung, installiert im Jahr 2019, sorgt für eine effiziente und komfortable Wärmeversorgung. In Kombination mit dem gedämmten Dach befindet sich das Objekt energetisch auf einem soliden Stand; der Energieausweis weist die Energieeffizienzklasse D aus.
Die Wohnung eignet sich gleichermaßen für Eigennutzer wie auch Kapitalanleger und überzeugt durch ihre Kombination aus hochwertiger Modernisierung, zusätzlicher Nutzfläche und gepflegtem Hausumfeld in einer der gefragtesten Lagen Essens.
Objektzustand: Erstbezug nach Sanierung
Ausstattung
Duschbad, Fliesen
Lage des Objektes
Die Wusthoffstraße liegt im beliebten Essener Stadtteil Essen-Rüttenscheid und verbindet ruhiges Wohnen mit urbaner Nähe. Für Rüttenscheid außergewöhnlich ruhig gelegen, erreicht man dennoch in wenigen Gehminuten die lebendige Rüttenscheider Straße mit ihren zahlreichen Cafés, Restaurants und Einkaufsmöglichkeiten. Auch das bekannte Girardet-Haus ist fußläufig schnell erreichbar.
Ein besonderes Plus: Direkt in der Straße hat kürzlich ein modernes, sehr angesagtes Café eröffnet, das den urbanen und gleichzeitig entspannten Charakter der Lage unterstreicht.
Die Anbindung an den öffentlichen Nahverkehr ist hervorragend, sodass sowohl die Essener Innenstadt als auch weitere Stadtteile schnell und bequem erreichbar sind. Gleichzeitig ist man in kurzer Zeit im Grünen, etwa im Essener Stadtwald, der ideale Möglichkeiten für Spaziergänge, Sport und Erholung bietet.
Mehrere Neubau- und Entwicklungsprojekte in der näheren Umgebung zeigen zudem, dass sich diese Mikrolage weiterhin positiv entwickelt und langfristig an Attraktivität gewinnt. Eine Lage, die urbanes Leben, Ruhe und nachhaltige Wertstabilität auf überzeugende Weise vereint.
Infrastruktur (im Umkreis von 5 km):
Apotheke, Lebensmittel-Discount, Allgemeinmediziner, Kindergarten, Grundschule, Realschule, Gymnasium, Gesamtschule, Öffentliche Verkehrsmittel
Ein besonderes Plus: Direkt in der Straße hat kürzlich ein modernes, sehr angesagtes Café eröffnet, das den urbanen und gleichzeitig entspannten Charakter der Lage unterstreicht.
Die Anbindung an den öffentlichen Nahverkehr ist hervorragend, sodass sowohl die Essener Innenstadt als auch weitere Stadtteile schnell und bequem erreichbar sind. Gleichzeitig ist man in kurzer Zeit im Grünen, etwa im Essener Stadtwald, der ideale Möglichkeiten für Spaziergänge, Sport und Erholung bietet.
Mehrere Neubau- und Entwicklungsprojekte in der näheren Umgebung zeigen zudem, dass sich diese Mikrolage weiterhin positiv entwickelt und langfristig an Attraktivität gewinnt. Eine Lage, die urbanes Leben, Ruhe und nachhaltige Wertstabilität auf überzeugende Weise vereint.
Infrastruktur (im Umkreis von 5 km):
Apotheke, Lebensmittel-Discount, Allgemeinmediziner, Kindergarten, Grundschule, Realschule, Gymnasium, Gesamtschule, Öffentliche Verkehrsmittel
Sonstige Informationen
Heizungsart: Zentralheizung
Energieträger: Fernwärme
Impressum:
Steigerhaus Immobilien GmbH
Erlenhagen 9
45359 Essen
Deutschland
E-Mail: info@steigerhaus-immo.de
Vertreten durch:
Niklas Schrepper, Geschäftsführer
Registereintrag:
Eingetragen im Handelsregister
Registergericht: Amtsgericht Essen
Registernummer: HRB 37074
Sitz der Gesellschaft:
Essen
Inhaltlich verantwortlich gemäß § 18 Abs. 2 MStV:
Niklas Schrepper
Erlenhagen 9
45359 Essen
Makleranfragen nicht erwünscht. Nach § 7 UWG sind unaufgeforderte Kontaktaufnahmen durch Makler ohne ausdrückliche Einwilligung des Empfängers verboten!
ohne-makler (OM) ist weder Anbieter noch Vermittler der Immobilie. OM betreibt eine Plattform für Immobilieneigentümer, die unter anderem die gleichzeitige Veröffentlichung einzelner Inserate auf mehreren Immobilienportalen ermöglicht. Die Inhalte dieser Inserate werden ausschließlich von Dritten verantwortet. Für die Richtigkeit, Vollständigkeit oder Rechtmäßigkeit der Angaben übernimmt OM keine Haftung. Hinweise auf mögliche Rechtsverstöße können jederzeit gemeldet werden und werden nach Prüfung umgehend bearbeitet.
Wohnzimmer
Badezimmer
Flur zur Küche/Bad
Küche mit Essecke
Details
Schlafzimmer
Zugang Wohnung/Spitzboden
Spitzboden
Hausflur
Hausansicht
Wohnung Nr. 7
Spitzboden