Exposé
Objektart:
Haus
» Reihenmittel
» Kauf
Standort: Haus »
Deutschland » Sachsen » Döbeln (Kreis) » Roßwein
Reihenmittelhaus in Roßwein
Reihenmittelhaus
Angeboten von:
Marko Künne Immobilien
Käthe-Kollwitz-Str. 58c
04109 Leipzig
Deutschland
Telefon:+49(0)341-4429566
Fax:+49(0)341-2253930
www.kuenne-immobilien.de
| Telefon: | 0341 442 9566 |
| Fax: | 0341 2253930 |
Das Wichtigste auf einen Blick:
| Objektnummer: | 9418782 |
Preise
| Kaufpreis | 225.000 € |
| Nebenkosten | keine Angabe |
| Kaufpreis pro m² | 1835 € |
Flächen
| Wohnfläche | 122,61 m² |
| Nutzfläche | 129,24 m² |
| Grundstücksfläche | 190 m² |
| Maklerprovision | 8.032,50 € |
Objekt Adresse
04741 Roßwein
- Sachsen
Sonstige Angaben
| Baujahr | 1907 |
| Letzte Modernisierung | 2023 |
| Zimmer | 4 |
| Verfügbar ab | sofort |
| Bad | 3 |
| Anzahl der Etagen im Haus | 3 |
| Bad | 3 |
| Bad | Dusche, Wanne, Fenster |
| Boden | Laminat |
| Balkone | 1 |
| Garten | Ja |
| Energieausweistyp | Verbrauch |
| Ausstellungsdatum | 29. 09. 2022 |
| Gültig bis | 28.09.2032 |
| Energieeffizienzklasse | F |
| Heizungsart | Zentralheizung |
| Wesentlicher Energieträger | Erdgas Schwer |
Objektbeschreibung
Bei dem Immobilienangebot handelt es sich um ein Reihenmittelhaus in Roßwein.
Die Immobilie wurde 2022 & 2023 komplett saniert und renoviert.
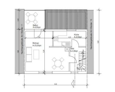
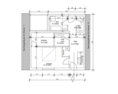
Das Reihenmittelhaus hat 4 Zimmer, 2 Badezimmer und ein Gäste-WC - verteilt auf 122,61 m² Wohnfläche und 3 Etagen.
Im Laufe der Sanierungstätigkeiten wurden die folgenden Dinge erneuert:
- Dach & Dachfenster
- Heizanlage
- Dämmung (Innen & Außen)
- Heizkörper
- Bodenbelag (Laminat & Fließen)
- Fenster
- Sanitäranlagen
- Balkon
- Elektrik
- Grundrissanpassung
Die Immobilie ist seit dem 01.04.23 neu vermietet.
Bei Fragen zur Immobilie stehen wir Ihnen jederzeit zur Verfügung.
* Alle Angaben in den Exposés sind ohne Gewähr und basieren ausschließlich auf Informationen, die uns von unserem jeweiligen Auftraggeber übermittelt wurden.
" frisch, engagiert, solide "
Die Künne Immobilien Gruppe ist professioneller Dienstleister der Immobilienbranche und steht Ihnen in den Bereichen Projektentwicklung, Verkauf, Vermietung, Verwaltung und Facility Management zur Verfügung.
Für weitere Informationen und Einblicke besuchen Sie unsere Homepage: www.kuenne-gruppe.de Sie wollen Ihre Immobilie verkaufen? Egal ob Mehrfamilien- oder Einfamilienhaus, Eigentumswohnung, Grundstück oder Neubau- bzw. Bauträgerprojekt. Wir vermitteln kompetent, transparent und zügig Ihre Immobilie, bundesweit.
Die Immobilie wurde 2022 & 2023 komplett saniert und renoviert.
Das Reihenmittelhaus hat 4 Zimmer, 2 Badezimmer und ein Gäste-WC - verteilt auf 122,61 m² Wohnfläche und 3 Etagen.
Im Laufe der Sanierungstätigkeiten wurden die folgenden Dinge erneuert:
- Dach & Dachfenster
- Heizanlage
- Dämmung (Innen & Außen)
- Heizkörper
- Bodenbelag (Laminat & Fließen)
- Fenster
- Sanitäranlagen
- Balkon
- Elektrik
- Grundrissanpassung
Die Immobilie ist seit dem 01.04.23 neu vermietet.
Bei Fragen zur Immobilie stehen wir Ihnen jederzeit zur Verfügung.
* Alle Angaben in den Exposés sind ohne Gewähr und basieren ausschließlich auf Informationen, die uns von unserem jeweiligen Auftraggeber übermittelt wurden.
" frisch, engagiert, solide "
Die Künne Immobilien Gruppe ist professioneller Dienstleister der Immobilienbranche und steht Ihnen in den Bereichen Projektentwicklung, Verkauf, Vermietung, Verwaltung und Facility Management zur Verfügung.
Für weitere Informationen und Einblicke besuchen Sie unsere Homepage: www.kuenne-gruppe.de Sie wollen Ihre Immobilie verkaufen? Egal ob Mehrfamilien- oder Einfamilienhaus, Eigentumswohnung, Grundstück oder Neubau- bzw. Bauträgerprojekt. Wir vermitteln kompetent, transparent und zügig Ihre Immobilie, bundesweit.
Lage des Objektes
Roßwein ist eine Kleinstadt mit gut 7.000 Einwohnern. Sie liegt etwa 50 km westlich von Dresden im Landkreis Mittelsachsen mit einer guten Verkehrsanbindung nach Dresden, Leipzig und Chemnitz.
Die zentrale Lage lockt gerade junge Familien aber auch Unternehmen aus den Ballungsgebieten in die Kleinstadt. Die adäquaten Kosten des Wohnraums und der Gewerbegebiete, sowie diverse Angebote und Einrichtungen in den Bereichen Familien, Gesundheit, Freizeit, Bildung, Tourismus, Kultur und Wirtschaft ziehen immer mehr Menschen nach Roßwein.
Die zentrale Lage lockt gerade junge Familien aber auch Unternehmen aus den Ballungsgebieten in die Kleinstadt. Die adäquaten Kosten des Wohnraums und der Gewerbegebiete, sowie diverse Angebote und Einrichtungen in den Bereichen Familien, Gesundheit, Freizeit, Bildung, Tourismus, Kultur und Wirtschaft ziehen immer mehr Menschen nach Roßwein.
Reihenmittelhaus
Neues Dach
Wohnraum mit Zugang zum Balkon
Treppenaufgang
Diele
Schlafzimmer
Schlafzimmer
Schlafzimmer
Gäste WC mit Dusche
WC
Badezimmer
Balkon
Hauswirtschaftsraum
Grundriss Erdgeschoss
Grundriss 1 OG
Grundriss Dachgeschoss