Exposé
Objektart:
Büro / Praxen
» Bueroflaeche
» Miete
Standort: Büro / Praxen »
Deutschland » Baden-Württemberg » Enzkreis (Kreis) » Mühlacker
Zentrale Gewerbefläche ca. 50 m² | Büro – Praxis – Einzelhandel | provisionsfrei
So könnte Ihr Büro aussehen
Das Wichtigste auf einen Blick:
| Objektnummer: | 9418340 |
Preise
| Kaltmiete (netto) | 550 € |
| Nebenkosten | 150 € |
| Heizkosten enthalten | Ja |
| Kaution | 1.650 € |
Flächen
| Gesamtfläche | 50 m² |
| Bürofläche | 50 m² |
| Maklerprovision | keine Provision, courtagefrei |
Objekt Adresse
Rathausplatz 3
75417 Mühlacker
- Baden-Württemberg
Sonstige Angaben
| Baujahr | 1960 |
| Verfügbar ab | nach Absprache |
| Anzahl der Etagen im Haus | 3 |
| Inserat befindet sich im Stockwerk | 0 |
| Energieausweistyp | Bedarfsausweis |
| Heizungsart | Zentralheizung |
| Energieträger/Befeuerung | Gas |
Objektbeschreibung
Attraktive Gewerbefläche mit Schaufensterfront – ideal für Ihr Business mitten im Ort.
Die ca. 50 m² große Gewerbefläche befindet sich im Erdgeschoss eines Gebäudes aus dem Baujahr 1960 in zentraler Lage von Mühlacker-Enzberg.
Die Einheit besteht aus einem großzügigen Raum mit kompletter Schaufensterfront und eignet sich ideal für Büro, Praxis, Kosmetikstudio, Ausstellungsraum oder ruhigen Einzelhandel.
Ein WC ist vorhanden und für die Nutzung durch Personal geeignet. Die Fläche ist nicht barrierefrei und verfügt über keine Klimaanlage.
Öffentliche Parkmöglichkeiten befinden sich in unmittelbarer Nähe. Die Heizkosten sind in den Nebenkosten enthalten.
Die Gewerbefläche ist ab dem 01.02.2026 verfügbar und wird provisionsfrei vermietet.
Die ca. 50 m² große Gewerbefläche befindet sich im Erdgeschoss eines Gebäudes aus dem Baujahr 1960 in zentraler Lage von Mühlacker-Enzberg.
Die Einheit besteht aus einem großzügigen Raum mit kompletter Schaufensterfront und eignet sich ideal für Büro, Praxis, Kosmetikstudio, Ausstellungsraum oder ruhigen Einzelhandel.
Ein WC ist vorhanden und für die Nutzung durch Personal geeignet. Die Fläche ist nicht barrierefrei und verfügt über keine Klimaanlage.
Öffentliche Parkmöglichkeiten befinden sich in unmittelbarer Nähe. Die Heizkosten sind in den Nebenkosten enthalten.
Die Gewerbefläche ist ab dem 01.02.2026 verfügbar und wird provisionsfrei vermietet.
Ausstattung
Bemerkungen:
• ca. 50 m² Nutzfläche
• 1 großer Raum mit Schaufensterfront
• Geeignet für Büro, Praxis, Einzelhandel, Kosmetik etc.
• WC vorhanden (praktisch für Personal)
• Vinylbodenbelag
• Barrierefrei: Nein
• Heizkosten bereits in den Nebenkosten enthalten
• keine Klimaanlage (Mieter kann selbst beauftragen)
• Energieausweis: Verbrauchsausweis, Gas, Energiekennwert 188,1 (E), Baujahr ca. 1960
Lage des Objektes
Die Fläche liegt im Ortskern von Mühlacker-Enzberg (75417)
Sie befindet sich fußläufig zu Haltestellen des öffentlichen Nahverkehrs, darunter der Bahnhof Enzberg (3min), was sowohl für Mitarbeitende als auch Kunden eine gute Erreichbarkeit ermöglicht.
Öffentliche Parkplätze sind in der Nähe vorhanden, ebenso ist die Fläche gut über die regionale Straßenanbindung erreichbar. Die Nachbarschaft ist geprägt von gemischter Nutzung aus Gewerbe (Bäckerei, Pizzeria, Bistro, Post), Dienstleistung und Wohnbebauung, wodurch eine attraktive Miet- und Kundendynamik entsteht.
Infrastruktur (im Umkreis von 5 km):
Lebensmittel-Discount, Kindergarten, Grundschule, Öffentliche Verkehrsmittel
Sie befindet sich fußläufig zu Haltestellen des öffentlichen Nahverkehrs, darunter der Bahnhof Enzberg (3min), was sowohl für Mitarbeitende als auch Kunden eine gute Erreichbarkeit ermöglicht.
Öffentliche Parkplätze sind in der Nähe vorhanden, ebenso ist die Fläche gut über die regionale Straßenanbindung erreichbar. Die Nachbarschaft ist geprägt von gemischter Nutzung aus Gewerbe (Bäckerei, Pizzeria, Bistro, Post), Dienstleistung und Wohnbebauung, wodurch eine attraktive Miet- und Kundendynamik entsteht.
Infrastruktur (im Umkreis von 5 km):
Lebensmittel-Discount, Kindergarten, Grundschule, Öffentliche Verkehrsmittel
Sonstige Informationen
Heizungsart: Zentralheizung
Energieträger: Gas
Makleranfragen nicht erwünscht. Nach § 7 UWG sind unaufgeforderte Kontaktaufnahmen durch Makler ohne ausdrückliche Einwilligung des Empfängers verboten!
ohne-makler (OM) ist weder Anbieter noch Vermittler der Immobilie. OM betreibt eine Plattform für Immobilieneigentümer, die unter anderem die gleichzeitige Veröffentlichung einzelner Inserate auf mehreren Immobilienportalen ermöglicht. Die Inhalte dieser Inserate werden ausschließlich von Dritten verantwortet. Für die Richtigkeit, Vollständigkeit oder Rechtmäßigkeit der Angaben übernimmt OM keine Haftung. Hinweise auf mögliche Rechtsverstöße können jederzeit gemeldet werden und werden nach Prüfung umgehend bearbeitet.
Ab sofort zu vermieten
Das Gebäude von außen
Treppenaufgang mit Schiebetür
Viel Platz zur Gestaltung
Visualisierung
Aktuell
hochwertiger Vinylboden
Empfangsbereich möglich
Visualisierung
Nebeneingang
Große Schaufensterfront
Die Aussicht nach draußen
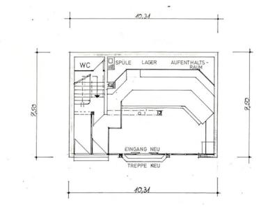
Grundriss Gewerbefläche