Exposé
Objektart:
Büro / Praxen
» Bueroflaeche
» Miete
Standort: Büro / Praxen »
Deutschland » Nordrhein-Westfalen » Düsseldorf, Stadt (Kreis) » Düsseldorf
Düsseldorf-Stadtmitte | Hochwertige Büroflächen mit Tiefgarage & Terrasse | Neubau
Außenaufnahme 1
Das Wichtigste auf einen Blick:
| Objektnummer: | 9417727 |
Preise
| Nebenkosten | keine Angabe |
| Mietpreis pro m² | 33 € |
Flächen
| Gesamtfläche | 431 m² |
| Bürofläche | 431 m² |
| Maklerprovision | Dieses Angebot ist provisionspflichtig für den Mieter. |
Objekt Adresse
40213 Düsseldorf
- Nordrhein-Westfalen
Sonstige Angaben
| Verfügbar ab | nach Vereinbarung |
| Inserat befindet sich im Stockwerk | 3 |
Objektbeschreibung
Die Immobilie befindet sich an einer der prominentesten und repräsentativsten Lagen Düsseldorfs und ist bereits realisiert. Der Standort verbindet die Innenstadt mit dem renommierten Wohnviertel auf der gegenüberliegenden Rheinseite und liegt in unmittelbarer Nähe zur Altstadt, zum Bankenviertel sowie zur Königsallee – einer der bekanntesten und meistfrequentierten Einkaufsstraßen Deutschlands.
Das Gebäude bietet hochwertig ausgestattete, moderne Büroflächen in einem architektonisch zeitlosen Objekt. Die klare Formensprache und die hochwertige Bauweise fügen sich harmonisch in die bestehende Umgebungsbebauung ein und tragen zur nachhaltigen Aufwertung des Mikrostandorts bei.
Das Gebäude bietet hochwertig ausgestattete, moderne Büroflächen in einem architektonisch zeitlosen Objekt. Die klare Formensprache und die hochwertige Bauweise fügen sich harmonisch in die bestehende Umgebungsbebauung ein und tragen zur nachhaltigen Aufwertung des Mikrostandorts bei.
Lage des Objektes
Der Projektstandort bietet durch seine zentrale Lage, die fußläufige Entfernung zum Hofgarten, seine hervorragende ÖPNV-Anbindung und sein großes gastronomisches Angebot beste Voraussetzungen für einen modernen, integrierten und nachhaltigen Bürostandort.
Innenaufnahme 1
Innenaufnahme 2
Innenufnahme 3
Innenaufnahme 4
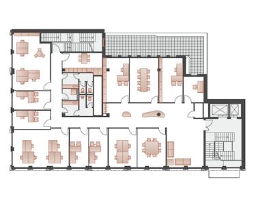
Regelgeschoss | Einzel- und Kombibüros
Regelgeschoss | Open Office