Exposé
Objektart:
Haus
» Bungalow
» Kauf
Standort: Haus »
Deutschland » Baden-Württemberg » Rhein-Neckar-Kreis (Kreis) » Malsch
STREIF baut Euer perfektes Zuhause
Das Wichtigste auf einen Blick:
| Objektnummer: | 9416511 |
Preise
| Kaufpreis | 570.019 € |
| Nebenkosten | keine Angabe |
Flächen
| Wohnfläche | 113 m² |
| Grundstücksfläche | 335 m² |
Objekt Adresse
69254 Malsch
Sonstige Angaben
| Zimmer | 4 |
| Verfügbar ab | keine Angabe |
| Bad | 1 |
| Anzahl der Etagen im Haus | 1 |
| Bad | 1 |
| Terrassen | 1 |
| Barrierefrei | |
| Energietyp | KfW-40 |
| Heizungsart | Zentralheizung |
| Energieträger/Befeuerung | Luft-Wärme-Pumpe |
Objektbeschreibung
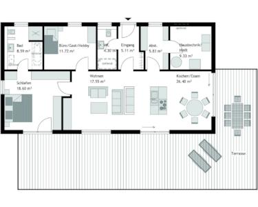
Bungalow mit Satteldach mit flexiblem Raumkonzept
Entdecken Sie die Möglichkeiten, Ihr Traumhaus als Bungalow mit einem Satteldach zu realisieren und erleben Sie eine zeitgemäße Architektur gepaart mit einem einzigartigen Raumkonzept. Der Wohn-/Ess- und Kochbereich erstreckt sich über großzügige 44 m² und bietet höchsten Komfort. Eine halbhohe Wand, die optional auch raumhoch sein kann, trennt geschickt den Koch- vom Wohnbereich und schafft so eine harmonische Balance zwischen gemeinsamen Beisammensein und klarer Struktur. Große Panoramafenster sowie eine geräumige Panorama-Hebeschiebetür sorgen für ein helles und offenes Ambiente, das Innen- und Außenbereich harmonisch miteinander verbindet. Der Schlafbereich überzeugt mit großzügiger Stellfläche für Schränke und einem direkten Zugang zum geräumigen Badezimmer. Ein zusätzlicher Raum, flexibel als Büro, Gäste- oder Hobbyraum nutzbar, sowie ein zweites Badezimmer mit optionaler Dusche, runden das Raumangebot ab. Auf Anfrage kann der Grundriss des Bungalows auch barrierefrei gestaltet werden, um allen individuellen Bedürfnissen gerecht zu werden.
Entdecken Sie die Möglichkeiten, Ihr Traumhaus als Bungalow mit einem Satteldach zu realisieren und erleben Sie eine zeitgemäße Architektur gepaart mit einem einzigartigen Raumkonzept. Der Wohn-/Ess- und Kochbereich erstreckt sich über großzügige 44 m² und bietet höchsten Komfort. Eine halbhohe Wand, die optional auch raumhoch sein kann, trennt geschickt den Koch- vom Wohnbereich und schafft so eine harmonische Balance zwischen gemeinsamen Beisammensein und klarer Struktur. Große Panoramafenster sowie eine geräumige Panorama-Hebeschiebetür sorgen für ein helles und offenes Ambiente, das Innen- und Außenbereich harmonisch miteinander verbindet. Der Schlafbereich überzeugt mit großzügiger Stellfläche für Schränke und einem direkten Zugang zum geräumigen Badezimmer. Ein zusätzlicher Raum, flexibel als Büro, Gäste- oder Hobbyraum nutzbar, sowie ein zweites Badezimmer mit optionaler Dusche, runden das Raumangebot ab. Auf Anfrage kann der Grundriss des Bungalows auch barrierefrei gestaltet werden, um allen individuellen Bedürfnissen gerecht zu werden.
Ausstattung
STREIF-Häuser sind Energiesparhäuser. Die Außenwände im Passiv-Haus-Standard und eine sparsame Heiztechnik mit integrierter Wohnraumlüftung und Wärmerückgewinnung, garantieren einen geringen Energieverbrauch und ein fantastisches Raumklima, das insbesondere Allergiker aufatmen lässt.
STREIF Leistungen sind MEHR WERT - schon im Grundpreis enthalten!
- 20-monatige Festpreisgarantie
- KfW-Energieeffizienzhaus 40 im Standard*
- Inkl. individueller Grundrissgestaltung und Raumaufteilung
- Inkl. gedämmter Fundamentplatte
- Inkl. STREIF-Luft-Luft-Wärmepumpen-Technologie mit integrierter Lüftungsanlage mit Wärmerückgewinnung
- Inkl. Haustür von KERA und Fenster von Porta/Kömmerling
- Inkl. Sanitärobjekte von Markenherstellern
- Inkl. Elektroinstallation
- Inkl. Photovoltaikanlage 7,12 KWP
- Inkl. Batteriespeicher mit 7,70 KWH
- Inkl. Baubetreuung u.v.m.
* In Abhängigkeit von Gebäudestandort, Gebäudeausrichtung, Fensterflächenanteile usw. können zusätzliche oder abweichende Leistungen erforderlich werden, die im Zuge der Bauantragsbewertung/-erstellung geprüft werden. Das Erreichen der Grenzwerte des QNG als Voraussetzung zum KFN ist bei einem Bungalow nur durch zusätzliche Maßnahmen (mehr Netto-Raumfläche = zusätzliches Geschoss und/oder Dachboden,
größere Photovoltaik-Anlage, ...) erreichbar. Hierzu ist im Vorfeld der Planung eine separate Beratung sowie zusätzlich die gemeinsame Festlegung der nachhaltigen Planungsziele erforderlich. Die Möglichkeit zur Erstellung der Ökobilanzierung durch STREIF muss separat je Bauvorhaben geprüft werden.
Die hohe Wertigkeit und Langlebigkeit eines STREIF-Energiespar-Hauses wird durch zahlreiche Auszeichnungen, Qualitäts- und Gütesiegel unabhängiger Institute und Verbände dokumentiert.
Der Angebotspreis ist inklusive Grundstück und bezieht sich auf die Standard-Ausbaustufe Fast-Fertig-Plus. Ihre Eigenleistungen: Spachtel-,Tapezier- und Malerarbeiten, Bodenbeläge, Innentüren.
Baunebenkosten fallen zuzüglich an.
Der Verkauf des Grundstücks erfolgt über einen unserer Netzwerkpartner.
Bilder können evtl. Anbauteile, Carports, Balkone, Gauben usw. zeigen, die nicht im Angebotspreis enthalten sind. Änderungen und Irrtümer vorbehalten.
STREIF Leistungen sind MEHR WERT - schon im Grundpreis enthalten!
- 20-monatige Festpreisgarantie
- KfW-Energieeffizienzhaus 40 im Standard*
- Inkl. individueller Grundrissgestaltung und Raumaufteilung
- Inkl. gedämmter Fundamentplatte
- Inkl. STREIF-Luft-Luft-Wärmepumpen-Technologie mit integrierter Lüftungsanlage mit Wärmerückgewinnung
- Inkl. Haustür von KERA und Fenster von Porta/Kömmerling
- Inkl. Sanitärobjekte von Markenherstellern
- Inkl. Elektroinstallation
- Inkl. Photovoltaikanlage 7,12 KWP
- Inkl. Batteriespeicher mit 7,70 KWH
- Inkl. Baubetreuung u.v.m.
* In Abhängigkeit von Gebäudestandort, Gebäudeausrichtung, Fensterflächenanteile usw. können zusätzliche oder abweichende Leistungen erforderlich werden, die im Zuge der Bauantragsbewertung/-erstellung geprüft werden. Das Erreichen der Grenzwerte des QNG als Voraussetzung zum KFN ist bei einem Bungalow nur durch zusätzliche Maßnahmen (mehr Netto-Raumfläche = zusätzliches Geschoss und/oder Dachboden,
größere Photovoltaik-Anlage, ...) erreichbar. Hierzu ist im Vorfeld der Planung eine separate Beratung sowie zusätzlich die gemeinsame Festlegung der nachhaltigen Planungsziele erforderlich. Die Möglichkeit zur Erstellung der Ökobilanzierung durch STREIF muss separat je Bauvorhaben geprüft werden.
Die hohe Wertigkeit und Langlebigkeit eines STREIF-Energiespar-Hauses wird durch zahlreiche Auszeichnungen, Qualitäts- und Gütesiegel unabhängiger Institute und Verbände dokumentiert.
Der Angebotspreis ist inklusive Grundstück und bezieht sich auf die Standard-Ausbaustufe Fast-Fertig-Plus. Ihre Eigenleistungen: Spachtel-,Tapezier- und Malerarbeiten, Bodenbeläge, Innentüren.
Baunebenkosten fallen zuzüglich an.
Der Verkauf des Grundstücks erfolgt über einen unserer Netzwerkpartner.
Bilder können evtl. Anbauteile, Carports, Balkone, Gauben usw. zeigen, die nicht im Angebotspreis enthalten sind. Änderungen und Irrtümer vorbehalten.
Lage des Objektes
Malsch ist eine traditionelle und historisch bedeutsame Gemeinde im südlichen Rhein-Neckar-Kreis. Der Wein- und Wallfahrtsort liegt idyllisch am Fuße des Letzenbergs, der als nordwestlicher Eckpfeiler des Kraichgaus eine markante Erhebung darstellt. Malsch ist Teil der wirtschaftlich starken Metropolregion Rhein-Neckar.
Durch die Lage an der Bundesstraße B3 gut an das regionale Straßennetz angebunden. Die Gemeinde ist durch den eigenen S-Bahn-Anschluss in das Netz des VRN integriert, was eine schnelle Verbindung zu den Mittelzentren Wiesloch/Walldorf und den Großstädten Heidelberg und Karlsruhe ermöglicht.
Die Johann-Peter-Hebel-Schule (Grund- und Hauptschule) bietet Bildung direkt vor Ort. Weiterführende Schulformen sind in den nahegelegenen Städten gut erreichbar.
Für die Betreuung der jüngsten Einwohner sind Kindergärten und Kindertagesstätten vorhanden.
Malsch ist eine anerkannte Weinbaugemeinde an der Badischen Weinstraße. Ein ca. 8 km langer Weinwanderweg umgibt den Letzenberg. Die Wallfahrtskapelle ist ein spirituelles Zentrum und ein beliebtes Ziel für Tageswanderungen. Im Zuge der Gemeindeentwicklung wurde das historische Anwesen des Zehntkellers saniert und zu einem modernen Gemeindezentrum umgestaltet, das als neuer Ortsmittelpunkt dient und vielfältige Bedürfnisse (inkl. Restaurant) erfüllt. Malsch verfügt über ein aktives Vereinsleben, das eine tragende Säule des kulturellen Lebens und der Förderung von Sport und Spiel ist.
Der wirtschaftliche Standort ist durch ein Gleichgewicht von lokalem Gewerbe und dem Pendlerverkehr in die umliegenden Zentren gekennzeichnet. Handwerk, Handel und Dienstleistungen gehören zu den größten wirtschaftlichen Säulen Malschs.
Die idyllische Landschaft, den Erholungswert des Letzenbergs, eine gute Infrastruktur mit direkter S-Bahn-Anbindung, sowie eine intakte Dorfgemeinschaft mit starkem kulturellen und sozialen Angebot, machen Malsch zu einem Ort, der ländliche Ruhe und schnelle Erreichbarkeit der Metropolregion vereint.
Durch die Lage an der Bundesstraße B3 gut an das regionale Straßennetz angebunden. Die Gemeinde ist durch den eigenen S-Bahn-Anschluss in das Netz des VRN integriert, was eine schnelle Verbindung zu den Mittelzentren Wiesloch/Walldorf und den Großstädten Heidelberg und Karlsruhe ermöglicht.
Die Johann-Peter-Hebel-Schule (Grund- und Hauptschule) bietet Bildung direkt vor Ort. Weiterführende Schulformen sind in den nahegelegenen Städten gut erreichbar.
Für die Betreuung der jüngsten Einwohner sind Kindergärten und Kindertagesstätten vorhanden.
Malsch ist eine anerkannte Weinbaugemeinde an der Badischen Weinstraße. Ein ca. 8 km langer Weinwanderweg umgibt den Letzenberg. Die Wallfahrtskapelle ist ein spirituelles Zentrum und ein beliebtes Ziel für Tageswanderungen. Im Zuge der Gemeindeentwicklung wurde das historische Anwesen des Zehntkellers saniert und zu einem modernen Gemeindezentrum umgestaltet, das als neuer Ortsmittelpunkt dient und vielfältige Bedürfnisse (inkl. Restaurant) erfüllt. Malsch verfügt über ein aktives Vereinsleben, das eine tragende Säule des kulturellen Lebens und der Förderung von Sport und Spiel ist.
Der wirtschaftliche Standort ist durch ein Gleichgewicht von lokalem Gewerbe und dem Pendlerverkehr in die umliegenden Zentren gekennzeichnet. Handwerk, Handel und Dienstleistungen gehören zu den größten wirtschaftlichen Säulen Malschs.
Die idyllische Landschaft, den Erholungswert des Letzenbergs, eine gute Infrastruktur mit direkter S-Bahn-Anbindung, sowie eine intakte Dorfgemeinschaft mit starkem kulturellen und sozialen Angebot, machen Malsch zu einem Ort, der ländliche Ruhe und schnelle Erreichbarkeit der Metropolregion vereint.
Sonstige Informationen
Zur Realisierung des Bauvorhabens und zur Bezugsfertigkeit des Gebäudes kommen zzgl. noch Baunebenkosten und Fertigstellungskosten.