Exposé
Objektart:
Büro / Praxen
» Bueroflaeche
» Miete
Standort: Büro / Praxen »
Deutschland » Nordrhein-Westfalen » Mettmann (Kreis) » Düsseldorf
Repräsentative Büroflächen provisionsfrei zur Miete. Moderne Ausstattung, Klimatisierung
Außenansicht1
Das Wichtigste auf einen Blick:
| Objektnummer: | 9416488 |
Preise
| Nebenkosten | keine Angabe |
| Mietpreis pro m² | 14,5 € |
Flächen
| Gesamtfläche | 846 m² |
| Bürofläche | 846 m² |
Objekt Adresse
40472 Düsseldorf
- Nordrhein-Westfalen
Sonstige Angaben
| Baujahr | 1999 |
| Verfügbar ab | 1.12.2025 |
| Anzahl der Etagen im Haus | 8 |
| Inserat befindet sich im Stockwerk | 1 |
| Boden | Teppich |
| Fahrstuhl | Ja |
| Keller | Ja |
| Energieausweistyp | Verbrauch |
| Gültig bis | 2019-05-31 |
| Baujahr (laut Energieausweis) | 1999 |
| Heizungsart | Zentralheizung |
| Wesentlicher Energieträger | Gas |
| Energieträger/Befeuerung | Gas |
Objektbeschreibung
Exklusiver Büropark - so hochwertig wie das Konzept ist auch die Ausstattung des Objektes: attraktive Fassade aus verspiegelten Glas-, kunststoffbeschichteten Aluminium - und hellen Sandsteinelementen. Repräsentativer Eingangsbereich am großzügig verglasten Tower, zwei separate Eingangsbereiche mit leistungsfähigen Personenaufzügen und einem Windfang mit automatischen Doppeltüren. Der offen gestaffelte Grundriss des Gebäudes lässt großzügige Freiflächen entstehen, die für eine intensive Begrünung genutzt werden. Nach Süden erschließt sich auf allen Nutzflächen eine helle Atmosphäre mit Blick in eine natürliche Umgebung. Ein ansteigender Landschaftswall bildet die organische Abschirmung gegen die westlichen Bahngleise. Der Büropark ist dank exzellenter Autobahnanbindung sehr gut mit dem PKW erreichbar. Sicheres Parken in der hauseigenen Tiefgarage ist auf zwei Ebenen im Untergeschoss eine Selbstverständlichkeit. Insgesamt 431 PKW-Einstellplätze stehen ausschließlich den Nutzern des Objektes zur Verfügung.
Lage des Objektes
Das Objekt befindet sich in Düsseldorf-Unterrath und hat eine hervorragende Verkehrsanbindung und Infrastruktur. Auch für die Bedürfnisse des täglichen Bedarfs findet man in der unmittelbaren Umgebung ein reichhaltiges Waren- und Dienstleistungsangebot.
Sonstige Informationen
BREEAM In-Use: Asset (goody) / Buildung Management (pass)
Außenaufnahme 2
Innenaufnahme 1
Innenaufnahme 2
Innenaufnahme 3
Innenaufnahme 4
Innenaufnahme 5
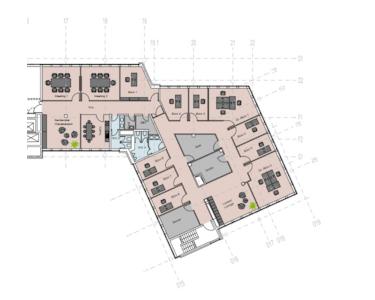
Beispielplanung H55
Beispielplanung H55