Exposé
Objektart:
Sonstiges
» Sonstige
» Miete
Standort: Sonstiges »
Deutschland » Bayern » Lichtenfels (Kreis) » Lichtenfels
Laden- oder Bürofläche (zentral gelegen)
Das Wichtigste auf einen Blick:
| Objektnummer: | 9410044 |
Preise
| Kaltmiete | 920 € |
| Nebenkosten | 200 € |
| Heizkosten enthalten | Ja |
| Kaution | 2.760 € |
Flächen
| Gesamtfläche | 92 m² |
| Maklerprovision | zwei Monatsmieten zzgl. MwSt. (ist 2,38 Monatsmieten inkl. MwSt.) |
Objekt Adresse
96215 Lichtenfels
Sonstige Angaben
| Verfügbar ab | keine Angabe |
| Boden | Fliesen, Parkett |
| Barrierefrei | |
| Energieausweistyp | Bedarfsausweis |
| Ausstellungsdatum | 24. 11. 2025 |
| Gültig bis | 11-2035 |
| Energieeffizienzklasse | F |
| Endenergiebedarf | 184.9 kWh/(m²*a) |
| Heizungsart | Zentralheizung |
Ausstattung
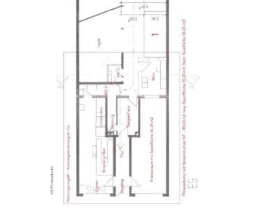
Die angebotene Gewerbefläche mit ca. 92 m² Gesamtfläche wurde zuletzt als Fitnessstudio genutzt, hat aber durch die Raumaufteilung vielfältige Nutzungsmöglichkeiten. So wäre auch ohne Weiteres eine Nutzung als Büro für z.B. Versicherungsmakler, ein Ladengeschäft oder ähnliches denkbar. Neben den beiden großen Räumen (derzeit Fitnessraum/Sportfläche und Empfang/Bar) gibt es einen voll ausgestatteten Sanitärbereich (mit Dusche) und ein separat abtrennbares Büro. Auch der Bereich Umkleide ließe sich noch durch eine Trennwand separieren. Das Lager im hinteren Bereich kann separat angemietet werden.
Gemäß Online-Auskunft der Deutschen Telekom ist im Objekt MagentaZuhause XL mit 250MBit/s max. Download und 40 MBit/s max. Upload verfügbar. Vodafone bietet einen Internetanschluss mit bis zu 250Mbit an.
Die angebotenen Flächen sind sehr vielseitig einzuteilen und nutzbar.
Baujahr: 1955, umfangreiche Sanierung 1995 (Gewerbeeinheit 2021), Erdgaszentralheizung (Baujahr 2023)
Gewerbeflächen: ca. 92 m²
Miete / Monat: € 920.- zzgl. MwSt.
Nebenkosten / Monat: € 200.- zzgl. MwSt. (wird jährlich abgerechnet), Strom nicht enthalten.
Energiepass: vorhanden
(Bedarf)
Internet: MagentaZuhause XL ist mit bis zu 250MBit/s max. Download und 40 MBit/s max. Upload. (gemäß Online Auskunft der Deutschen Telekom)
DSL-Internet mit bis zu 250 Mbit/s (gemäß Online Auskunft Vodafone)
verfügbar: nach Absprache
Nutzung: Büro, Ladengeschäft, Fitnessangebot etc.
Kaution: drei Monatsmieten (zzgl. MwSt.)
Maklergebühr: zwei Monatsmieten zzgl. MwSt. (ist 2,38 Monatsmieten inkl. MwSt.)
Gemäß Online-Auskunft der Deutschen Telekom ist im Objekt MagentaZuhause XL mit 250MBit/s max. Download und 40 MBit/s max. Upload verfügbar. Vodafone bietet einen Internetanschluss mit bis zu 250Mbit an.
Die angebotenen Flächen sind sehr vielseitig einzuteilen und nutzbar.
Baujahr: 1955, umfangreiche Sanierung 1995 (Gewerbeeinheit 2021), Erdgaszentralheizung (Baujahr 2023)
Gewerbeflächen: ca. 92 m²
Miete / Monat: € 920.- zzgl. MwSt.
Nebenkosten / Monat: € 200.- zzgl. MwSt. (wird jährlich abgerechnet), Strom nicht enthalten.
Energiepass: vorhanden
(Bedarf)
Internet: MagentaZuhause XL ist mit bis zu 250MBit/s max. Download und 40 MBit/s max. Upload. (gemäß Online Auskunft der Deutschen Telekom)
DSL-Internet mit bis zu 250 Mbit/s (gemäß Online Auskunft Vodafone)
verfügbar: nach Absprache
Nutzung: Büro, Ladengeschäft, Fitnessangebot etc.
Kaution: drei Monatsmieten (zzgl. MwSt.)
Maklergebühr: zwei Monatsmieten zzgl. MwSt. (ist 2,38 Monatsmieten inkl. MwSt.)
Lage des Objektes
Lichtenfels ist die Kreisstadt des Landkreises Lichtenfels im bayerischen Regierungsbezirk Oberfranken und ein Mittelzentrum. Sie gehört zur Metropolregion Nürnberg. Die am Oberlauf des Mains gelegene Stadt ist aufgrund ihrer langjährigen Tradition des Korbmacherhandwerks als Deutsche Korbstadt bekannt. Lichtenfels ist über die A73 verkehrstechnisch sehr gut angebunden nach Coburg (ca. 19 Minuten), nach Bamberg (ca. 25 Minuten) und nach Kulmbach (ca. 30 Minuten). Lichtenfels hat derzeit ca. 20.488 Einwohner und verfügt über alle für den täglichen Bedarf notwendigen Geschäfte, alle Schulen und ärztlichen Einrichtungen.
Das Objekt liegt zentral gelegen. Der Hauptbahnhof ist nur zu Fuß ca. 5 Minuten entfernt, ein Supermarkt ist in ca. 3 Minuten zu Fuß erreichbar. Eine Bushaltestelle ist in unmittelbarer Nähe.
Das Objekt liegt zentral gelegen. Der Hauptbahnhof ist nur zu Fuß ca. 5 Minuten entfernt, ein Supermarkt ist in ca. 3 Minuten zu Fuß erreichbar. Eine Bushaltestelle ist in unmittelbarer Nähe.
Eingang Bild 1
Fitnessraum mit Sportfläche Bild 1
Fitnessraum mit Sportfläche Bild 2
Fitnessraum mit Sportfläche Bild 3
Fitnessraum mit Sportfläche Bild 4
Büro Bild 1
Büro Bild 2
Büro Bild 3
Büro Bild 4
Warten / Empfang + Bar Bild 1
Warten / Empfang + Bar Bild 2
Warten / Empfang + Bar Bild 3
Warten / Empfang + Bar Bild 4
Warten / Empfang + Bar Bild 5
Umkleide Bild 1
Umkleide Bild 2
Umkleide Bild 3
WC / Dusche Bild 1
WC / Dusche Bild 2
WC / Dusche Bild 3
Energiebedarf
Grundriss
KONTAKT