Exposé
Objektart:
Haus
» Zweifamilienhaus
» Kauf
Standort: Haus »
Deutschland » Baden-Württemberg » Karlsruhe (Kreis) » Kraichtal
Großes Einfamilienhaus oder Zweifamilienhaus * in Kraichtal
Aussenansicht
Das Wichtigste auf einen Blick:
| Objektnummer: | 9409122 |
Preise
| Kaufpreis | 369.000 € |
| Nebenkosten | keine Angabe |
Flächen
| Wohnfläche | 175 m² |
| Grundstücksfläche | 544 m² |
| Maklerprovision | keine Provision, courtagefrei |
Objekt Adresse
Luisenstr. 17
76703 Kraichtal
- Baden-Württemberg
Sonstige Angaben
| Baujahr | 1998 |
| Zimmer | 12 |
| Verfügbar ab | sofort |
| Bad | 2 |
| Garage/Stellplätze | 1 |
| Anzahl der Etagen im Haus | 3 |
| Bad | 2 |
| Bad | Dusche, Wanne |
| Boden | Fliesen, Laminat |
| Balkone | 1 |
| Garten | Ja |
| Terrassen | 1 |
| Garage/Stellplätze | 1 |
| Keller | Ja |
| Heizungsart | Zentralheizung |
| Energieträger/Befeuerung | Öl |
Objektbeschreibung
Dieses leerstehende, massive Einfamilienhaus oder auch nutzbar als Zweifamilienhaus bietet auf 175 m² Wohnfläche, vielseitige Nutzungsmöglichkeiten und eignet sich ideal für Kapitalanleger, Mehrgenerationenwohnen oder Handwerker mit Visionen.
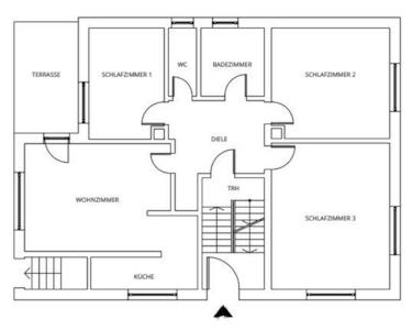
im EG:
Großes Wohnzimmer mit Zugang zur herrlichen Sonnenterrasse sowie angeschlossener Küche. Drei Schlafzimmer, Bad und Gäste-WC.
im OG:
Drei Schlafzimmer. Vom Hauptschlafzimmer gelangen Sie auf den herrlichen Balkon. Bad, WC und eine Küche.
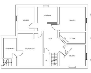
im Keller:
Diverse Hobbyräume, Waschküche, Haustechnikraum, Kellerraum und WC.
Objektdetails:
- Zustand: Leerstehend, renovierungsbedürftig
- Bebauung: Massivbauweise
- Baujahr 1973 | fiktives Baujahr: 1998
- Öl-Zentralheizung (2015)
- Nutzungsoptionen: Einfamilien- oder Zweifamilienhaus
Das Gebäude weist einen konkreten Sanierungs- bzw. Renovierungsbedarf, der beim Verkaufspreis bereits berücksichtigt wurde, auf:
- Sanitärinstallationen
- Innenausbau (Böden, Wände, Decken)
Dieses Objekt ist ein wahrer Rohdiamant für handwerklich versierte Käufer oder Investoren.
Mit ausreichend Platz, Substanz und einem attraktiven Grundstück bietet es beste Voraussetzungen für eine lohnende Sanierung und vielseitige Nutzung – sei es zur Eigennutzung, Vermietung oder als Mehrgenerationenhaus.
Zu dem Haus gehöret eine Garage sowie ein großer Anbau im Garten.
Das Haus ist sofort verfügbar.
Der Energieausweis wird derzeit erstellt.
Der Verkauf erfolgt von Privat und ist somit provisionsfrei.
Makler Anfragen sind ausdrücklich nicht erwünscht und werden nicht beantwortet.
im EG:
Großes Wohnzimmer mit Zugang zur herrlichen Sonnenterrasse sowie angeschlossener Küche. Drei Schlafzimmer, Bad und Gäste-WC.
im OG:
Drei Schlafzimmer. Vom Hauptschlafzimmer gelangen Sie auf den herrlichen Balkon. Bad, WC und eine Küche.
im Keller:
Diverse Hobbyräume, Waschküche, Haustechnikraum, Kellerraum und WC.
Objektdetails:
- Zustand: Leerstehend, renovierungsbedürftig
- Bebauung: Massivbauweise
- Baujahr 1973 | fiktives Baujahr: 1998
- Öl-Zentralheizung (2015)
- Nutzungsoptionen: Einfamilien- oder Zweifamilienhaus
Das Gebäude weist einen konkreten Sanierungs- bzw. Renovierungsbedarf, der beim Verkaufspreis bereits berücksichtigt wurde, auf:
- Sanitärinstallationen
- Innenausbau (Böden, Wände, Decken)
Dieses Objekt ist ein wahrer Rohdiamant für handwerklich versierte Käufer oder Investoren.
Mit ausreichend Platz, Substanz und einem attraktiven Grundstück bietet es beste Voraussetzungen für eine lohnende Sanierung und vielseitige Nutzung – sei es zur Eigennutzung, Vermietung oder als Mehrgenerationenhaus.
Zu dem Haus gehöret eine Garage sowie ein großer Anbau im Garten.
Das Haus ist sofort verfügbar.
Der Energieausweis wird derzeit erstellt.
Der Verkauf erfolgt von Privat und ist somit provisionsfrei.
Makler Anfragen sind ausdrücklich nicht erwünscht und werden nicht beantwortet.
Ausstattung
Balkon, Terrasse, Garten, Keller, Vollbad, Duschbad, Gäste-WC, Laminat, Fliesen
Sonstige Informationen
Heizungsart: Zentralheizung
Energieträger: Öl
Energieausweis nicht vorhanden
Makleranfragen nicht erwünscht. Nach § 7 UWG sind unaufgeforderte Kontaktaufnahmen durch Makler ohne ausdrückliche Einwilligung des Empfängers verboten!
ohne-makler (OM) ist weder Anbieter noch Vermittler der Immobilie. OM betreibt eine Plattform für Immobilieneigentümer, die unter anderem die gleichzeitige Veröffentlichung einzelner Inserate auf mehreren Immobilienportalen ermöglicht. Die Inhalte dieser Inserate werden ausschließlich von Dritten verantwortet. Für die Richtigkeit, Vollständigkeit oder Rechtmäßigkeit der Angaben übernimmt OM keine Haftung. Hinweise auf mögliche Rechtsverstöße können jederzeit gemeldet werden und werden nach Prüfung umgehend bearbeitet.
Wohnzimmer
Gäste-WC
Küche
Zimmer
Zimmer
Zimmer
Zimmer
Bad
Bad
Zimmer OG
Zimmer OG
Küche OG
Bad OG
WC OG
Keller
Keller
Keller
Garten
Garten
Aussenansicht
Erdgeschoss
Obergeschoss
Untergeschoss