Exposé
Objektart:
Wohnung
» Etage
» Miete
Standort: Wohnung »
Deutschland » Niedersachsen » Gifhorn (Kreis) » Gifhorn
***Exklusiv&Barrierefrei: 4-Zimmer-Wohnung im Zentrum – inkl. Einbauküche***
Hausansicht 1
Das Wichtigste auf einen Blick:
| Objektnummer: | 9408702 |
Preise
| Kaltmiete (netto) | 1.230 € |
| Nebenkosten | 200 € |
| Heizkosten enthalten | Ja |
Flächen
| Wohnfläche | 109 m² |
Objekt Adresse
38518 Gifhorn
- Niedersachsen
Sonstige Angaben
| Baujahr | 2018 |
| Zimmer | 4 |
| Verfügbar ab | 01.03.2026 |
| Inserat befindet sich im Stockwerk | 1 |
| Küche | Einbauküche |
| Boden | Fliesen, Kunststoff |
| Balkone | 1 |
| Garten | Ja |
| Terrassen | 0 |
| Fahrstuhl | Ja |
| Barrierefrei | |
| Energieausweistyp | Bedarfsausweis |
| Energieeffizienzklasse | A |
| Endenergiebedarf | 0 kWh/(m²*a) |
| Heizungsart | Fußbodenheizung |
| Energieträger/Befeuerung | Gas |
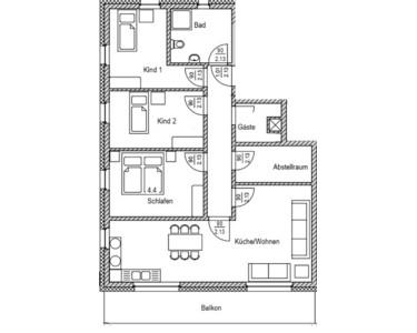
Objektbeschreibung
Nach der Arbeit noch schnell durch die Innenstadt schlendern und den Tag gemütlich ausklingen lassen? Hier ist das möglich!
Die Wohnung befindet sich in einem Mehrfamilienhaus mit insgesamt 8 Wohneinheiten.
In die barrierefreie 4 Zimmerwohnung gelangen Sie entweder mit einem Aufzug oder einer Treppe. Die Wohnung hat eine großzügige und helle Raumaufteilung. Vom Flur aus gelangt man in alle Zimmer. Die Unterkunft ist mit einem Badezimmer samt Fenster und Dusche sowie ein Gäste-WC ausgestattet. Der Abstellraum bietet genügend Raum für Regale, Waschmaschine und Trockner. Über das Wohnzimmer gelangt man in die offene Küche. Dort haben Sie auch Platz für einen Esstisch. Vom Küchen- und Wohnbereich können Sie das verblüffende Balkon betreten und die Aussicht auf das Zentrum genießen. Das Schlafzimmer ist klassisch geschnitten. Das 3. und 4. Zimmer kann individuell, zum Beispiel als Kinder-, Gäste- oder Arbeitszimmer genutzt werden.
Der Flur, Bad, Gäste-WC und der Abstellraum sind gefliest. In den anderen Räumen sorgt ein hochwertiger Vinylboden für eine warme und einladende Atmosphäre.
Alle Räume sind weiß gestrichen und die Decken sind weiß tapeziert.
Die Wohnung befindet sich in einem Mehrfamilienhaus mit insgesamt 8 Wohneinheiten.
In die barrierefreie 4 Zimmerwohnung gelangen Sie entweder mit einem Aufzug oder einer Treppe. Die Wohnung hat eine großzügige und helle Raumaufteilung. Vom Flur aus gelangt man in alle Zimmer. Die Unterkunft ist mit einem Badezimmer samt Fenster und Dusche sowie ein Gäste-WC ausgestattet. Der Abstellraum bietet genügend Raum für Regale, Waschmaschine und Trockner. Über das Wohnzimmer gelangt man in die offene Küche. Dort haben Sie auch Platz für einen Esstisch. Vom Küchen- und Wohnbereich können Sie das verblüffende Balkon betreten und die Aussicht auf das Zentrum genießen. Das Schlafzimmer ist klassisch geschnitten. Das 3. und 4. Zimmer kann individuell, zum Beispiel als Kinder-, Gäste- oder Arbeitszimmer genutzt werden.
Der Flur, Bad, Gäste-WC und der Abstellraum sind gefliest. In den anderen Räumen sorgt ein hochwertiger Vinylboden für eine warme und einladende Atmosphäre.
Alle Räume sind weiß gestrichen und die Decken sind weiß tapeziert.
Ausstattung
Balkon, Garten, Fahrstuhl, Einbauküche, Gäste-WC, Barrierefrei, Fliesen
Bemerkungen:
Individuelle Ausstattungsmerkmale:
- hochwertige Einbauküche mit E-Geräten
- Fenster mit elektrischen Rollläden
- Hochwertige Vinyl-Bodenbeläge
- Raumthermostate in allen Räumen (Fußbodenheizung)
- Fahrstuhl
- Parkplätze
- Fahrradabstellplätze mit Stromanschlüssen
Bemerkungen:
Individuelle Ausstattungsmerkmale:
- hochwertige Einbauküche mit E-Geräten
- Fenster mit elektrischen Rollläden
- Hochwertige Vinyl-Bodenbeläge
- Raumthermostate in allen Räumen (Fußbodenheizung)
- Fahrstuhl
- Parkplätze
- Fahrradabstellplätze mit Stromanschlüssen
Lage des Objektes
Gifhorn liegt zwischen Hannover, Braunschweig und Wolfsburg, rund 20 Kilometer nördlich von Braunschweig und dem Autobahnkreuz Braunschweig-Nord (A 2/A 391) und etwa 15 Kilometer westlich von Wolfsburg.
Die 4 Zimmer Wohnung befindet sich in der Mitte von der Stadt.
Einkaufsmöglichkeiten, Schulen, Bus- und Bahnverbindung sowie die Innenstadt etc. sind innerhalb wenigen Gehminuten erreichbar.
Infrastruktur (im Umkreis von 5 km):
Apotheke, Lebensmittel-Discount, Allgemeinmediziner, Kindergarten, Grundschule, Hauptschule, Realschule, Gymnasium, Gesamtschule, Öffentliche Verkehrsmittel
Die 4 Zimmer Wohnung befindet sich in der Mitte von der Stadt.
Einkaufsmöglichkeiten, Schulen, Bus- und Bahnverbindung sowie die Innenstadt etc. sind innerhalb wenigen Gehminuten erreichbar.
Infrastruktur (im Umkreis von 5 km):
Apotheke, Lebensmittel-Discount, Allgemeinmediziner, Kindergarten, Grundschule, Hauptschule, Realschule, Gymnasium, Gesamtschule, Öffentliche Verkehrsmittel
Sonstige Informationen
Heizungsart: Fußbodenheizung
Energieträger: Gas
Es wird eine Mietsicherheit (Kaution) in Höhe von 3 Monatsmieten ohne Nebenkosten gefordert.
Makleranfragen nicht erwünscht. Nach § 7 UWG sind unaufgeforderte Kontaktaufnahmen durch Makler ohne ausdrückliche Einwilligung des Empfängers verboten!
ohne-makler (OM) ist weder Anbieter noch Vermittler der Immobilie. OM betreibt eine Plattform für Immobilieneigentümer, die unter anderem die gleichzeitige Veröffentlichung einzelner Inserate auf mehreren Immobilienportalen ermöglicht. Die Inhalte dieser Inserate werden ausschließlich von Dritten verantwortet. Für die Richtigkeit, Vollständigkeit oder Rechtmäßigkeit der Angaben übernimmt OM keine Haftung. Hinweise auf mögliche Rechtsverstöße können jederzeit gemeldet werden und werden nach Prüfung umgehend bearbeitet.
Wohn- und Essbereich
Wohnbereich
Essbereich
Schlafzimmer 1
Schlafzimmer 2
Arbeitszimmer / Ankleideraum
Flur
Abstellraum
Badezimmer
Gäste-WC
Balkon
Wohnzimmer (Bsp. möbliert)
Essbereich (Bsp. möbliert)
Schlafzimmer (Bsp. möbliert)
Ankleideraum (Bsp. möbliert)
Gästezimmer (Bsp. möbliert)
Flur (Bsp. möbliert)
Badezimmer (Bsp. möbliert)
Gäste-WC (Bsp. möbliert)
Treppenhaus
Aufzug
Eingang
Hausansicht 2
Hausansicht 3