Exposé
Objektart:
Grundstück
» Wohnen
» Kauf
Standort: Grundstück »
Deutschland » Rheinland-Pfalz » Ahrweiler (Kreis) » Sinzig
Denkmalgeschütztes Anwesen mit Altgebäude & großem Park
Das Wichtigste auf einen Blick:
| Objektnummer: | 9407184 |
Preise
| Kaufpreis | 1.500.000 € |
| Nebenkosten | keine Angabe |
Flächen
| Grundstücksfläche | 18.000 m² |
| Maklerprovision | keine Provision, courtagefrei |
Objekt Adresse
53489 Sinzig
- Rheinland-Pfalz
Sonstige Angaben
| Verfügbar ab | nach Absprache |
Objektbeschreibung
Das Anwesen ist derzeit in Privatbesitz und soll aus Altersgründen veräußert werden.
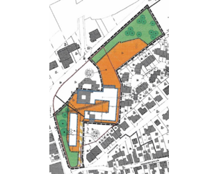
Zum Planfoto:
Die Grenzen des Anwesens erkennen Sie an der dick schwarz gestrichelten Linie.
Das Altgebäude (ca. 500Jahre) vollständig sanierungsbedürftig.
Weitere Teile des Grundstücks können kurzfristig Baugenehmigung erhalten.
Es eignet sich für Hotelbebauung ( würde problemlos 60Doppelzimmer ergeben).
Es kann in Miet - und Eigentumswohnungen umgesetzt werden.
Bauvoranfragen bereits für beide Projekttypen positiv vorliegend.
Sprechen Sie uns gerne an!
Zum Planfoto:
Die Grenzen des Anwesens erkennen Sie an der dick schwarz gestrichelten Linie.
Das Altgebäude (ca. 500Jahre) vollständig sanierungsbedürftig.
Weitere Teile des Grundstücks können kurzfristig Baugenehmigung erhalten.
Es eignet sich für Hotelbebauung ( würde problemlos 60Doppelzimmer ergeben).
Es kann in Miet - und Eigentumswohnungen umgesetzt werden.
Bauvoranfragen bereits für beide Projekttypen positiv vorliegend.
Sprechen Sie uns gerne an!
Lage des Objektes
Infrastruktur (im Umkreis von 5 km):
Apotheke, Lebensmittel-Discount, Allgemeinmediziner, Kindergarten, Grundschule, Hauptschule, Realschule, Gymnasium, Gesamtschule, Öffentliche Verkehrsmittel
Sonstige Informationen
Makleranfragen nicht erwünscht. Nach § 7 UWG sind unaufgeforderte Kontaktaufnahmen durch Makler ohne ausdrückliche Einwilligung des Empfängers verboten!
ohne-makler (OM) ist weder Anbieter noch Vermittler der Immobilie. OM betreibt eine Plattform für Immobilieneigentümer, die unter anderem die gleichzeitige Veröffentlichung einzelner Inserate auf mehreren Immobilienportalen ermöglicht. Die Inhalte dieser Inserate werden ausschließlich von Dritten verantwortet. Für die Richtigkeit, Vollständigkeit oder Rechtmäßigkeit der Angaben übernimmt OM keine Haftung. Hinweise auf mögliche Rechtsverstöße können jederzeit gemeldet werden und werden nach Prüfung umgehend bearbeitet.