Exposé
Objektart:
Büro / Praxen
» Bueroflaeche
» Miete
Standort: Büro / Praxen »
Deutschland » Bayern » Augsburg, Stadt (Kreis) » Augsburg
Büro- Unterrichts- oder Praxisräume in Augsburgs bester Innenstadtlage
Das Wichtigste auf einen Blick:
| Objektnummer: | 9406440 |
Preise
| Kaltmiete (netto) | 2.250 € |
| Nebenkosten | 450 € |
| Heizkosten enthalten | Ja |
| Kaution | 6.750 € |
Flächen
| Gesamtfläche | 210 m² |
| Bürofläche | 210 m² |
| Maklerprovision | keine Provision, courtagefrei |
Objekt Adresse
Maximilianstr. 66
86150 Augsburg
- Bayern
Sonstige Angaben
| Verfügbar ab | 01.01.2026 |
| Anzahl der Etagen im Haus | 4 |
| Inserat befindet sich im Stockwerk | 1 |
| Boden | Laminat |
| Fahrstuhl | Ja |
| Barrierefrei | |
| Heizungsart | Zentralheizung |
| Energieträger/Befeuerung | Fernwärme |
Objektbeschreibung
Büro- oder Schulungsräume in der „Kaisermeile“ Augsburgs zu vermieten.
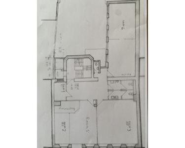
Helle, freundliche, lichtdurchflutete Räume im 1. OG mit ca. 210 m² ab 1.1.2026 zu vermieten.
Ein Aufzug ist vorhanden und sorgt für einen barrierefreien Zugang.
Die Räume eignen sich als Büro/ Praxis- oder Unterrichtsräume.
Aktuell werden die 5 hellen Räume als Büro genutzt.
Die jetzige Raumaufteilung kann Ihren Wünschen angepasst werden.
Hier könnten drei große Räume (ca. 48 qm, 55 qm und 47 qm) als Unterrichtsräume entstehen.
Es ist beste Innenstadtlage in einem gepflegten, denkmalgeschützten Haus mit seriösem Ambiente.
In der Maximilianstraße sind gute Parkmöglichkeiten für Ihre Kunden vorhanden.
Eine Bus- und Straßenbahnhaltestelle ist in unmittelbarer Nähe.
Im Erdgeschoß befindet sich ein gut eingeführtes Restaurant.
Gerne können Sie sich selbst ein Bild machen und die Räume besichtigen.
Helle, freundliche, lichtdurchflutete Räume im 1. OG mit ca. 210 m² ab 1.1.2026 zu vermieten.
Ein Aufzug ist vorhanden und sorgt für einen barrierefreien Zugang.
Die Räume eignen sich als Büro/ Praxis- oder Unterrichtsräume.
Aktuell werden die 5 hellen Räume als Büro genutzt.
Die jetzige Raumaufteilung kann Ihren Wünschen angepasst werden.
Hier könnten drei große Räume (ca. 48 qm, 55 qm und 47 qm) als Unterrichtsräume entstehen.
Es ist beste Innenstadtlage in einem gepflegten, denkmalgeschützten Haus mit seriösem Ambiente.
In der Maximilianstraße sind gute Parkmöglichkeiten für Ihre Kunden vorhanden.
Eine Bus- und Straßenbahnhaltestelle ist in unmittelbarer Nähe.
Im Erdgeschoß befindet sich ein gut eingeführtes Restaurant.
Gerne können Sie sich selbst ein Bild machen und die Räume besichtigen.
Ausstattung
Fahrstuhl, Barrierefrei, Laminat
Bemerkungen:
gepflegte, lichtdurchflutete Büros,
Kabelanschluss für Internetgeschäfte vorhanden,
Aufzug,
Bemerkungen:
gepflegte, lichtdurchflutete Büros,
Kabelanschluss für Internetgeschäfte vorhanden,
Aufzug,
Lage des Objektes
Kaisermeile Augsburgs, Maximilianstrasse nähe St. Ulrich,
viele Ämter, Geschäfte und Restaurants sind in unmittelbarer Nähe,
öffentliche Parkplätze sind vorhanden, Haltestelle des öffentlichen Nahverkehrs in unmittelbarer Nähe.
Infrastruktur (im Umkreis von 5 km):
Apotheke, Lebensmittel-Discount, Allgemeinmediziner, Kindergarten, Grundschule, Realschule, Gymnasium, Öffentliche Verkehrsmittel
viele Ämter, Geschäfte und Restaurants sind in unmittelbarer Nähe,
öffentliche Parkplätze sind vorhanden, Haltestelle des öffentlichen Nahverkehrs in unmittelbarer Nähe.
Infrastruktur (im Umkreis von 5 km):
Apotheke, Lebensmittel-Discount, Allgemeinmediziner, Kindergarten, Grundschule, Realschule, Gymnasium, Öffentliche Verkehrsmittel
Sonstige Informationen
Heizungsart: Zentralheizung
Energieträger: Fernwärme
Makleranfragen nicht erwünscht. Nach § 7 UWG sind unaufgeforderte Kontaktaufnahmen durch Makler ohne ausdrückliche Einwilligung des Empfängers verboten!
ohne-makler (OM) ist weder Anbieter noch Vermittler der Immobilie. OM betreibt eine Plattform für Immobilieneigentümer, die unter anderem die gleichzeitige Veröffentlichung einzelner Inserate auf mehreren Immobilienportalen ermöglicht. Die Inhalte dieser Inserate werden ausschließlich von Dritten verantwortet. Für die Richtigkeit, Vollständigkeit oder Rechtmäßigkeit der Angaben übernimmt OM keine Haftung. Hinweise auf mögliche Rechtsverstöße können jederzeit gemeldet werden und werden nach Prüfung umgehend bearbeitet.
Raum 3
Raum 5
Raum 2
Besprechnung
Aufenthalt-Küche
Grundriss 1. OG