Exposé
Objektart:
Hallen / Lager / Produktion
» Produktion
» Miete
Standort: Hallen / Lager / Produktion »
Deutschland » Baden-Württemberg » Göppingen (Kreis) » Jebenhausen
Büro 200m² und Produktionsflächen 640m² in modernem Architektur Neubau
Außenansicht-1
Das Wichtigste auf einen Blick:
| Objektnummer: | 9406629 |
Preise
| Miete für das Objekt | Auf Anfrage |
| Nebenkosten | keine Angabe |
Flächen
| Gesamtfläche | 1.200 m² |
| Freifläche | 2.400 m² |
| Grundstücksfläche | 5.000 m² |
| Maklerprovision | keine Provision, courtagefrei |
Objekt Adresse
73035 Jebenhausen
- Baden-Württemberg
Sonstige Angaben
| Baujahr | 2025 |
| Verfügbar ab | sofort |
| Anzahl der Etagen im Haus | 2 |
| Inserat befindet sich im Stockwerk | 0 |
| Energieausweistyp | Bedarfsausweis |
| Heizungsart | Fußbodenheizung |
| Energieträger/Befeuerung | Elektro |
Objektbeschreibung
Das Gebäude gliedert sich in:
1x Doppelgeschossiges massives Bürogebäude und
1x eingeschossige Halle mit 640m²
In dieser Anzeige wird die Halle-1 mit ihren 640m² mit den angeschlossenem Bürotrakt (140m² Büro + Sozialräume ca 70m² ) vermietet.
Hallenhöhe ist 5,5m mit großen Toren mit 4x4m somit können auch Sprinter und LKW zum beladen in die Halle fahren. Die Halle Wurde für Produktionstätigkeiten konzipiert, daher wurden an jede Stahlstütze ein separater Elektroverteiler mit 3x 230V + Starkstrom angebracht sowie Druckluft und ein Leerrohr für EDV Leitungen. Maximale Anschlussleistung ohne Trafostation: 125A, Trafo Station kann nachgerüstet werden bei Bedarf.
Es gäbe auch die Option beide Hallenteile inklusive des Büros zu mieten.
Auf Anfrage können auch weitere Außenflächen angemietet werden.
Das Gebäude wurde nach aktuellen Gebäudeenergiegesetzt erbaut, und ist daher sehr Energieeffizient und sparsam in Bezug auf die Heiz und Kühllasten.
Die Halle wurde mit lichtdurchlässigen Fassadenelementen und Flachdach ausgeführt, was zu großen Licht durchfluteten Räumen führt. Neben den Dachfenstern sorgen Fenster in der Fassade und Dach für weiteren Tageslichteinfall.
Optimal für Produktionstätigkeiten das sich ihre Mitarbeiter setzt wohlfühlen.
Die Flächenheizung ist so ausgelegt, dass sie im Winter zum Heizen genutzt werden kann wie auch im Sommer um die Räumlichkeiten herunter zu kühlen, das gilt auch für die gesamte Produktionsfläche. Fußbodenheizung im gesamten Gebäude. Die Büro und Sozialräume sind noch zusätzlich mit einer Deckenheizung bzw Kühlung ausgestattet.
Objektbeschreibung
Gelegenheit! Attraktive Büros + Produktionshallen mit lichtdurchfluteten Räumen in sehr verkehrsgünstiger Lage im Industriegebiet Göppingen-Jebenhausen, Erstbezug!
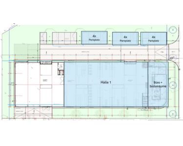
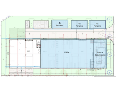
Das Gebäude besteht aus 2 Einheiten (1x Büro + Produktionfläche ( diese Anzeige hier), 1x Produktion/Lager) mit einer Gesamtfläche von ca. 1185 m² ist ab sofort verfügbar und soll langfristig vermietet werden. Die Mindestmietdauer beträgt 3 Jahre.
Die Außenflächen von ca. 2000m² können auf Bedarf auch dazu gemietet werden.
PKW-Stellplätze direkt vor dem Gebäude, können auf Wunsch dazu gemietet werden.
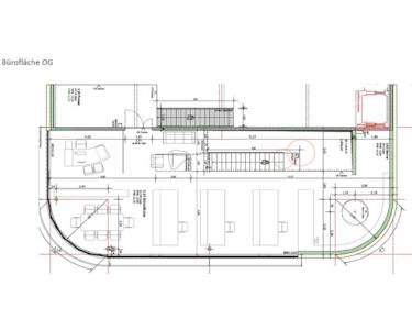
Einheit 1 - Büro EG + Sozialräume EG - 128 m²
– Büro OG - 120m²
- Produktionshalle 1 -640m²
Hallenhöhe 5,5m
Einheit 2 - Produktionshalle 2 -375m² ( bereits vermietet)
Der Energieausweis ist erstellt und liegt zur Besichtigung vor.
1x Doppelgeschossiges massives Bürogebäude und
1x eingeschossige Halle mit 640m²
In dieser Anzeige wird die Halle-1 mit ihren 640m² mit den angeschlossenem Bürotrakt (140m² Büro + Sozialräume ca 70m² ) vermietet.
Hallenhöhe ist 5,5m mit großen Toren mit 4x4m somit können auch Sprinter und LKW zum beladen in die Halle fahren. Die Halle Wurde für Produktionstätigkeiten konzipiert, daher wurden an jede Stahlstütze ein separater Elektroverteiler mit 3x 230V + Starkstrom angebracht sowie Druckluft und ein Leerrohr für EDV Leitungen. Maximale Anschlussleistung ohne Trafostation: 125A, Trafo Station kann nachgerüstet werden bei Bedarf.
Es gäbe auch die Option beide Hallenteile inklusive des Büros zu mieten.
Auf Anfrage können auch weitere Außenflächen angemietet werden.
Das Gebäude wurde nach aktuellen Gebäudeenergiegesetzt erbaut, und ist daher sehr Energieeffizient und sparsam in Bezug auf die Heiz und Kühllasten.
Die Halle wurde mit lichtdurchlässigen Fassadenelementen und Flachdach ausgeführt, was zu großen Licht durchfluteten Räumen führt. Neben den Dachfenstern sorgen Fenster in der Fassade und Dach für weiteren Tageslichteinfall.
Optimal für Produktionstätigkeiten das sich ihre Mitarbeiter setzt wohlfühlen.
Die Flächenheizung ist so ausgelegt, dass sie im Winter zum Heizen genutzt werden kann wie auch im Sommer um die Räumlichkeiten herunter zu kühlen, das gilt auch für die gesamte Produktionsfläche. Fußbodenheizung im gesamten Gebäude. Die Büro und Sozialräume sind noch zusätzlich mit einer Deckenheizung bzw Kühlung ausgestattet.
Objektbeschreibung
Gelegenheit! Attraktive Büros + Produktionshallen mit lichtdurchfluteten Räumen in sehr verkehrsgünstiger Lage im Industriegebiet Göppingen-Jebenhausen, Erstbezug!
Das Gebäude besteht aus 2 Einheiten (1x Büro + Produktionfläche ( diese Anzeige hier), 1x Produktion/Lager) mit einer Gesamtfläche von ca. 1185 m² ist ab sofort verfügbar und soll langfristig vermietet werden. Die Mindestmietdauer beträgt 3 Jahre.
Die Außenflächen von ca. 2000m² können auf Bedarf auch dazu gemietet werden.
PKW-Stellplätze direkt vor dem Gebäude, können auf Wunsch dazu gemietet werden.
Einheit 1 - Büro EG + Sozialräume EG - 128 m²
– Büro OG - 120m²
- Produktionshalle 1 -640m²
Hallenhöhe 5,5m
Einheit 2 - Produktionshalle 2 -375m² ( bereits vermietet)
Der Energieausweis ist erstellt und liegt zur Besichtigung vor.
Ausstattung
Bemerkungen:
Die technische Gebäudeausstattung entspricht modernsten Ansprüchen, so dass sich hier Mitarbeiter und Besucher gleichermaßen wohlfühlen. Auf Sie warten lichtdurchflutete und bezugsfertige Räumlichkeiten, die einen perfekten Arbeitsplatz für Sie und Ihre Mitarbeitenden schaffen.
Zur Ausstattung gehören unter anderem Internet über Glasfaser, eine hocheffiziente Gebäudetechnik.
Ausstattung:
•Photovoltaik-Anlage
•moderne Gebäudeautomation für Heizung, Kühlung und Licht
•Heizungsart: Wärmepumpe nach neustem Standard
•Glasfaseranschluss
•barrierefreier Zugang
•13 PKW-Stellplätze, auf Wunsch können E-Ladestation nachgerüstet werden
•ansprechende und moderne Architektur
•perfekte Anbindung (Auto, öffentliche Buse, Fahrrad)
•Flügelgeglättete Bodenplatte
•Fußbodenheizung im Gesamten Gebäude inkl. Produktion
•Deckenkühlung im Büro
•Wärmepumpe mit COP 5
• Ebenerdige Sektionaltore (B/H = 4,0 x 4,5 m)
•Druckluftverrohrung
•Separater Server und Technikraum
Lage des Objektes
Die Stadt Göppingen hat ca. 58.000 Einwohner und ist im Hinblick auf Gewerbe und Handel sowie Verwaltungs- und Bildungseinrichtungen der Mittelpunkt des Landkreises Göppingen mit ca. 255.000 Menschen. Göppingen verfügt über alle Versorgungs- und Infrastruktureinrichtungen des täglichen und periodischen Bedarfs sowie über ein umfassendes Freizeit-/Kulturangebot.
Das Objekt befindet sich in Göppingen-Jebenhausen im Gewerbegebiet. Im unmittelbaren Umfeld befinden sich überwiegend mittelständische Gewerbebetriebe.
Fahrzeiten:
- Stuttgart ca. 25 Minuten
- Ulm ca. 25 Minuten
- Esslingen ca. 25 Minuten
- Wendlingen ca. 22 Minuten
- Kirchheim ca. 20 Minuten
- Stuttgart-Flughafen ca. 30 Minuten
- Reutlingen ca. 50 Minuten
Das Objekt befindet sich in Göppingen-Jebenhausen im Gewerbegebiet. Im unmittelbaren Umfeld befinden sich überwiegend mittelständische Gewerbebetriebe.
Fahrzeiten:
- Stuttgart ca. 25 Minuten
- Ulm ca. 25 Minuten
- Esslingen ca. 25 Minuten
- Wendlingen ca. 22 Minuten
- Kirchheim ca. 20 Minuten
- Stuttgart-Flughafen ca. 30 Minuten
- Reutlingen ca. 50 Minuten
Sonstige Informationen
Heizungsart: Fußbodenheizung
Energieträger: Strom
Anmietung von Teilflächen denkbar. Bitte nennen Sie uns Ihre Anforderungen.
Das Grundstück /Gebäude ist dafür vorbereitet eine eigene Trafostation aufstellen zu können, falls dies notwendig werden sollte.
Eine Besichtigung ist nach Vereinbarung jederzeit möglich.
Sie mieten direkt vom Bauherren ohne Makler und ohne zusätzliche Kosten.
ohne-makler (OM) ist weder Anbieter noch Vermittler der Immobilie. OM betreibt eine Plattform für Immobilieneigentümer, die unter anderem die gleichzeitige Veröffentlichung einzelner Inserate auf mehreren Immobilienportalen ermöglicht. Die Inhalte dieser Inserate werden ausschließlich von Dritten verantwortet. Für die Richtigkeit, Vollständigkeit oder Rechtmäßigkeit der Angaben übernimmt OM keine Haftung. Hinweise auf mögliche Rechtsverstöße können jederzeit gemeldet werden und werden nach Prüfung umgehend bearbeitet.
Außenansicht-2
Außenansicht
Draufsicht EG
Grundriss OG
Büro OG Rendering
Büro OG-Boden abgedeckt
Büro OG-Boden abgedeckt
Treppenaufgang Büro
Grundriss EG
Büro EG Rendering
Büro EG Vorraum
Küche/ Pausenraum
Sicht aus OG auf Halle
Halle-1 640m²
EG Technikraum, OG Serverraum
Verteiler an jeder Stütze
Außenansicht
Draufsicht EG
Draufsicht EG - Sektionen