Exposé
Objektart:
Einzelhandel
» Ladenlokal
» Miete
Standort: Einzelhandel »
Deutschland » Sachsen-Anhalt » Saalekreis (Kreis) » Wettin-Löbejün
Morderne Gewerbeeinheit-ideal für Büro/Laden/Praxis
Ansicht Hauptstraße
Das Wichtigste auf einen Blick:
| Objektnummer: | 9406664 |
Preise
| Kaltmiete (netto) | 400 € |
| Nebenkosten | 55 € |
| Kaution | 1.200 € |
Flächen
| Gesamtfläche | 67 m² |
| Maklerprovision | keine Provision, courtagefrei |
Objekt Adresse
06193 Wettin-Löbejün
- Sachsen-Anhalt
Sonstige Angaben
| Baujahr | 1993 |
| Verfügbar ab | nach Absprache |
| Anzahl der Etagen im Haus | 2 |
| Inserat befindet sich im Stockwerk | 0 |
| Küche | Einbauküche |
| Boden | Fliesen |
| Energieausweistyp | Bedarfsausweis |
| Heizungsart | Zentralheizung |
| Energieträger/Befeuerung | Luft-Wärme-Pumpe |
Objektbeschreibung
Morderne Gewerbeeinheit-ideal für Büro/Laden/Praxis
Sollten Sie als ein anderes Nutzungskonzept verfolgen, können der Ladentresen und die Verkaufstische bei Bedarf und nach Rücksprache entfernt werden. Die fest verbauten Regale müssen in der Gewerbeeinheit verbleiben.
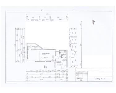
In einem Wohn- und Geschäftshaus befindet sich im Erdgeschoss eine bereits möblierte Gewerbeeinheit, bestehend aus einem Vorraum mit Eingang (Windfang), einem Verkaufsraum, einem Raum, welcher als Büro oder Pausenraum genutzt werden kann sowie einem WC.
Sollten Sie als ein anderes Nutzungskonzept verfolgen, können der Ladentresen und die Verkaufstische bei Bedarf und nach Rücksprache entfernt werden. Die fest verbauten Regale müssen in der Gewerbeeinheit verbleiben.
In einem Wohn- und Geschäftshaus befindet sich im Erdgeschoss eine bereits möblierte Gewerbeeinheit, bestehend aus einem Vorraum mit Eingang (Windfang), einem Verkaufsraum, einem Raum, welcher als Büro oder Pausenraum genutzt werden kann sowie einem WC.
Ausstattung
Einbauküche, Fliesen, Sonstiges (s. Text)
Bemerkungen:
Es stehen 3 Fassaden-Flächen sowie 3 beleuchtete Schaufenster für mögliche Außenreklame-Anlage(n) zur Verfügung, hiervon 2 Fassadenflächen mit elektrischen Anschluss. Diese befinden sich an der Nord- sowie Westfassade, welche in Richtung einer gut frequentierten Hauptverkehrsstraße zeigen. Die Werbeanlagen wurden bereits bauamtlich genehmigt. Auch darüber hinaus gehören zum Objekt bereits vielerlei bauamtlich genehmigte Nutzungsarten, so dass mit Ihrem Projekt direkt gestartet werden kann. Denkbar wären eine Nutzung als Büro / Handwerkerbetrieb, Fahrschule oder Nachhilfeschule aber auch als Imbiss / Kiosbetrieb / Einzelhandel / Post. Eine Genehmigung für einen Gaststättenbetrieb liegt nicht vor. Es besteht durch die Deutsche Post AG / DPDHL Interesse an einer möglichen Partnerschaft, bei Bedarf kann der Kontakt hier vermittelt werden.
Es liegen für die Gewerbeeinheit optional 2 Breitbandanschlüsse, DSL an. Alternativ kann ein vorhandener Internetanschluss gegen geringes monatliches Entgelt mitgenutzt werden. Die Infrastruktur (RJ45 Dose sowie Router) sind bereits vorhanden. Ebenso gehören ein SAT-Anschluss der hauseigenen SAT-TV Anlage, eine Brandmeldeanlage und eine Gegensprechanlage zur Ausstattung. Die Gewerberäume sind durch eine Einbruchmeldeanlage gesichert.
Das Objekt wird mit einer Wärmepumpenanlage / Zentralheizung über die vorhandenen Heizkörper beheizt. Ein in 2024 Ersteller Energieausweis ist vorhanden.
Bemerkungen:
Es stehen 3 Fassaden-Flächen sowie 3 beleuchtete Schaufenster für mögliche Außenreklame-Anlage(n) zur Verfügung, hiervon 2 Fassadenflächen mit elektrischen Anschluss. Diese befinden sich an der Nord- sowie Westfassade, welche in Richtung einer gut frequentierten Hauptverkehrsstraße zeigen. Die Werbeanlagen wurden bereits bauamtlich genehmigt. Auch darüber hinaus gehören zum Objekt bereits vielerlei bauamtlich genehmigte Nutzungsarten, so dass mit Ihrem Projekt direkt gestartet werden kann. Denkbar wären eine Nutzung als Büro / Handwerkerbetrieb, Fahrschule oder Nachhilfeschule aber auch als Imbiss / Kiosbetrieb / Einzelhandel / Post. Eine Genehmigung für einen Gaststättenbetrieb liegt nicht vor. Es besteht durch die Deutsche Post AG / DPDHL Interesse an einer möglichen Partnerschaft, bei Bedarf kann der Kontakt hier vermittelt werden.
Es liegen für die Gewerbeeinheit optional 2 Breitbandanschlüsse, DSL an. Alternativ kann ein vorhandener Internetanschluss gegen geringes monatliches Entgelt mitgenutzt werden. Die Infrastruktur (RJ45 Dose sowie Router) sind bereits vorhanden. Ebenso gehören ein SAT-Anschluss der hauseigenen SAT-TV Anlage, eine Brandmeldeanlage und eine Gegensprechanlage zur Ausstattung. Die Gewerberäume sind durch eine Einbruchmeldeanlage gesichert.
Das Objekt wird mit einer Wärmepumpenanlage / Zentralheizung über die vorhandenen Heizkörper beheizt. Ein in 2024 Ersteller Energieausweis ist vorhanden.
Lage des Objektes
Nauendorf gehört als Ortsteil mit circa 2.500 Einwohnern zur Stadt Wettin-Löbejün und liegt verkehrsgünstig in der Nähe zur Autobahn A14. Die hier inserierte Gewerbeeinheit liegt voll einsehbar an einer gut frequentierten Hauptstraße, welche den Ortsteil Löbejün sowie die Ortschaften Priester / Merbitz mit Nauendorf sowie der L50 verbindet. Im Ort sind die Carl-Löwe Grundschule, ein Kindergarten, ein Bäcker, ein Friseur, Allgemein- sowie Zahnärzte, ein Baumarkt, das Institut für Ernährung- und Agrarwissenschaften der Martin-Luther-Universität Halle, diverse Fachhandwerksunternehmen, ein Bahnhof sowie diverse Post / Pakethändler zu finden.
Infrastruktur (im Umkreis von 5 km):
Apotheke, Lebensmittel-Discount, Allgemeinmediziner, Kindergarten, Grundschule, Öffentliche Verkehrsmittel
Infrastruktur (im Umkreis von 5 km):
Apotheke, Lebensmittel-Discount, Allgemeinmediziner, Kindergarten, Grundschule, Öffentliche Verkehrsmittel
Sonstige Informationen
Heizungsart: Zentralheizung
Energieträger: Luft-/Wasserwärme
Die als Bankimmobilie genutzten Räume wurden liebevoll saniert und hierbei bestehende Elemente mit modernen Komponenten geschickt kombiniert. Die Sanitäreinrichtungen wurden 2023 neu installiert. Sämtliche Innenwände wurden frisch gestrichen, neue moderne Bodenfliesen gelegt. An sämtlichen Beleuchtungskomponenten sind sparsame, moderne LED Leuchtmittel installiert.
Sollten wir ihr Interesse geweckt haben, so war dies genau unsere Absicht. Bei Rückfragen stehen wir Ihnen gern unter nachfolgender Rufnummer zur Verfügung:
Tel.: 0152 - 02036824
Makleranfragen nicht erwünscht. Nach § 7 UWG sind unaufgeforderte Kontaktaufnahmen durch Makler ohne ausdrückliche Einwilligung des Empfängers verboten!
ohne-makler (OM) ist weder Anbieter noch Vermittler der Immobilie. OM betreibt eine Plattform für Immobilieneigentümer, die unter anderem die gleichzeitige Veröffentlichung einzelner Inserate auf mehreren Immobilienportalen ermöglicht. Die Inhalte dieser Inserate werden ausschließlich von Dritten verantwortet. Für die Richtigkeit, Vollständigkeit oder Rechtmäßigkeit der Angaben übernimmt OM keine Haftung. Hinweise auf mögliche Rechtsverstöße können jederzeit gemeldet werden und werden nach Prüfung umgehend bearbeitet.
Ansicht Hauptstraße 2
Vorraum / Windfang 1
WC 1
WC 2
Vorraum / Windfang 2
Vorraum / Windfang 3
Gewerbefläche
Gewerbefläche 2
Tresen 1
Tresen 2
Zugang Büro / Pausenraum
Büro Pausenraum
Büro / Pausenraum 2
Grundriss Gewerbe EG