Exposé
Objektart:
Haus
» Reihenend
» Kauf
Standort: Haus »
Deutschland » Bayern » München, Landeshauptstadt (Kreis) » München
Modernes Wohnerlebnis in München-Waldperlach – Ihr neues Zuhause am Waldheimplatz
FINESTEP Immobilien GmbH
Das Wichtigste auf einen Blick:
| Objektnummer: | 9405611 |
Preise
| Kaufpreis | 1.109.000 € |
| Nebenkosten | keine Angabe |
Flächen
| Wohnfläche | 144,26 m² |
| Nutzfläche | 31,44 m² |
| Grundstücksfläche | 224 m² |
Objekt Adresse
Waldheimplatz 12
81739 München
Sonstige Angaben
| Baujahr | 2026 |
| Zimmer | 5 |
| Verfügbar ab | Nach Absprache |
| Bad | 2 |
| Bad | 2 |
| Bad | Dusche, Fenster |
| Garten | Ja |
| Heizungsart | Fußbodenheizung |
Objektbeschreibung
Das hier ist etwas Besonderes: Am Waldheimplatz 12 entsteht Ihr modernes Zuhause, das auf einer großzügigen Wohnfläche von ca. 144 m² und vier durchdachten Ebenen den perfekten Rahmen für ein anspruchsvolles Leben in der Landeshauptstadt bietet.
Die genaue Aufteilung dieses Traumhauses mit Dachterrasse finden sie unter „Ausstattung“.
Wie geht es konkret weiter?
1.Wenn Ihnen das Angebot zusagt, nehmen Sie gerne über das Formular Kontakt zu uns auf.
2.Wenn Ihnen das Grundstück ebenfalls gefällt- und das wird es- geht es mit dem Haus weiter: Im Musterhauszentrum in Poing wird der schon vorhandene Hausvertrag der renommierten Firma Hartl Haus mit Ihnen besprochen. Betreut werden Sie von Herrn Mohnlein, Objektleiter Deutschland. Sollten Sie Änderungen der Aufteilung oder Ausstattung wünschen, die nicht die Außenmaße des Hauses verändern, können diese eingearbeitet werden.
3.Nach Klärung der Finanzierung und Finalisierung des Werkvertrages schließen Sie einen Hausvertrag mit der Firma Hartl Haus ab, der erst und ausschließlich mit Kauf der Grundstücksparzelle wirksam wird. Sie profitieren dabei von den Großkundenkonditionen des Projektentwicklers und erstklassiger Betreuung.
4.Parallel dazu kaufen sie provisionsfrei Ihre Grundstücksparzelle vom Verkäufer. In diesem Preis sind alle Kosten für den Abriss des Altbestandes, einschließlich Keller Altbestand, Rodung, Auffüllung, Bodengutachten, Baurechtsklärung, Architektenkosten, Bauvorbescheid, Baugenehmigung und Vermessungskosten enthalten.
5.Im Gegensatz zu dem oft üblichen Kaufmodell nach Makler- und Bauträgerverordnung (MaBV) ergeben sich beim projektierten Modell keine Risiken, da Sie sofort (nach Zahlung Kaufpreis Grundstück) Eigentümer des Grundstücks werden. Sollte der Kaufvertrag des Grundstückes aus unvorhersehbaren Gründen nicht zu Stande kommen, hätten Sie außerdem keine vertraglichen Verpflichtungen gegenüber Hartl- Haus.
6.Nach Übergang „von Nutzen und Lasten“ geht es schnell: Ihr Haus ist bereits geplant, die Baugenehmigung liegt vor und nun wird nur noch der Ablauf eingetaktet. Beginnend beim Kellerbau, bis zur Endmontage der Bodenbeläge koordiniert Hartl- Haus den Ablauf. Selbst Schritte, die bei anderen Hausbauern durch die Bauherren erfolgen müssen, wie die Beauftragung der Hausanschlüsse beim örtlichen Versorger, können Sie dies bei Hartl-Haus durch Vollmacht erledigen lassen.
7.Nach Abschluss der Hausarbeiten, stehen die Außenanlagen an, die nicht im Preis enthalten sind. Von Humus, Rollrasen, Holzterrassen über Zäune bis hin zu den Pflasterflächen empfehlen wir Ihnen gerne langjährige Partner, die diese Arbeiten für Sie übernehmen können. Je nach Ausführung sollten sie hier 15-25.000,00€ einkalkulieren.
8.Ihr Haus inklusive Außenanlagen ist fertig. Weihnachten 2026 wird im neuen Haus gefeiert.
Worauf warten Sie? Starten Sie mit Ihrem ersten Schritt in Ihr neues Zuhause.
Die genaue Aufteilung dieses Traumhauses mit Dachterrasse finden sie unter „Ausstattung“.
Wie geht es konkret weiter?
1.Wenn Ihnen das Angebot zusagt, nehmen Sie gerne über das Formular Kontakt zu uns auf.
2.Wenn Ihnen das Grundstück ebenfalls gefällt- und das wird es- geht es mit dem Haus weiter: Im Musterhauszentrum in Poing wird der schon vorhandene Hausvertrag der renommierten Firma Hartl Haus mit Ihnen besprochen. Betreut werden Sie von Herrn Mohnlein, Objektleiter Deutschland. Sollten Sie Änderungen der Aufteilung oder Ausstattung wünschen, die nicht die Außenmaße des Hauses verändern, können diese eingearbeitet werden.
3.Nach Klärung der Finanzierung und Finalisierung des Werkvertrages schließen Sie einen Hausvertrag mit der Firma Hartl Haus ab, der erst und ausschließlich mit Kauf der Grundstücksparzelle wirksam wird. Sie profitieren dabei von den Großkundenkonditionen des Projektentwicklers und erstklassiger Betreuung.
4.Parallel dazu kaufen sie provisionsfrei Ihre Grundstücksparzelle vom Verkäufer. In diesem Preis sind alle Kosten für den Abriss des Altbestandes, einschließlich Keller Altbestand, Rodung, Auffüllung, Bodengutachten, Baurechtsklärung, Architektenkosten, Bauvorbescheid, Baugenehmigung und Vermessungskosten enthalten.
5.Im Gegensatz zu dem oft üblichen Kaufmodell nach Makler- und Bauträgerverordnung (MaBV) ergeben sich beim projektierten Modell keine Risiken, da Sie sofort (nach Zahlung Kaufpreis Grundstück) Eigentümer des Grundstücks werden. Sollte der Kaufvertrag des Grundstückes aus unvorhersehbaren Gründen nicht zu Stande kommen, hätten Sie außerdem keine vertraglichen Verpflichtungen gegenüber Hartl- Haus.
6.Nach Übergang „von Nutzen und Lasten“ geht es schnell: Ihr Haus ist bereits geplant, die Baugenehmigung liegt vor und nun wird nur noch der Ablauf eingetaktet. Beginnend beim Kellerbau, bis zur Endmontage der Bodenbeläge koordiniert Hartl- Haus den Ablauf. Selbst Schritte, die bei anderen Hausbauern durch die Bauherren erfolgen müssen, wie die Beauftragung der Hausanschlüsse beim örtlichen Versorger, können Sie dies bei Hartl-Haus durch Vollmacht erledigen lassen.
7.Nach Abschluss der Hausarbeiten, stehen die Außenanlagen an, die nicht im Preis enthalten sind. Von Humus, Rollrasen, Holzterrassen über Zäune bis hin zu den Pflasterflächen empfehlen wir Ihnen gerne langjährige Partner, die diese Arbeiten für Sie übernehmen können. Je nach Ausführung sollten sie hier 15-25.000,00€ einkalkulieren.
8.Ihr Haus inklusive Außenanlagen ist fertig. Weihnachten 2026 wird im neuen Haus gefeiert.
Worauf warten Sie? Starten Sie mit Ihrem ersten Schritt in Ihr neues Zuhause.
Ausstattung
Dieses Traumhaus mit über 175m2 Wohn-Nutzfläche lässt kaum Wünsche offen.
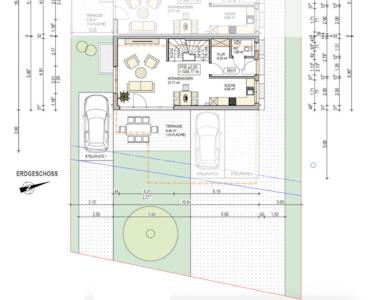
Das Erdgeschoss bildet das einladende Zentrum Ihres neuen Heims. Der offen gestaltete Wohn- und Küchenbereich mit ca. 35 m² wird durch große Fensterfronten mit Tageslicht durchflutet und schafft eine fließende Verbindung zur sonnigen Terrasse. Diese bietet mit einer bereits hälftig angerechneten Fläche von ca. 8,5 m² viel Raum für entspannte Stunden im Freien. Ein modernes Gäste-WC sowie ein heller Flurbereich vervollständigen diese Wohnebene.
Im Obergeschoss befindet sich der private Bereich für die Familie. Zwei geräumige Kinderzimmer mit ca. 18 m² und ca. 15,5 m² bieten viel Platz zur individuellen Entfaltung. Ein hochwertig ausgestattetes Badezimmer mit modernen Sanitärartikeln sorgt hier für einen perfekten Start in den Tag.
Das voll ausgebaute Dachgeschoss ist als exklusiver Rückzugsort konzipiert. Hier erwartet Sie das großzügige Schlafzimmer mit direktem Zugang zur eigenen Dachterrasse. Ein zusätzliches Badezimmer sowie ein separater Arbeitsbereich bieten ideale Bedingungen für Home-Office oder Ankleide.
Abgerundet wird das Platzangebot durch das Untergeschoss. Hier befindet sich der ca. 16,20 m² große Hobbyraum, der dank des zweiten Rettungswegs und großzügiger Lichtzufuhr voll als Wohnraum dient. Ob für Fitness, Hobbys, Büro oder Gäste. Die zusätzliche Nutzfläche in den Technik- und Kellerräumen von ca. 19,37 m² sorgt für ausreichend Stauraum. Die nachhaltige Holzständerbauweise in Kombination mit einer effizienten Wärmepumpe und vollflächiger Fußbodenheizung garantiert Ihnen ein gesundes Raumklima und niedrige Energiekosten.
IM ÜBERBLICK:
- ca. 144 m² Wohnfläche auf 4 Ebenen (KG, EG, OG, DG) plus ca. 31,44 m² Nutzfläche
- Zimmer: 5 Zimmer plus separater AR/Büro-Bereich
- Wohnbereich: Offener Wohn- und Essbereich mit direktem Terrassenzugang
- Außenbereich: Große Terrasse im EG (ca. 8,46 m² angerechnet) und Dachterrasse im DG (ca. 3,61 m² angerechnet)
- Schlafbereiche: Zwei geräumige Kinderzimmer im OG (ca. 17,60 m² und 15,59 m²)
- Dachgeschoss: Vollausgebauter Elternrückzugsort mit eigenem Bad und Arbeitsbereich
- Hobbyraum: Vielseitig nutzbarer Raum im KG (ca. 16,20 m²) mit 2. Rettungsweg und Tageslicht
- Separater HWR im Keller und Technikraum
- Innenausstattung: Hochwertige Echtholzböden und Fliesen und verputzte, geweißelte Wände
- Energie: Neubau-Standard mit Fokus auf niedrige Nebenkosten durch Wärmepumpentechnologie
Das Erdgeschoss bildet das einladende Zentrum Ihres neuen Heims. Der offen gestaltete Wohn- und Küchenbereich mit ca. 35 m² wird durch große Fensterfronten mit Tageslicht durchflutet und schafft eine fließende Verbindung zur sonnigen Terrasse. Diese bietet mit einer bereits hälftig angerechneten Fläche von ca. 8,5 m² viel Raum für entspannte Stunden im Freien. Ein modernes Gäste-WC sowie ein heller Flurbereich vervollständigen diese Wohnebene.
Im Obergeschoss befindet sich der private Bereich für die Familie. Zwei geräumige Kinderzimmer mit ca. 18 m² und ca. 15,5 m² bieten viel Platz zur individuellen Entfaltung. Ein hochwertig ausgestattetes Badezimmer mit modernen Sanitärartikeln sorgt hier für einen perfekten Start in den Tag.
Das voll ausgebaute Dachgeschoss ist als exklusiver Rückzugsort konzipiert. Hier erwartet Sie das großzügige Schlafzimmer mit direktem Zugang zur eigenen Dachterrasse. Ein zusätzliches Badezimmer sowie ein separater Arbeitsbereich bieten ideale Bedingungen für Home-Office oder Ankleide.
Abgerundet wird das Platzangebot durch das Untergeschoss. Hier befindet sich der ca. 16,20 m² große Hobbyraum, der dank des zweiten Rettungswegs und großzügiger Lichtzufuhr voll als Wohnraum dient. Ob für Fitness, Hobbys, Büro oder Gäste. Die zusätzliche Nutzfläche in den Technik- und Kellerräumen von ca. 19,37 m² sorgt für ausreichend Stauraum. Die nachhaltige Holzständerbauweise in Kombination mit einer effizienten Wärmepumpe und vollflächiger Fußbodenheizung garantiert Ihnen ein gesundes Raumklima und niedrige Energiekosten.
IM ÜBERBLICK:
- ca. 144 m² Wohnfläche auf 4 Ebenen (KG, EG, OG, DG) plus ca. 31,44 m² Nutzfläche
- Zimmer: 5 Zimmer plus separater AR/Büro-Bereich
- Wohnbereich: Offener Wohn- und Essbereich mit direktem Terrassenzugang
- Außenbereich: Große Terrasse im EG (ca. 8,46 m² angerechnet) und Dachterrasse im DG (ca. 3,61 m² angerechnet)
- Schlafbereiche: Zwei geräumige Kinderzimmer im OG (ca. 17,60 m² und 15,59 m²)
- Dachgeschoss: Vollausgebauter Elternrückzugsort mit eigenem Bad und Arbeitsbereich
- Hobbyraum: Vielseitig nutzbarer Raum im KG (ca. 16,20 m²) mit 2. Rettungsweg und Tageslicht
- Separater HWR im Keller und Technikraum
- Innenausstattung: Hochwertige Echtholzböden und Fliesen und verputzte, geweißelte Wände
- Energie: Neubau-Standard mit Fokus auf niedrige Nebenkosten durch Wärmepumpentechnologie
Lage des Objektes
Wohnen am Waldheimplatz – Ein grünes Juwel im Münchner Südosten
Das Neubauprojekt befindet sich in einer der begehrtesten und wertbeständigsten Wohnlagen im Münchner Südosten – am Waldheimplatz 12. Ruhig eingebettet in die grüne und gewachsene Umgebung von München-Waldperlach, bietet dieser Standort die seltene Kombination aus dörflicher Idylle und den Vorzügen der bayerischen Landeshauptstadt.
Naturnah & Erholsam
- Waldperlach überzeugt durch seine unvergleichliche, naturnahe Atmosphäre. Die direkte Nähe zu weitläufigen Waldstücken, Parks und gepflegten Spazierwegen macht die Lage zu einem Paradies für Familien, Sportbegeisterte und Hundebesitzer. Wer ein entspanntes Lebensumfeld sucht, ohne auf urbane Nähe verzichten zu wollen, findet hier sein ideales Zuhause. Die Nachbarschaft ist geprägt von charmanten Villen, stilvollen Doppelhäusern und gepflegten Gärten, was dem Viertel einen hochwertigen und diskreten Charakter verleiht.
Hervorragende Infrastruktur & Bildung
- In fußläufiger oder kurzer Entfernung befinden sich sämtliche Einrichtungen des täglichen Bedarfs: Erstklassige Supermärkte, traditionelle Handwerksbäcker, spezialisierte Ärzte und Apotheken sind bequem erreichbar. Ein besonderes Highlight für Familien ist die Bildungslandschaft: Neben einer Vielzahl an Kindergärten und staatlichen Schulen ist die renommierte Europäische Schule München (ESM) in wenigen Fahrminuten erreichbar. Dies macht den Standort auch für internationale Familien und Expats zu einer der ersten Adressen in München.
Optimale Anbindung
Trotz der ruhigen Lage ist die Anbindung an das Verkehrsnetz exzellent:
- PKW: Die Münchner Innenstadt erreichen Sie in ca. 15 bis 20 Minuten. Über die nahegelegene A99 (Autobahnring München) gelangen Sie staufrei in Richtung Flughafen München sowie schnell zu den oberbayerischen Seen und in die Alpenregion.
- ÖPNV: Die Buslinie 55 bringt Sie in wenigen Minuten zur U-Bahn-Station Neuperlach Zentrum. Von dort aus sorgt die U5 für eine schnelle und direkte Verbindung zum Marienplatz und zum Hauptbahnhof.
Freizeit & Lifestyle
- Der Freizeitwert in Waldperlach ist überdurchschnittlich hoch. Ob Tennisanlagen, exklusive Golfclubs im nahen Umland, moderne Fitnessstudios oder die beliebten Badeseen im Münchner Osten – hier bleiben keine Wünsche offen. Der nahegelegene Landschaftspark Hachinger Tal bietet zudem Raum für ausgedehnte Radtouren und Freizeitaktivitäten.
Ein Zuhause am Waldheimplatz vereint das Beste aus zwei Welten: Die Ruhe und Sicherheit eines gewachsenen Viertels mit der Dynamik und den Möglichkeiten der Weltstadt mit Herz.
Das Neubauprojekt befindet sich in einer der begehrtesten und wertbeständigsten Wohnlagen im Münchner Südosten – am Waldheimplatz 12. Ruhig eingebettet in die grüne und gewachsene Umgebung von München-Waldperlach, bietet dieser Standort die seltene Kombination aus dörflicher Idylle und den Vorzügen der bayerischen Landeshauptstadt.
Naturnah & Erholsam
- Waldperlach überzeugt durch seine unvergleichliche, naturnahe Atmosphäre. Die direkte Nähe zu weitläufigen Waldstücken, Parks und gepflegten Spazierwegen macht die Lage zu einem Paradies für Familien, Sportbegeisterte und Hundebesitzer. Wer ein entspanntes Lebensumfeld sucht, ohne auf urbane Nähe verzichten zu wollen, findet hier sein ideales Zuhause. Die Nachbarschaft ist geprägt von charmanten Villen, stilvollen Doppelhäusern und gepflegten Gärten, was dem Viertel einen hochwertigen und diskreten Charakter verleiht.
Hervorragende Infrastruktur & Bildung
- In fußläufiger oder kurzer Entfernung befinden sich sämtliche Einrichtungen des täglichen Bedarfs: Erstklassige Supermärkte, traditionelle Handwerksbäcker, spezialisierte Ärzte und Apotheken sind bequem erreichbar. Ein besonderes Highlight für Familien ist die Bildungslandschaft: Neben einer Vielzahl an Kindergärten und staatlichen Schulen ist die renommierte Europäische Schule München (ESM) in wenigen Fahrminuten erreichbar. Dies macht den Standort auch für internationale Familien und Expats zu einer der ersten Adressen in München.
Optimale Anbindung
Trotz der ruhigen Lage ist die Anbindung an das Verkehrsnetz exzellent:
- PKW: Die Münchner Innenstadt erreichen Sie in ca. 15 bis 20 Minuten. Über die nahegelegene A99 (Autobahnring München) gelangen Sie staufrei in Richtung Flughafen München sowie schnell zu den oberbayerischen Seen und in die Alpenregion.
- ÖPNV: Die Buslinie 55 bringt Sie in wenigen Minuten zur U-Bahn-Station Neuperlach Zentrum. Von dort aus sorgt die U5 für eine schnelle und direkte Verbindung zum Marienplatz und zum Hauptbahnhof.
Freizeit & Lifestyle
- Der Freizeitwert in Waldperlach ist überdurchschnittlich hoch. Ob Tennisanlagen, exklusive Golfclubs im nahen Umland, moderne Fitnessstudios oder die beliebten Badeseen im Münchner Osten – hier bleiben keine Wünsche offen. Der nahegelegene Landschaftspark Hachinger Tal bietet zudem Raum für ausgedehnte Radtouren und Freizeitaktivitäten.
Ein Zuhause am Waldheimplatz vereint das Beste aus zwei Welten: Die Ruhe und Sicherheit eines gewachsenen Viertels mit der Dynamik und den Möglichkeiten der Weltstadt mit Herz.
Sonstige Informationen
Wir freuen uns, Ihnen dieses Objekt bei einem Besichtigungstermin ausführlich vorzustellen. Aus rechtlichen Gründen bitten wir Sie, für Ihre erste Kontaktaufnahme mit uns das Kontaktformular des Portals zu nutzen, auf dem Sie diese Immobilie gefunden haben. Finestep bietet dieses Objekt provisionsfrei zum Kauf an. Für die vom Eigentümer übernommenen Objektdaten übernimmt Finestep keine Gewähr in Bezug auf die Vollständigkeit, Richtigkeit und Aktualität dieser Informationen. Irrtum und Zwischenverkauf ist vorbehalten. Ist Ihnen das von Finestep nachgewiesene Objekt bereits bekannt, ist dies Finestep schriftlich spätestens innerhalb von fünf Werktagen unter Nennung der Quelle und des Nachweisdatums mitzuteilen. Sämtliche Unterschriften und Mitteilungen haben auch bei Übermittlung per Telefax und E-Mail Ihre Rechtsgültigkeit. Als Gerichtsstand wird München vereinbart sowie die Anwendung Deutschen Rechts. Alle Angaben nach bestem Wissen und nach Angabe des Verkäufers. Irrtum und Zwischenverkauf vorbehalten. Dieses Exposé ist eine Vorabinformation, als Rechtsgrundlage gilt allein der notariell abgeschlossene Kaufvertrag.
Finestep Immobilien GmbH
Humboldtstr. 8
81543 München
www.finestep.de
Einfahrt in Ihr Reihenendhaus
Straßenansicht
Gesamtansicht
Lageplan
Mikrolage
Makrolage
UNTERGESCHOSS
ERDGESCHOSS
OBERGESCHOSS
DG MIT DACHTERASSE
WFL-Berechnung Haus 1