Exposé
Objektart:
Wohnung
» Etage
» Miete
Standort: Wohnung »
Deutschland » Brandenburg » Oberhavel (Kreis) » Hohen Neuendorf
Schwellenlose Wohnung mit Terrasse und Garten
Wohnzimmer
Das Wichtigste auf einen Blick:
| Objektnummer: | 9405557 |
Preise
| Kaltmiete (netto) | 1.582 € |
| Nebenkosten | 100 € |
Flächen
| Wohnfläche | 90,4 m² |
Objekt Adresse
Karl-Marx-Straße 8
16540 Hohen Neuendorf
- Brandenburg
Sonstige Angaben
| Baujahr | 2023 |
| Zimmer | 3 |
| Verfügbar ab | 01.01.2026 |
| Bad | 1 |
| Inserat befindet sich im Stockwerk | 0 |
| Küche | Einbauküche |
| Bad | 1 |
| Balkone | 0 |
| Garten | Ja |
| Terrassen | 1 |
| Fahrstuhl | Ja |
| Energieausweistyp | Bedarfsausweis |
| Energieeffizienzklasse | A+ |
| Endenergiebedarf | 16 kWh/(m²*a) |
| Heizungsart | Fußbodenheizung |
| Energieträger/Befeuerung | Elektro |
Objektbeschreibung
Neubau-Mehrfamilienhaus mit neun Mietwohnungen mit schwellenlosem Zugang und Aufzug, fertiggestellt 2023.
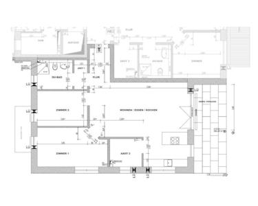
Die 3-Zimmer Wohnung liegt im Erdgeschoss und verfügt über 90,4 m² Wohnfläche, über eine großzügige Terrasse mit Süd-Ost-Ausrichtung und einen Garten.
Das Objekt verfügt über einen Aufzug, Fußbodenheizung und -kühlung, Terrassen und Balkone sowie Außenstellplätze.
Das Objekt wurde als Effizienzhaus (KfW 40+), mit höchster Energieeffizienz geplant und gebaut.
Die Wärmeversorgung wird mit modernen Luft-Wärmepumpen sichergestellt, weiter gibt es eine Photovoltaikanlage mit „Mieterstrommodell“ und Stromspeicher.
Das Objekt verfügt über moderne Architektur mit offenen Grundrissen, sowie einer Markeneinbauküche.
Die Bäder sind modern gestaltet mit bodentiefer Regendusche, großformatigen Fliesen aus Feinsteinzeug und Markeneinbauten.
Die Wohnungen verfügen über einen hochwertigen Designboden.
Die Wohnung ist bezugsbereit.
Die 3-Zimmer Wohnung liegt im Erdgeschoss und verfügt über 90,4 m² Wohnfläche, über eine großzügige Terrasse mit Süd-Ost-Ausrichtung und einen Garten.
Das Objekt verfügt über einen Aufzug, Fußbodenheizung und -kühlung, Terrassen und Balkone sowie Außenstellplätze.
Das Objekt wurde als Effizienzhaus (KfW 40+), mit höchster Energieeffizienz geplant und gebaut.
Die Wärmeversorgung wird mit modernen Luft-Wärmepumpen sichergestellt, weiter gibt es eine Photovoltaikanlage mit „Mieterstrommodell“ und Stromspeicher.
Das Objekt verfügt über moderne Architektur mit offenen Grundrissen, sowie einer Markeneinbauküche.
Die Bäder sind modern gestaltet mit bodentiefer Regendusche, großformatigen Fliesen aus Feinsteinzeug und Markeneinbauten.
Die Wohnungen verfügen über einen hochwertigen Designboden.
Die Wohnung ist bezugsbereit.
Ausstattung
Terrasse, Garten, Fahrstuhl, Einbauküche
Lage des Objektes
Hohen Neuendorf gehört zum Landkreis Oberhavel im Land Brandenburg und liegt an der nördlichen Stadtgrenze der Bundeshauptstadt Berlin.
In Laufnähe ist die Buslinie 822 vorhanden. Überregionale Ziele sind durch die nahe verkehrende Bahnlinie RB20 gut erreichbar. Zu Fuß erreichen Sie mehrere Restaurants, Bäckereien, Cafés, Ärzte und zwei Supermärkte. Außerdem gibt es ein paar Grün- und Parkanlagen, Fitnessstudios, Modegeschäfte, zwei Bars und eine Buchhandlung.
Durch die Anbindung mit S1 und S8 über den Bahnhof Hohen Neuendorf sowie guter Autobahnanbindung mit der A111 erreichen Sie sowohl die City West als auch die die Friedrichstraße in ca. 30 min.
Infrastruktur (im Umkreis von 5 km):
Apotheke, Lebensmittel-Discount, Allgemeinmediziner, Kindergarten, Grundschule, Hauptschule, Realschule, Gymnasium, Gesamtschule, Öffentliche Verkehrsmittel
In Laufnähe ist die Buslinie 822 vorhanden. Überregionale Ziele sind durch die nahe verkehrende Bahnlinie RB20 gut erreichbar. Zu Fuß erreichen Sie mehrere Restaurants, Bäckereien, Cafés, Ärzte und zwei Supermärkte. Außerdem gibt es ein paar Grün- und Parkanlagen, Fitnessstudios, Modegeschäfte, zwei Bars und eine Buchhandlung.
Durch die Anbindung mit S1 und S8 über den Bahnhof Hohen Neuendorf sowie guter Autobahnanbindung mit der A111 erreichen Sie sowohl die City West als auch die die Friedrichstraße in ca. 30 min.
Infrastruktur (im Umkreis von 5 km):
Apotheke, Lebensmittel-Discount, Allgemeinmediziner, Kindergarten, Grundschule, Hauptschule, Realschule, Gymnasium, Gesamtschule, Öffentliche Verkehrsmittel
Sonstige Informationen
Heizungsart: Fußbodenheizung
Energieträger: Strom
Impressum
Berlisax Vermögensverwaltungs-GmbH
Birkbuschstr. 91
12167 Berlin
Vertreten durch einzelvertretungsberechtigten Geschäftsführer:
Thorben Riesen
Kontakt:
Telefon: 030 897 45700
E-Mail: info@berlisax.eu
Registereintrag:
Eintragung im Registergericht: Amtsgericht Charlottenburg
Registernummer: HRB 202341
Makleranfragen nicht erwünscht. Nach § 7 UWG sind unaufgeforderte Kontaktaufnahmen durch Makler ohne ausdrückliche Einwilligung des Empfängers verboten!
ohne-makler (OM) ist weder Anbieter noch Vermittler der Immobilie. OM betreibt eine Plattform für Immobilieneigentümer, die unter anderem die gleichzeitige Veröffentlichung einzelner Inserate auf mehreren Immobilienportalen ermöglicht. Die Inhalte dieser Inserate werden ausschließlich von Dritten verantwortet. Für die Richtigkeit, Vollständigkeit oder Rechtmäßigkeit der Angaben übernimmt OM keine Haftung. Hinweise auf mögliche Rechtsverstöße können jederzeit gemeldet werden und werden nach Prüfung umgehend bearbeitet.
Zugang zur Terrasse
Küche
Küche
Schlafzimmer
Arbeitszimmer
Badezimmer
Terrasse
Gartenansicht
Einfahrt
Zufahrt
Parkplatz