Exposé
Objektart:
Wohnung
» Erdgeschoss
» Miete
Standort: Wohnung »
Deutschland » Sachsen » Kamenz (Kreis) » Lauta
Ankommen, durchatmen, wohlfühlen: 2 Zimmer mit Garten, cleverem Schnitt und viel Tageslicht.
Neujahrsaktion_Jetzt umziehen und 2x Miete sparen
Das Wichtigste auf einen Blick:
| Objektnummer: | 9405183 |
Preise
| Warmmiete | 525 € |
| Kaltmiete (netto) | 350 € |
| Nebenkosten | 75 € |
| Kaution | 700,00 € |
Flächen
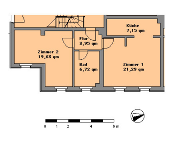
| Wohnfläche | 58,74 m² |
| Nutzfläche | 58,74 m² |
Objekt Adresse
Akazienallee 7
02991 Lauta
Sonstige Angaben
| Baujahr | 1940 |
| Zimmer | 2 |
| Verfügbar ab | 15.01.2026 |
| Bad | 1 |
| Anzahl der Etagen im Haus | 2 |
| Inserat befindet sich im Stockwerk | 0 |
| Bad | 1 |
| Bad | Wanne, Fenster |
| Garten | Ja |
| Keller | Ja |
| Energieausweistyp | Verbrauch |
| Energieeffizienzklasse | D |
| Energieverbrauchkennwert | 115.00 kWh/(m²*a) |
| Heizungsart | Etagenheizung |
| Energieträger/Befeuerung | Fernwärme |
Objektbeschreibung
Jetzt 2x Miete sparen. Alle, die im neuen Jahr mit uns auf Wohnungssuche gehen, können gleich zwei Monate die Warmmiete sparen. Die Aktion gilt für Neumieterinnen und Neumieter der TAG Wohnen, für ausgewählte Wohnungen und bei einem Mietvertragsbeginn bis 31. März 2026. Nicht mit anderen Aktionen kombinierbar.
Das Wohnhaus befindet sich in Lauta Süd, in ruhiger, grüner Umgebung. Hier wohnen Sie in zentraler Nähe zu Innenstadt und Bahnhof. Zu jeder Wohnung gehört ein eigener Garten.
Das Wohnhaus befindet sich in Lauta Süd, in ruhiger, grüner Umgebung. Hier wohnen Sie in zentraler Nähe zu Innenstadt und Bahnhof. Zu jeder Wohnung gehört ein eigener Garten.
Ausstattung
Diese 2‑Zimmer‑Wohnung bietet eine durchdachte, kompakte Ausstattung für entspanntes Wohnen.
Ausstattung kompakt:
- gut geschnittener Grundriss mit heller Wohn- und Schlafzone; pflegeleichter Boden.
- Küche mit Anschluss für E-Herd
- modernes Bad mit Wanne, Waschbecken, WC und WM‑Anschluss
- Isolierverglaste Fenster und zeitlose Innentüren
- TV/Internet‑Anschlüsse (Kabel/DSL/Glasfaser nach Verfügbarkeit); Gegensprechanlage
- eigener Mietergarten und Mieterkeller
Interesse geweckt? Vereinbaren Sie jetzt Ihren Besichtigungstermin – wir freuen uns auf Ihre Nachricht.
Ausstattung kompakt:
- gut geschnittener Grundriss mit heller Wohn- und Schlafzone; pflegeleichter Boden.
- Küche mit Anschluss für E-Herd
- modernes Bad mit Wanne, Waschbecken, WC und WM‑Anschluss
- Isolierverglaste Fenster und zeitlose Innentüren
- TV/Internet‑Anschlüsse (Kabel/DSL/Glasfaser nach Verfügbarkeit); Gegensprechanlage
- eigener Mietergarten und Mieterkeller
Interesse geweckt? Vereinbaren Sie jetzt Ihren Besichtigungstermin – wir freuen uns auf Ihre Nachricht.
Lage des Objektes
Lauta ist das grüne Tor zum Lausitzer Seenland. Die rund 8.500 Einwohner zählende Stadt ist von Wäldern, Heidelandschaft,
sanften Hügeln und viel Wasser umgeben. Zahlreiche Rad- und Wanderwege laden genauso zur aktiven Erholung ein wie der
nahe gelegene Senftenberger See. Einkaufsmöglichkeiten, Ärzte und Schulen sind bequem und schnell zu erreichen. Auch den Bahnhof mit Anschlüssen nach Dresden und Leipzig erreichen Sie in wenigen Minuten. Die nächste Anschlussstelle zur Autobahn A13 (Berlin - Dresden) ist ca. 20 km entfernt.
sanften Hügeln und viel Wasser umgeben. Zahlreiche Rad- und Wanderwege laden genauso zur aktiven Erholung ein wie der
nahe gelegene Senftenberger See. Einkaufsmöglichkeiten, Ärzte und Schulen sind bequem und schnell zu erreichen. Auch den Bahnhof mit Anschlüssen nach Dresden und Leipzig erreichen Sie in wenigen Minuten. Die nächste Anschlussstelle zur Autobahn A13 (Berlin - Dresden) ist ca. 20 km entfernt.
Sonstige Informationen
Finden Sie Ihr neues Zuhause unter www.tag-wohnen.de und vereinbaren Sie Ihren persönlichen Besichtigungstermin. Wir freuen uns auf Ihre Anfrage.
Profitieren Sie als TAG Wohnen-Mieter von unseren Partnerangeboten und sichern Sie sich viele Sonderrabatte und günstige Konditionen u.a. in den Bereichen Unterhaltung, Umzug, Ernährung und Mobilität.
Strom und Gas von lekker Energie – Sichern Sie sich Ihren exklusiven TAG Wohnen-Bonus unter www.lekker.de/kunden/tag-wohnen
Alle Angaben in diesem Exposé wurden sorgfältig getätigt. Fehlerhafte Angaben können nicht ausgeschlossen werden, daher sind die Angaben ohne Gewähr. Maßgeblich sind die im Mietvertrag geschlossenen Vereinbarungen.
Außenansicht
Grundriss
Gartenplan