Exposé
Objektart:
Wohnung
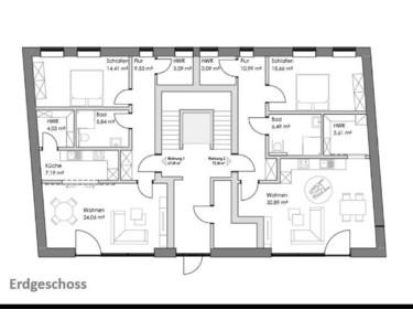
» Erdgeschoss
» Miete
Standort: Wohnung »
Deutschland » Niedersachsen » Emden, Stadt (Kreis) » Emden
4 Zimmer Wohnung zentral in Emden in den Pagodenhöfen
Das Wichtigste auf einen Blick:
| Objektnummer: | 9404587 |
Preise
| Kaltmiete (netto) | 1.250 € |
| Nebenkosten | 140 € |
| Heizkosten enthalten | Ja |
| Kaution | 2.500 € |
Flächen
| Wohnfläche | 83 m² |
Objekt Adresse
Abdena Str. 2
26721 Emden
- Niedersachsen
Sonstige Angaben
| Baujahr | 2025 |
| Zimmer | 4 |
| Verfügbar ab | 01.04.2026 |
| Bad | 1 |
| Anzahl der Etagen im Haus | 4 |
| Inserat befindet sich im Stockwerk | 0 |
| Küche | Einbauküche |
| Bad | 1 |
| Bad | Dusche |
| Boden | Fliesen |
| Balkone | 0 |
| Terrassen | 1 |
| Fahrstuhl | Ja |
| Heizungsart | Zentralheizung |
| Energieträger/Befeuerung | Luft-Wärme-Pumpe |
Objektbeschreibung
Zur Vermietung steht eine attraktive 3-Zimmer-Neubauwohnung in der Abdenastraße in Emden. Die Wohnung wurde nach dem QNG-Standard (Qualitätssiegel Nachhaltiges Gebäude) errichtet und bietet dadurch einen besonders hohen energetischen und nachhaltigen Wohnkomfort.
Die Ausstattung ist hochwertig und modern: großformatige Fliesen, Fußbodenheizung in allen Räumen, elektrische Rollläden sowie eine moderne Einbauküche sorgen für ein komfortables Wohnambiente. Zusätzlich stehen ein Aufzug, ein eigener PKW-Stellplatz und ein außenliegender Abstellraum zur Verfügung.
Dank der zentralen Lage sind Einkaufsmöglichkeiten, ÖPNV, Restaurants und weitere alltägliche Einrichtungen bequem zu Fuß erreichbar.
Ausstattung im Überblick:
Neubau nach QNG-Standard
3 Zimmer
Moderne, hochwertige Ausstattung
Großformatige Fliesen
Fußbodenheizung
Elektrische Rollläden
Moderne Einbauküche inklusive
Aufzug
Eigener Stellplatz
Außenliegender Abstellraum
Sehr zentrale Lage in der Abdenastraße
Ideal für Singles oder Paare, die modernes Wohnen mit hohem Komfort in zentraler Lage suchen.
Das Projekt wird Ende März 2026 bezugsbereit sein.
Es sind auch andere Wohnungen mit anderen größen und ein Penthouse verfügbar.
Gerne stimmen wir einen Besichtigungstermin ab.
Die Ausstattung ist hochwertig und modern: großformatige Fliesen, Fußbodenheizung in allen Räumen, elektrische Rollläden sowie eine moderne Einbauküche sorgen für ein komfortables Wohnambiente. Zusätzlich stehen ein Aufzug, ein eigener PKW-Stellplatz und ein außenliegender Abstellraum zur Verfügung.
Dank der zentralen Lage sind Einkaufsmöglichkeiten, ÖPNV, Restaurants und weitere alltägliche Einrichtungen bequem zu Fuß erreichbar.
Ausstattung im Überblick:
Neubau nach QNG-Standard
3 Zimmer
Moderne, hochwertige Ausstattung
Großformatige Fliesen
Fußbodenheizung
Elektrische Rollläden
Moderne Einbauküche inklusive
Aufzug
Eigener Stellplatz
Außenliegender Abstellraum
Sehr zentrale Lage in der Abdenastraße
Ideal für Singles oder Paare, die modernes Wohnen mit hohem Komfort in zentraler Lage suchen.
Das Projekt wird Ende März 2026 bezugsbereit sein.
Es sind auch andere Wohnungen mit anderen größen und ein Penthouse verfügbar.
Gerne stimmen wir einen Besichtigungstermin ab.
Ausstattung
Terrasse, Fahrstuhl, Duschbad, Einbauküche, Fliesen
Bemerkungen:
Einbauküche inklusive
großformatige Fliesen
Lüftungsanlage
elektrische Rollläden
Bemerkungen:
Einbauküche inklusive
großformatige Fliesen
Lüftungsanlage
elektrische Rollläden
Lage des Objektes
Die Abdena Straße (Abdenastraße) in Emden liegt im Stadtzentrum von Emden
📍 Lage und Umgebung
Sie verläuft zentral in der Innenstadt, nur wenige Gehminuten vom Bahnhof Emden und dem Busbahnhof entfernt.
Infrastruktur (im Umkreis von 5 km):
Apotheke, Lebensmittel-Discount, Allgemeinmediziner, Kindergarten, Grundschule, Hauptschule, Realschule, Gymnasium, Gesamtschule, Öffentliche Verkehrsmittel
📍 Lage und Umgebung
Sie verläuft zentral in der Innenstadt, nur wenige Gehminuten vom Bahnhof Emden und dem Busbahnhof entfernt.
Infrastruktur (im Umkreis von 5 km):
Apotheke, Lebensmittel-Discount, Allgemeinmediziner, Kindergarten, Grundschule, Hauptschule, Realschule, Gymnasium, Gesamtschule, Öffentliche Verkehrsmittel
Sonstige Informationen
Heizungsart: Zentralheizung
Energieträger: Luft-/Wasserwärme
Energieausweis nicht vorhanden
Makleranfragen nicht erwünscht. Nach § 7 UWG sind unaufgeforderte Kontaktaufnahmen durch Makler ohne ausdrückliche Einwilligung des Empfängers verboten!
ohne-makler (OM) ist weder Anbieter noch Vermittler der Immobilie. OM betreibt eine Plattform für Immobilieneigentümer, die unter anderem die gleichzeitige Veröffentlichung einzelner Inserate auf mehreren Immobilienportalen ermöglicht. Die Inhalte dieser Inserate werden ausschließlich von Dritten verantwortet. Für die Richtigkeit, Vollständigkeit oder Rechtmäßigkeit der Angaben übernimmt OM keine Haftung. Hinweise auf mögliche Rechtsverstöße können jederzeit gemeldet werden und werden nach Prüfung umgehend bearbeitet.
Straßenansicht
Straßenansicht
Luftaufnahme
Hauseingang
Innenhof
Vom Chinesen Tempel
Erdgeschoss
1. OG
2. OG
3. OG
Penthouse