Exposé
Objektart:
Haus
» Doppelhaushaelfte
» Miete
Standort: Haus »
Deutschland » Bayern » Dingolfing-Landau (Kreis) » Eichendorf
DHH in schöner und ruhiger Süd-West-Lage
Das Wichtigste auf einen Blick:
| Objektnummer: | 9404550 |
Preise
| Kaltmiete (netto) | 1.200 € |
| Nebenkosten | 110 € |
| Kaution | 3.200 € |
Flächen
| Wohnfläche | 131 m² |
| Grundstücksfläche | 349 m² |
Objekt Adresse
Pitzling 110a
94428 Eichendorf
- Bayern
Sonstige Angaben
| Baujahr | 2015 |
| Zimmer | 4 |
| Verfügbar ab | nach Absprache |
| Bad | 1 |
| Anzahl der Etagen im Haus | 2 |
| Bad | 1 |
| Bad | Wanne |
| Boden | Fliesen, Laminat |
| Balkone | 0 |
| Garten | Ja |
| Terrassen | 1 |
| Energieausweistyp | Bedarfsausweis |
| Energieeffizienzklasse | A+ |
| Endenergiebedarf | 15 kWh/(m²*a) |
| Heizungsart | Fußbodenheizung |
| Energieträger/Befeuerung | Elektro |
Objektbeschreibung
DHH in Holzständerbauweise - Vermietung direkt vom Eigentümer
Renovierte Doppelhaushälfte!
Die Bauweise aus Holz schafft ein ganz besonderes Wohnklima. Energiesparend im Winter und
angenehme Kühle im Sommer.
Der schnörkellose, gradlinige Baustil sorgt im Haus für Licht und Leichtigkeit.
Das Gebäude ist Baujahr 2015, mit energieeffizienter Wärmepumpe und Fußbodenheizung ausgestattet.
Ein Aussenkamin mit Holzofenkamin ist vorhanden.
Das Haus ist ausgestattet mit 3-fach verglasten Kunststoff-Fenstern sowie elektrischen Rollläden.
Die Außenisolierung ist mit ökologischer Zellulose ausgeführt.
Dezentrale Lüftungen sorgen für Luftaustausch.
Wände: Verkleidung mit Gipskartonplatten und mineralischem Anstrich
Böden: Laminat, Fliesen im Bad, Gäste-WC, Abstellraum und Eingangsbereich
Die Treppenstufen sind in Buche Massivholz
Außenputz mit mineralischen Anstrich, Fassadenrenovierung erfolgte im Herbst 2024.
Zum Haus gehört ein Carport, sowie ein Gartengerätehaus. Die Zufahrt und der Hauszugang sind mit Betonpflaster belegt, ebenso die Terrasse.
Das Haus ist derzeit unbewohnt, kann zum 01.10.2025 bezogen werden.
Eine Besichtigung ist nach Terminabsprache gerne möglich.
Das Haus beeindruckt mit dem großen, lichtdurchfluteten Wohn-, Ess- und Kochbereich im EG. Die aktuell eingebaute Küche ist im Mietpreis nicht enthalten, soll aber durch Ablöse oder Mietzahlung übernommen werden.
Ein praktischer Abstellraum unter der Treppe schafft zusätzlich Stauraum.
Im HW-Raum ist ein Waschmaschinen- und Trockneranschluss vorhanden.
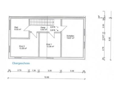
Das OG bietet neben dem geräumigen Schlafzimmer noch zwei weitere helle Räume, die als Kinderzimmer oder Büro genutzt werden können. In allen Räumen ist Telefon- sowie Antennenanschluss vorhanden.
Das gemütliche Bad hat eine große bodenebene Dusche mit Glasabtrennung, Badewanne, zwei Waschtische sowie WC. Zusätzlicher Stauraum findet sich im ausgebauten Dachboden, der über eine Zugtreppe im Flur erreichbar ist.
Für Fragen und Auskünfte steht der Eigentümer gerne zur Verfügung.
Ausstattung:
Terrasse, Garten, Gäste-WC, Kamin, Laminat, Fliesen
Weitere Angaben:
Separate WCs: 1
Verfügbar ab: 01.10.2025
Objektzustand: neuwertig
Bodenbelag: Fliesen, Laminat
Grundstücksfläche: ca. 349 m²
Renovierte Doppelhaushälfte!
Die Bauweise aus Holz schafft ein ganz besonderes Wohnklima. Energiesparend im Winter und
angenehme Kühle im Sommer.
Der schnörkellose, gradlinige Baustil sorgt im Haus für Licht und Leichtigkeit.
Das Gebäude ist Baujahr 2015, mit energieeffizienter Wärmepumpe und Fußbodenheizung ausgestattet.
Ein Aussenkamin mit Holzofenkamin ist vorhanden.
Das Haus ist ausgestattet mit 3-fach verglasten Kunststoff-Fenstern sowie elektrischen Rollläden.
Die Außenisolierung ist mit ökologischer Zellulose ausgeführt.
Dezentrale Lüftungen sorgen für Luftaustausch.
Wände: Verkleidung mit Gipskartonplatten und mineralischem Anstrich
Böden: Laminat, Fliesen im Bad, Gäste-WC, Abstellraum und Eingangsbereich
Die Treppenstufen sind in Buche Massivholz
Außenputz mit mineralischen Anstrich, Fassadenrenovierung erfolgte im Herbst 2024.
Zum Haus gehört ein Carport, sowie ein Gartengerätehaus. Die Zufahrt und der Hauszugang sind mit Betonpflaster belegt, ebenso die Terrasse.
Das Haus ist derzeit unbewohnt, kann zum 01.10.2025 bezogen werden.
Eine Besichtigung ist nach Terminabsprache gerne möglich.
Das Haus beeindruckt mit dem großen, lichtdurchfluteten Wohn-, Ess- und Kochbereich im EG. Die aktuell eingebaute Küche ist im Mietpreis nicht enthalten, soll aber durch Ablöse oder Mietzahlung übernommen werden.
Ein praktischer Abstellraum unter der Treppe schafft zusätzlich Stauraum.
Im HW-Raum ist ein Waschmaschinen- und Trockneranschluss vorhanden.
Das OG bietet neben dem geräumigen Schlafzimmer noch zwei weitere helle Räume, die als Kinderzimmer oder Büro genutzt werden können. In allen Räumen ist Telefon- sowie Antennenanschluss vorhanden.
Das gemütliche Bad hat eine große bodenebene Dusche mit Glasabtrennung, Badewanne, zwei Waschtische sowie WC. Zusätzlicher Stauraum findet sich im ausgebauten Dachboden, der über eine Zugtreppe im Flur erreichbar ist.
Für Fragen und Auskünfte steht der Eigentümer gerne zur Verfügung.
Ausstattung:
Terrasse, Garten, Gäste-WC, Kamin, Laminat, Fliesen
Weitere Angaben:
Separate WCs: 1
Verfügbar ab: 01.10.2025
Objektzustand: neuwertig
Bodenbelag: Fliesen, Laminat
Grundstücksfläche: ca. 349 m²
Ausstattung
Terrasse, Garten, Vollbad, Gäste-WC, Kamin, Laminat, Fliesen
Bemerkungen:
Heizungsart: Fußbodenheizung
Energieträger: Strom
Energieausweis: Energiebedarfsausweis
Endenergiebedarf: 15 kWh(m²*a)
Energieeffizienzklasse: A+
Heizungsart: Fußbodenheizung
Wesentliche Energieträger: Elektrisch
Bemerkungen:
Heizungsart: Fußbodenheizung
Energieträger: Strom
Energieausweis: Energiebedarfsausweis
Endenergiebedarf: 15 kWh(m²*a)
Energieeffizienzklasse: A+
Heizungsart: Fußbodenheizung
Wesentliche Energieträger: Elektrisch
Lage des Objektes
Ruhige, familienfreundliche Wohnlage in einem Ortsteil der Marktgemeinde Eichendorf im Landkreis
Dingolfing-Landau. Der nach Süd-Westen ausgerichtete Garten ist von der Straße nicht einsehbar.
Der Markt Eichendorf liegt verkehrsgünstig zwischen Landau, Deggendorf, Passau und Arnstorf.
Einkaufsmöglichkeiten, Schule und Kindergarten sind in kurzer Entfernung erreichbar.
Infrastruktur (im Umkreis von 5 km):
Apotheke, Lebensmittel-Discount, Allgemeinmediziner, Kindergarten, Grundschule, Hauptschule,
Öffentliche Verkehrsmittel
Infrastruktur (im Umkreis von 5 km):
Apotheke, Lebensmittel-Discount, Allgemeinmediziner, Kindergarten, Grundschule, Hauptschule, Öffentliche Verkehrsmittel
Dingolfing-Landau. Der nach Süd-Westen ausgerichtete Garten ist von der Straße nicht einsehbar.
Der Markt Eichendorf liegt verkehrsgünstig zwischen Landau, Deggendorf, Passau und Arnstorf.
Einkaufsmöglichkeiten, Schule und Kindergarten sind in kurzer Entfernung erreichbar.
Infrastruktur (im Umkreis von 5 km):
Apotheke, Lebensmittel-Discount, Allgemeinmediziner, Kindergarten, Grundschule, Hauptschule,
Öffentliche Verkehrsmittel
Infrastruktur (im Umkreis von 5 km):
Apotheke, Lebensmittel-Discount, Allgemeinmediziner, Kindergarten, Grundschule, Hauptschule, Öffentliche Verkehrsmittel
Sonstige Informationen
Heizungsart: Fußbodenheizung
Energieträger: Strom
Keine Haustiere !
Makleranfragen nicht erwünscht. Nach § 7 UWG sind unaufgeforderte Kontaktaufnahmen durch Makler ohne ausdrückliche Einwilligung des Empfängers verboten!
ohne-makler (OM) ist weder Anbieter noch Vermittler der Immobilie. OM betreibt eine Plattform für Immobilieneigentümer, die unter anderem die gleichzeitige Veröffentlichung einzelner Inserate auf mehreren Immobilienportalen ermöglicht. Die Inhalte dieser Inserate werden ausschließlich von Dritten verantwortet. Für die Richtigkeit, Vollständigkeit oder Rechtmäßigkeit der Angaben übernimmt OM keine Haftung. Hinweise auf mögliche Rechtsverstöße können jederzeit gemeldet werden und werden nach Prüfung umgehend bearbeitet.