Exposé
Objektart:
Einzelhandel
» Ladenlokal
» Miete
Standort: Einzelhandel »
Deutschland » Bayern » Oberallgäu (Kreis) » Weitnau
Büro- /Praxis- / Ladenflächen im Zentrum von Weitnau * vielseitig nutzbar *
Gebäudeansicht
Das Wichtigste auf einen Blick:
| Objektnummer: | 9403988 |
Preise
| Nebenkosten | 0 € |
| Mietpreis pro m² | 0 € |
| Kaufpreis pro m² | 0 € |
| Kaution | 3 Kaltmieten |
Flächen
| Nutzfläche | 225 m² |
| Ladenfläche | 225 m² |
| Verkaufsfläche | m² |
| Maklerprovision | 2,38 Kaltmieten |
Objekt Adresse
87480 Weitnau
Sonstige Angaben
| Baujahr | 1996 |
| Verfügbar ab | nach Absprache |
| Boden | Fliesen, Laminat |
| Barrierefrei | |
| Energieausweistyp | Bedarfsausweis |
| Ausstellungsdatum | 20. 06. 2022 |
| Gültig bis | 19.06.2032 |
| Baujahr (laut Energieausweis) | 1996 |
| Endenergiebedarf | 93.5 kWh/(m²*a) |
| Heizungsart | Zentralheizung |
| Wesentlicher Energieträger | Öl |
| Energieträger/Befeuerung | Öl |
Objektbeschreibung
Die Räumlichkeiten eignen sich für Nutzung als Praxis, Büroräume, Räume für Physiotherapie, Optiker, Drogeriemarkt etc. bei barrierefreiem Eingang.
Ausstattung
Aufteilung:
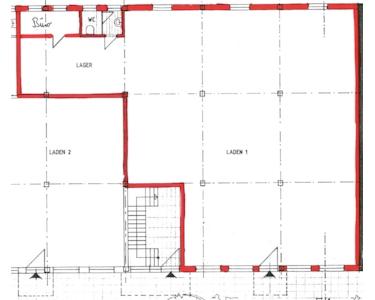
EG: Ladenfläche (auch teilbar), Lagerraum, Büro, sep. WC
EG: Ladenfläche (auch teilbar), Lagerraum, Büro, sep. WC
Lage des Objektes
Im staatl. anerkannten Erholungsort Weitnau im Allgäu, zwischen Isny und Kempten ( B 12 neu ) in herrlicher Allgäuer Voralpenlandschaft gelegen, befinden sich diese Laden- / Büro- / Praxisflächen im Erdgeschoß in einem Wohn- und Geschäftshaus mitten im Ort. Die Fläche wäre auch teilbar in zwei kleinere Einheiten.
Direkter Zugang für Anlieferung ist gegeben und Stellplätze sind am Haus vorhanden.
Direkter Zugang für Anlieferung ist gegeben und Stellplätze sind am Haus vorhanden.
Gebäudeansicht
Gewerbefläche
Gewerbefläche
Grundriss EG